← Fylde Borough Council

Status

Under Consideration Change of use
Received
Last month
New homes
2

Full proposal

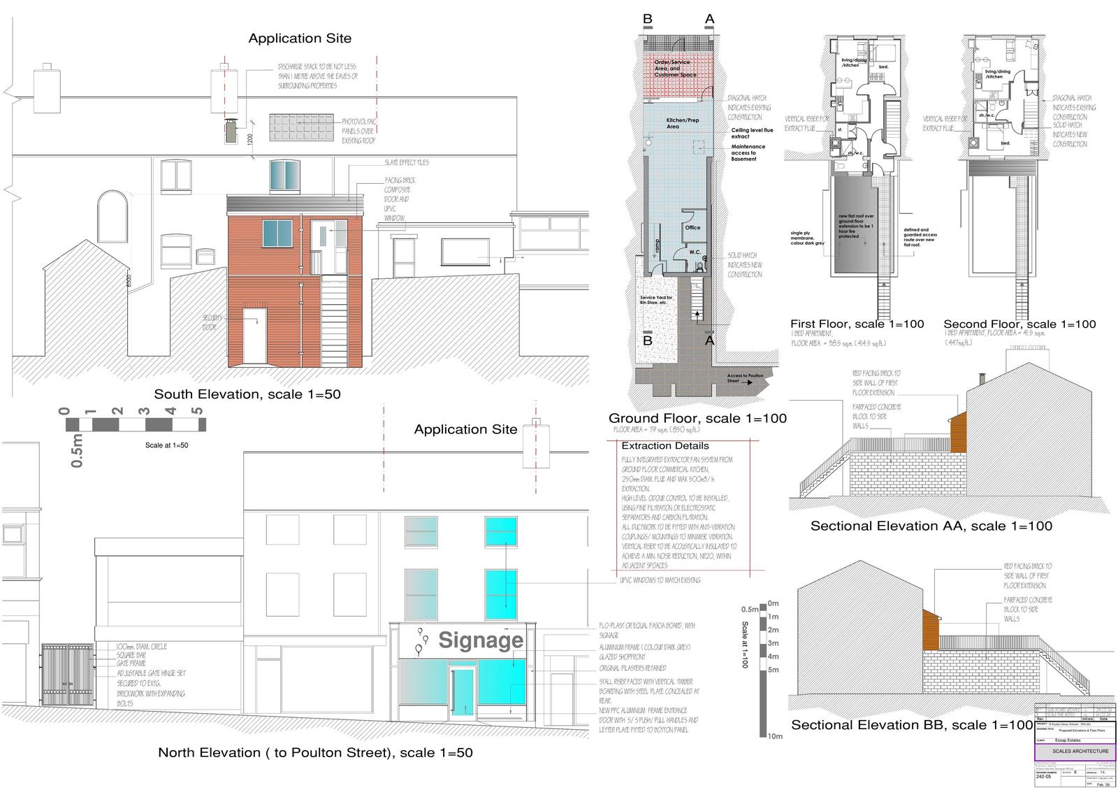
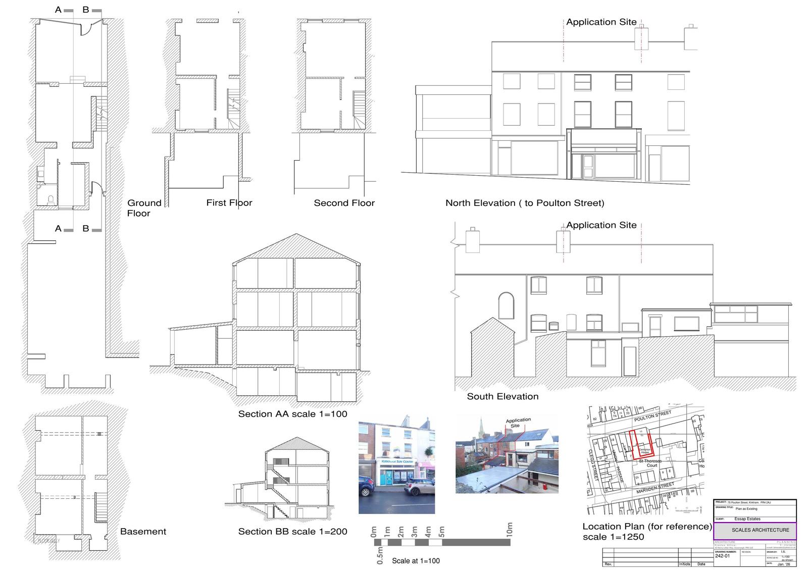
CHANGE OF USE OF BUILDING TO GROUND FLOOR HOT FOOD TAKEAWAY (SUI GENERIS USE CLASS), WITH 2 NO. FLATS TO 1ST AND 2ND FLOOR LEVELS, INCLUDING EXTENSION AND ALTERAITON OF THE BUILDING: 1) SINGLE STOREY AND 2 STOREY REAR EXTENSIONS AND EXTERNAL STAIR TO PROVIDE ACCESS TO 1ST AND 2ND FLOOR FLATS, 2) ODOUR EXTRACTION FLUE TO REAR ROOF PLANE OF MAIN BUILDING, 3) REPLACEMENT SHOP FRONT, 4) REPLACEMENT WINDOWS, 5) SOLAR PANELS TO REAR ROOF SLOPE, 6) ACCESS GATE TO SIDE ENTRANCE.

Documents

Document
Archived · Original link
Document
Archived · Original link
(308kb)
Document
Not yet archived · Original link
Document
Archived · Original link
Document
Archived · Original link
Document
Archived · Original link
Document
Archived · Original link
Document
Archived · Original link

Have your say

Your comment matters. Councils must consider every representation that raises material planning considerations.

Write a comment