← Gloucester City Council

Status

Registered Change of use
Received
04 Dec 2024
New homes
1

Full proposal

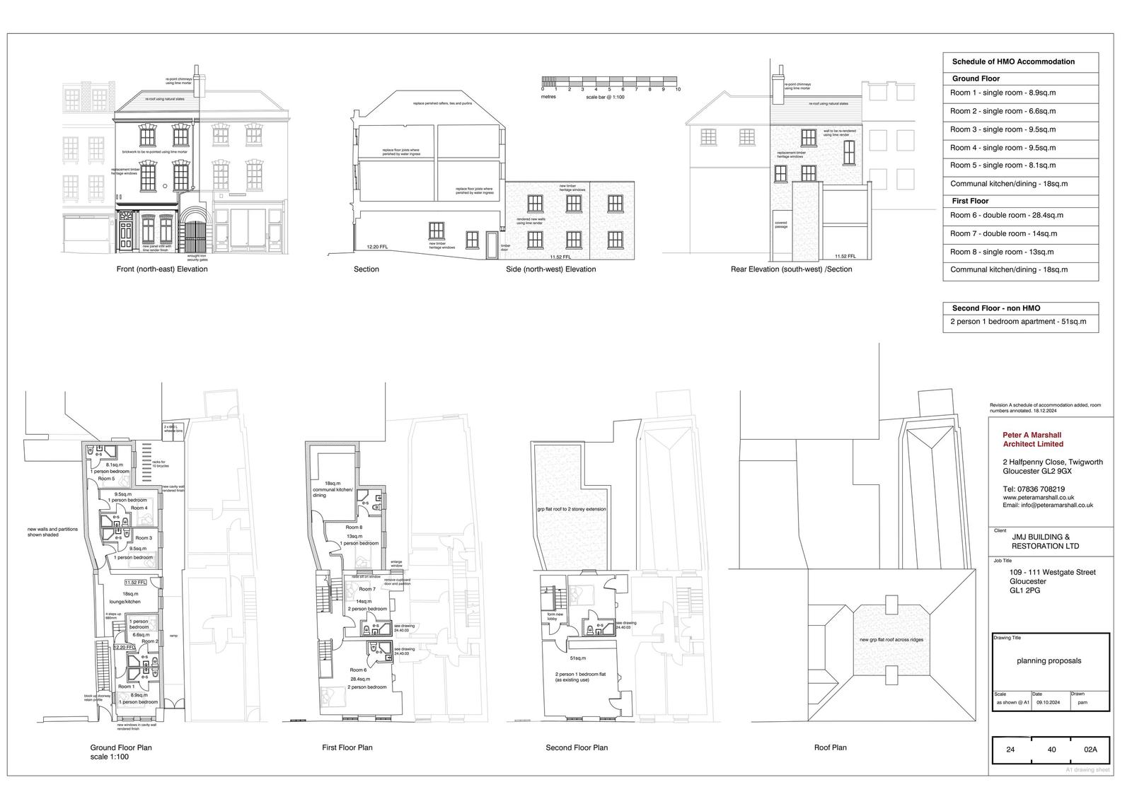
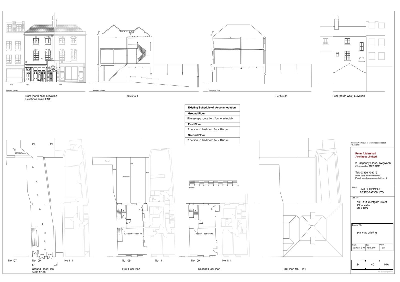
Renovation and Conversion of no 109 to form an 8-bed, 10-person house in multiple occupation (HMO) on ground and first floors. Retention of existing second-floor flat. Demolition of rear projection, main roof and parts of ground floor front facade of no. 109. Series of external alterations including erection of rear two-storey extension with new roof elements over No 109 and 111.

Documents

Application Form
Archived · Original link
Consultee Comment
Archived · Original link
Consultee Comment
Archived · Original link
Consultee Comment
Archived · Original link
Consultee Comment
Archived · Original link
Plan
Archived · Original link
Consultee Comment
Archived · Original link
Consultee Comment
Archived · Original link
Report
Archived · Original link
Consultee Comment
Archived · Original link
Consultee Comment
Archived · Original link
Consultee Comment
Archived · Original link
Plan
Archived · Original link
Consultee Comment
Archived · Original link
Report
Archived · Original link
Consultee Comment
Archived · Original link

Have your say

Your comment matters. Councils must consider every representation that raises material planning considerations.

Write a comment