← Gloucester City Council

Status

Decided House extension
Received
30 Dec 2024
New homes
0

Full proposal

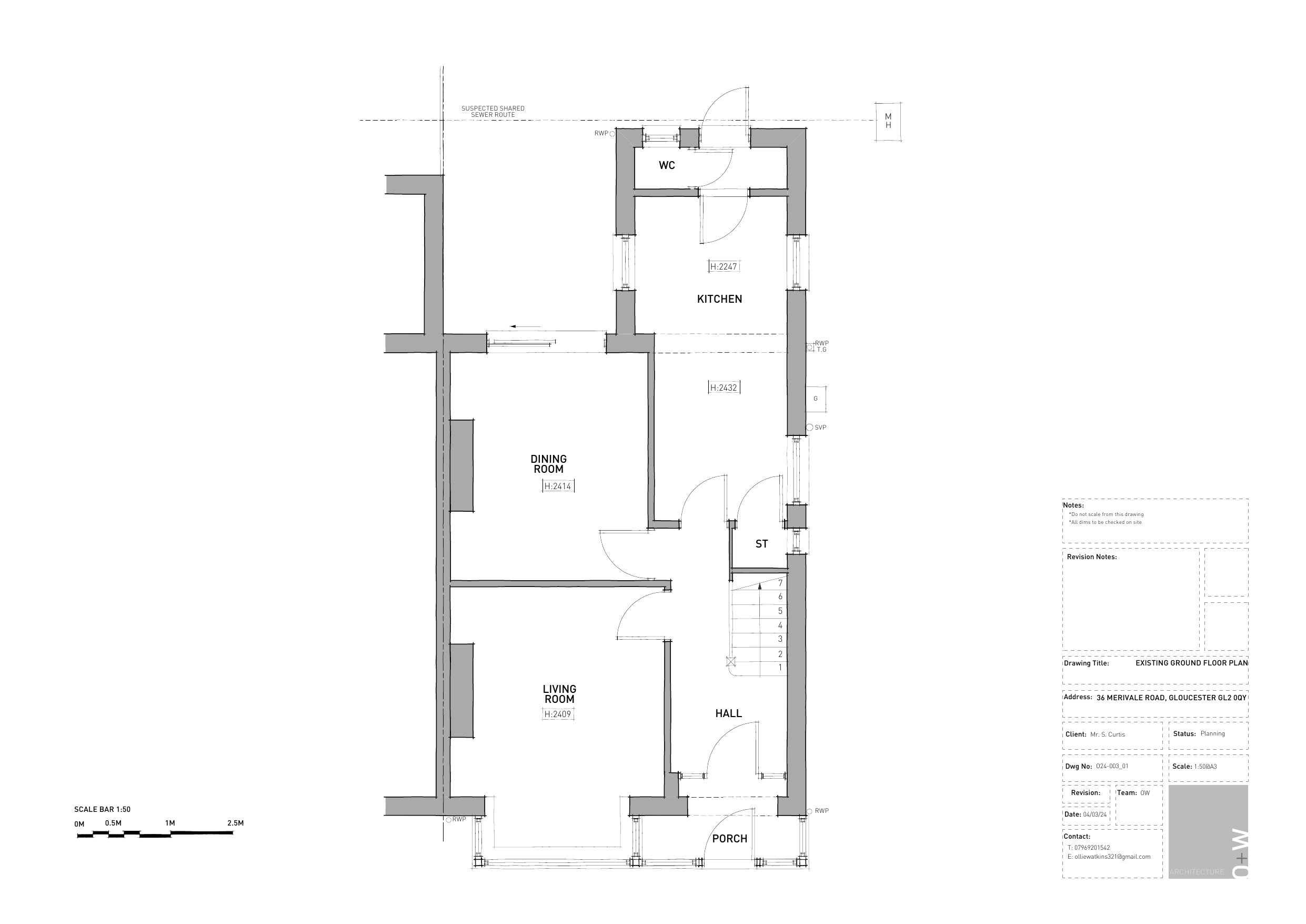
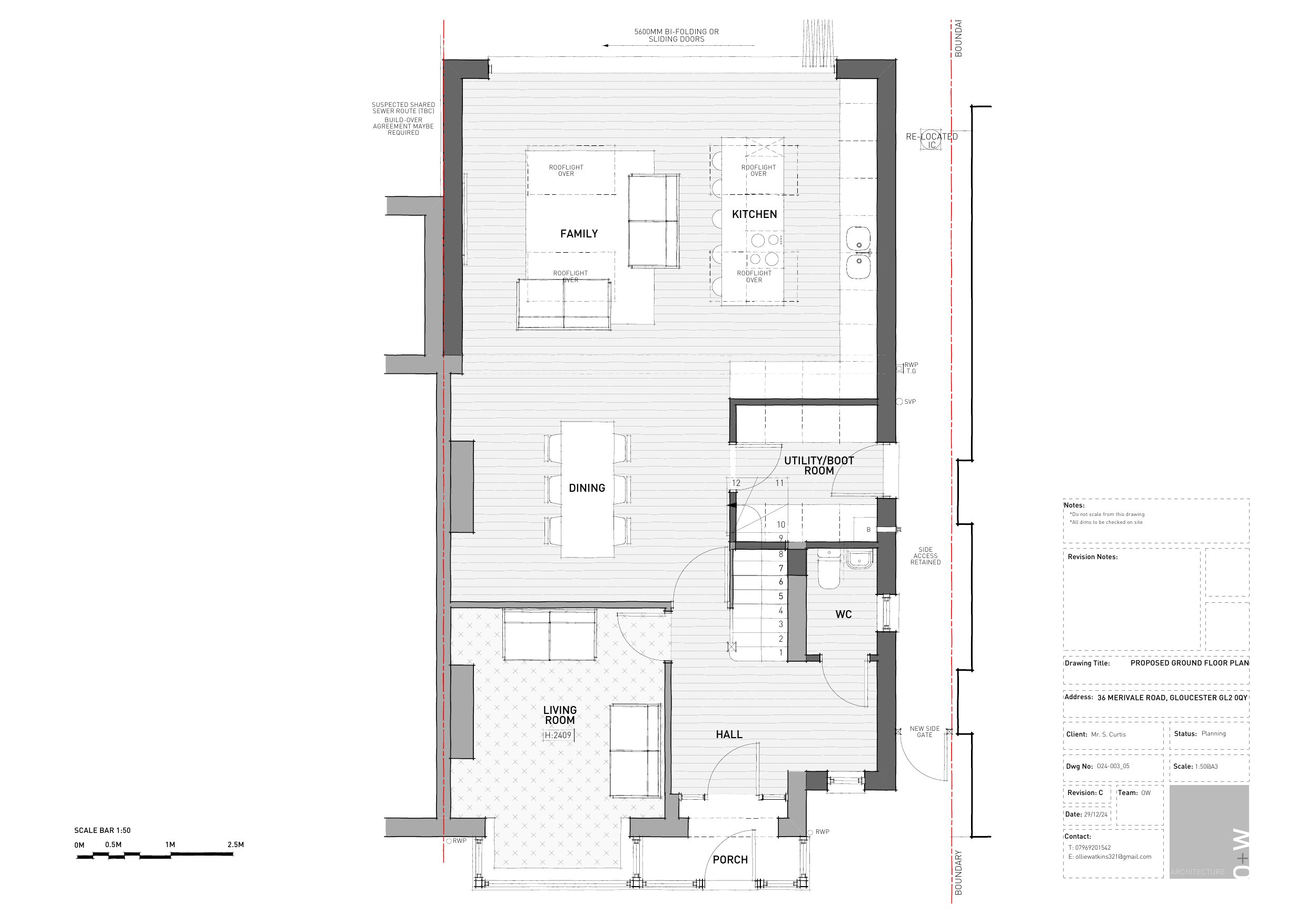
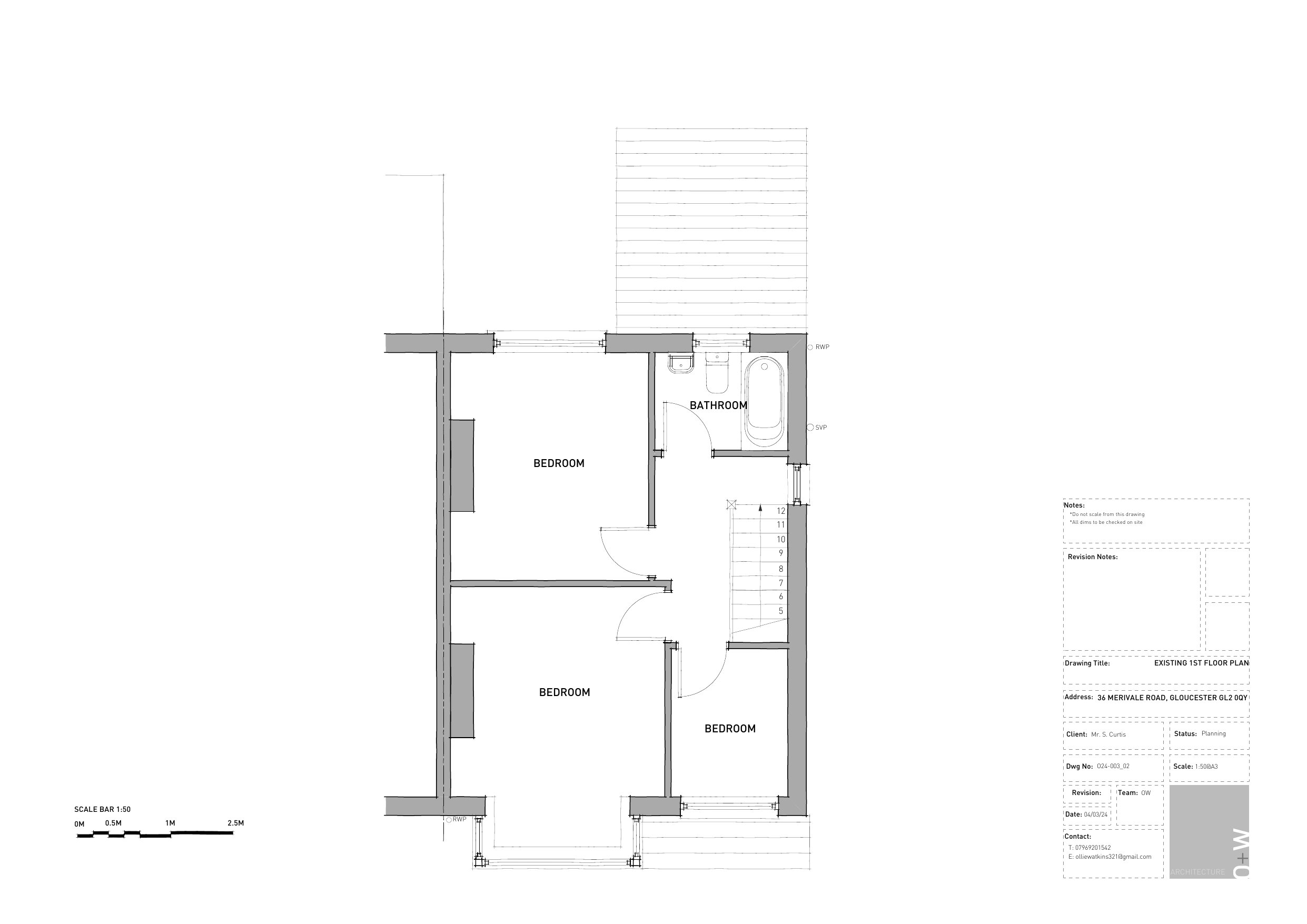
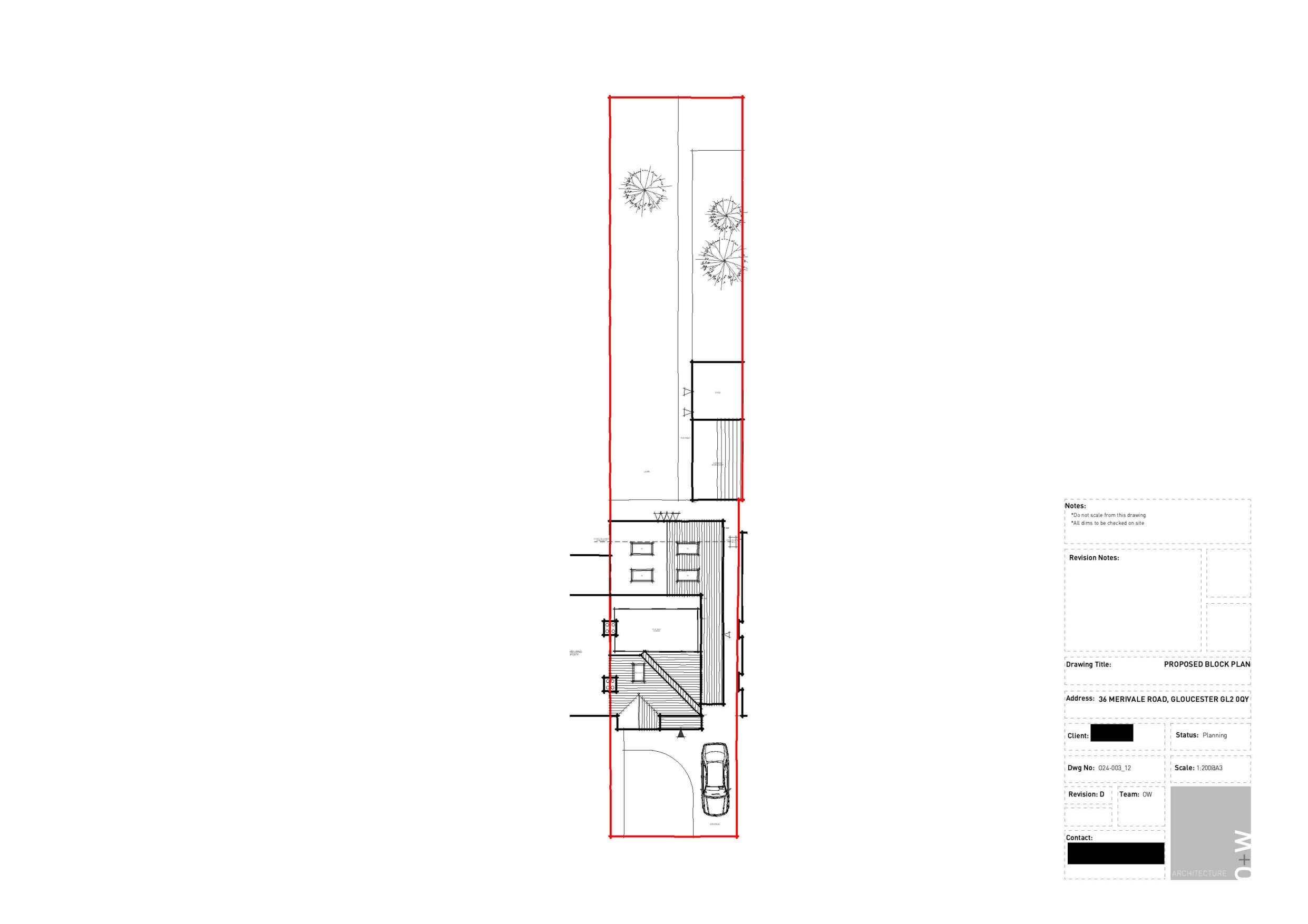
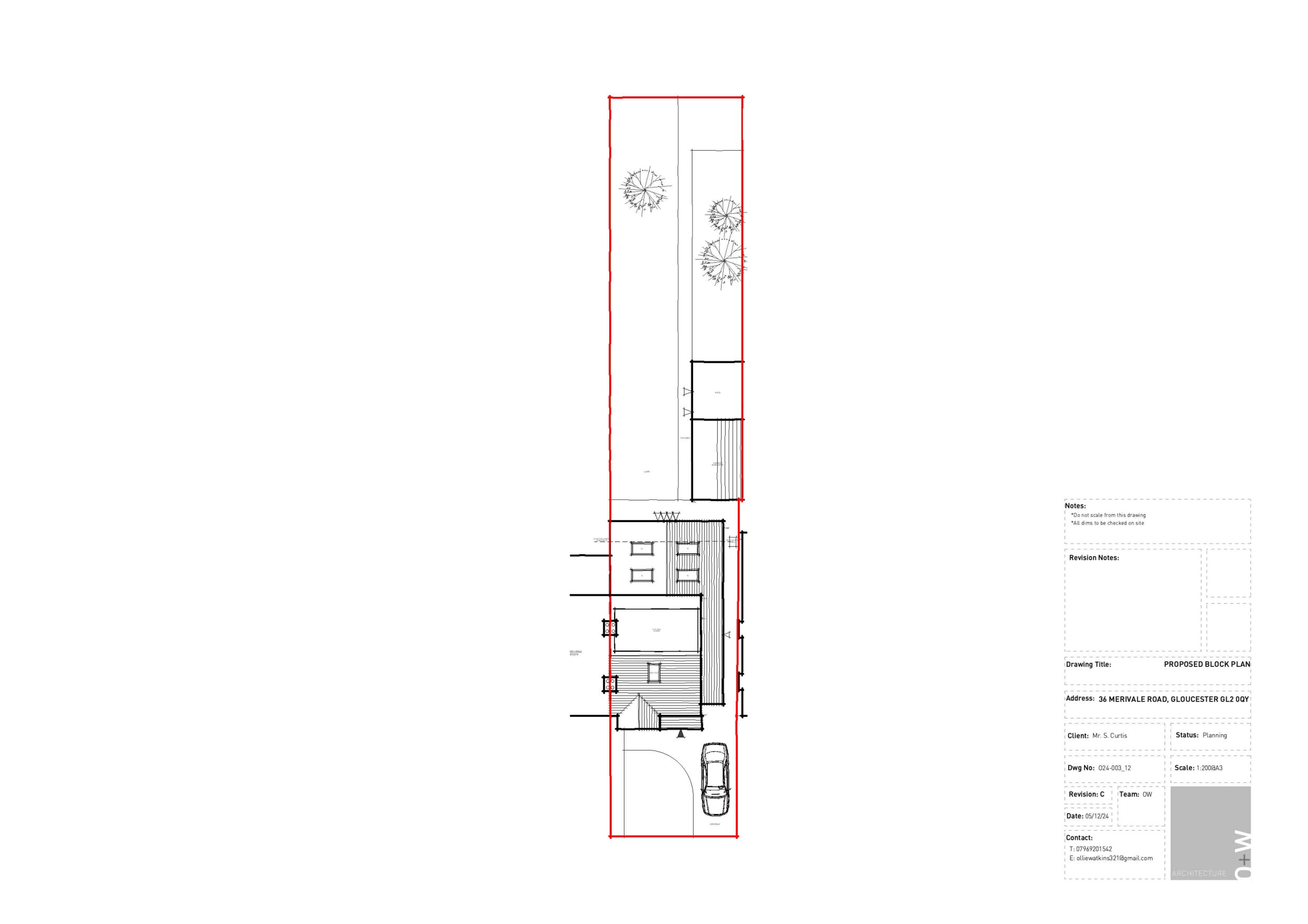
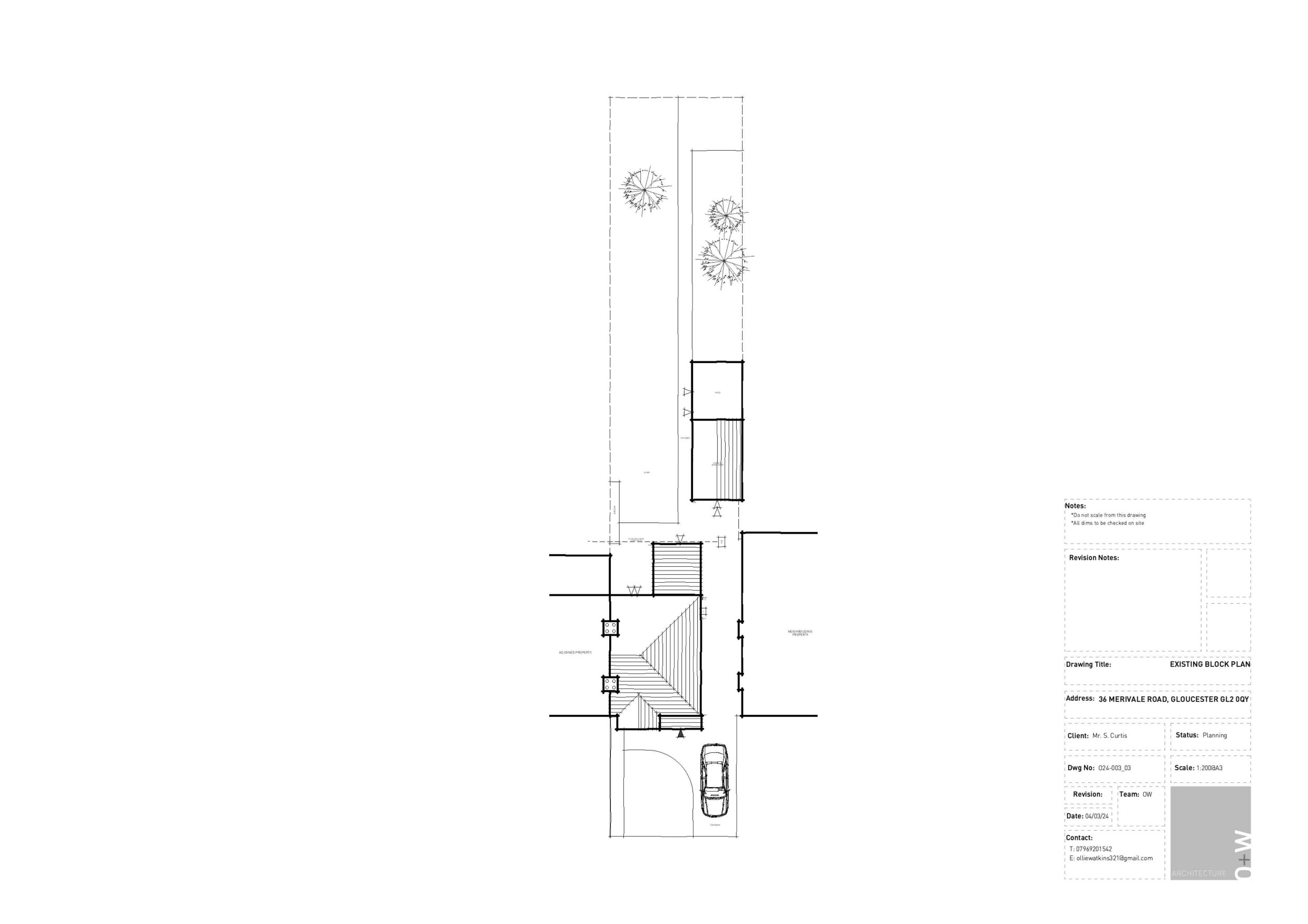
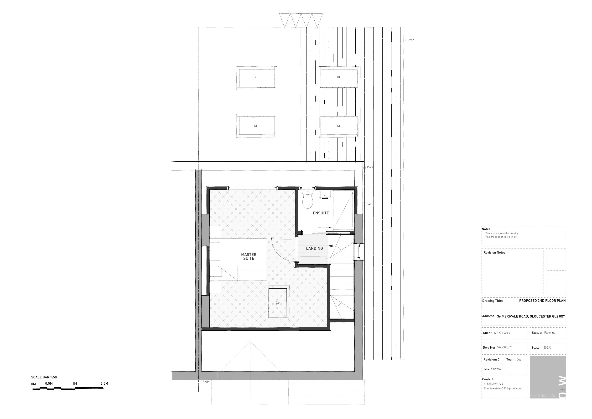
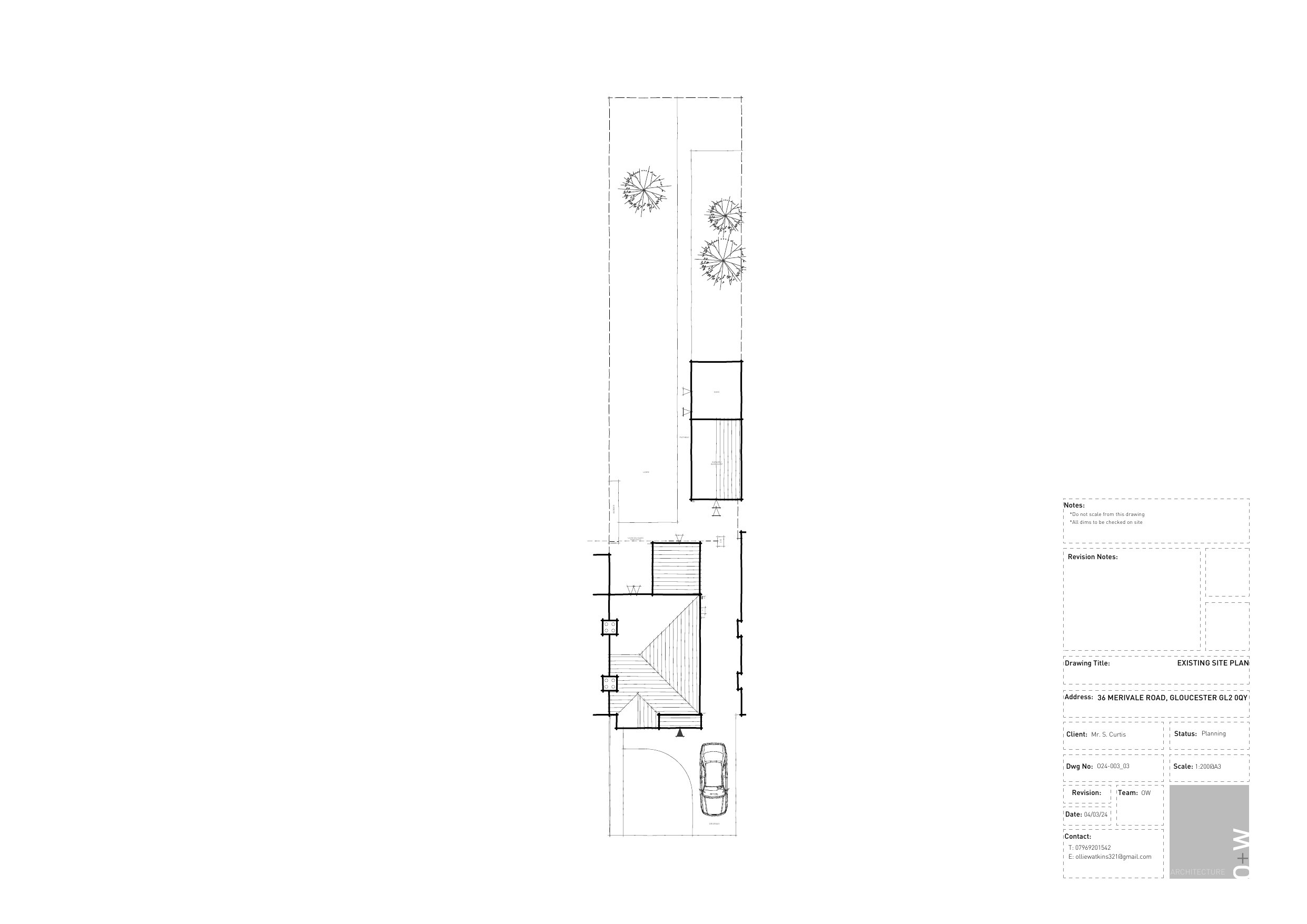
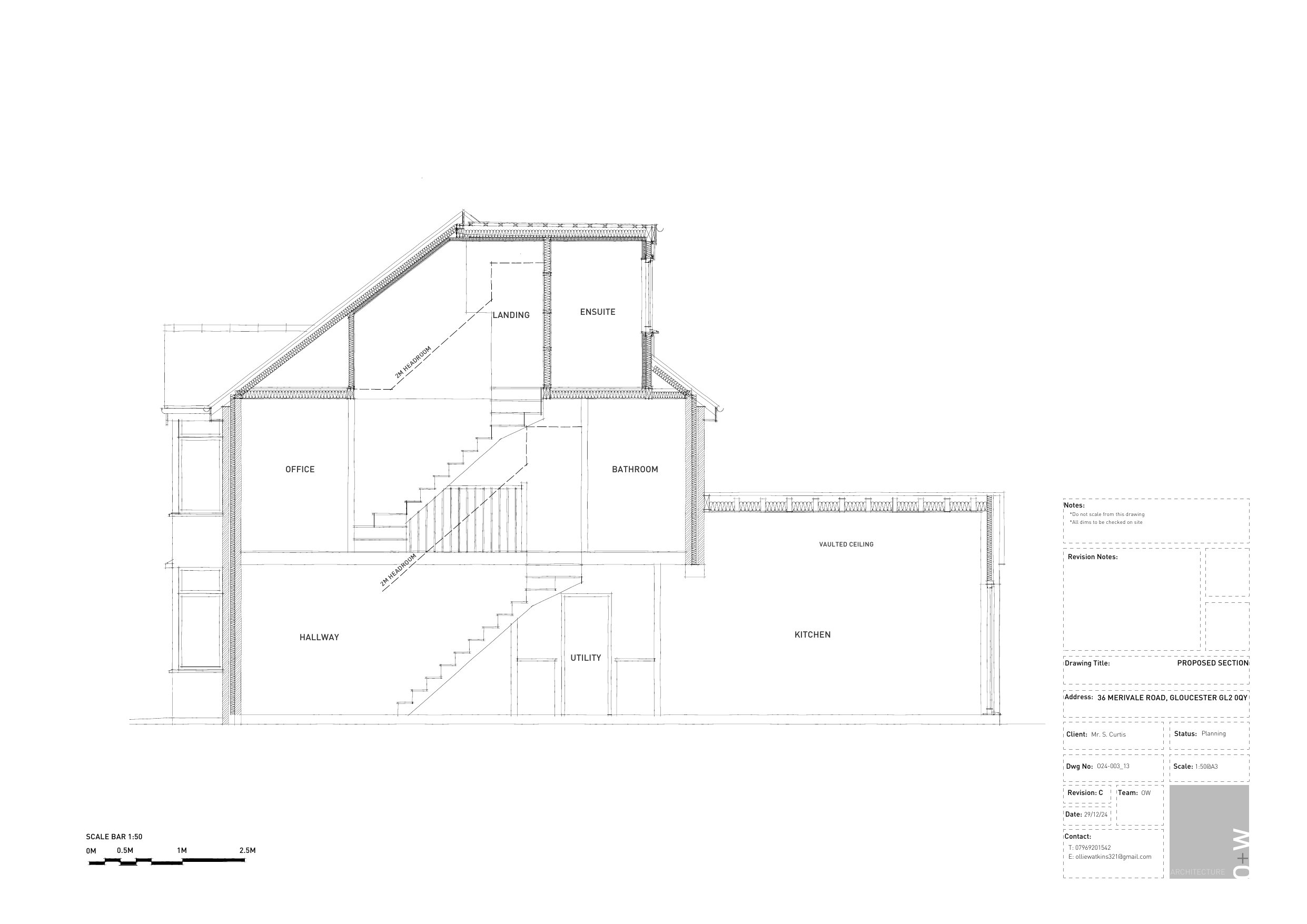
Proposed single storey side & rear extension and hip to gable loft conversion including rear box dormer, front roof light, and allied internal alterations.

Documents

Application Form
Archived · Original link
Decision
Archived · Original link
Delegated Report
Archived · Original link
Superseded Plan
Archived · Original link
Proposed 2nd Floor Plan
Amended Plan
Not yet archived · Original link
Superseded Plan
Archived · Original link
Amended Plan
Archived · Original link
Proposed Roof Plan
Superseded Plan
Not yet archived · Original link
Amended Plan
Archived · Original link
Plan
Archived · Original link

Have your say

Your comment matters. Councils must consider every representation that raises material planning considerations.

Write a comment