← Gloucester City Council

Status

Registered House extension
Received
02 Jan 2025
New homes
0

Full proposal

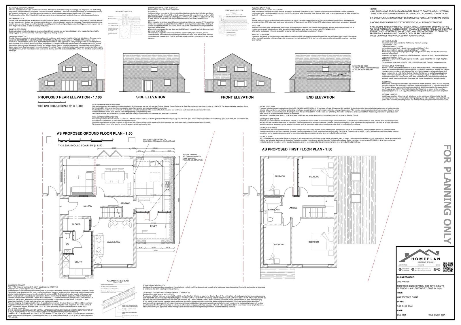
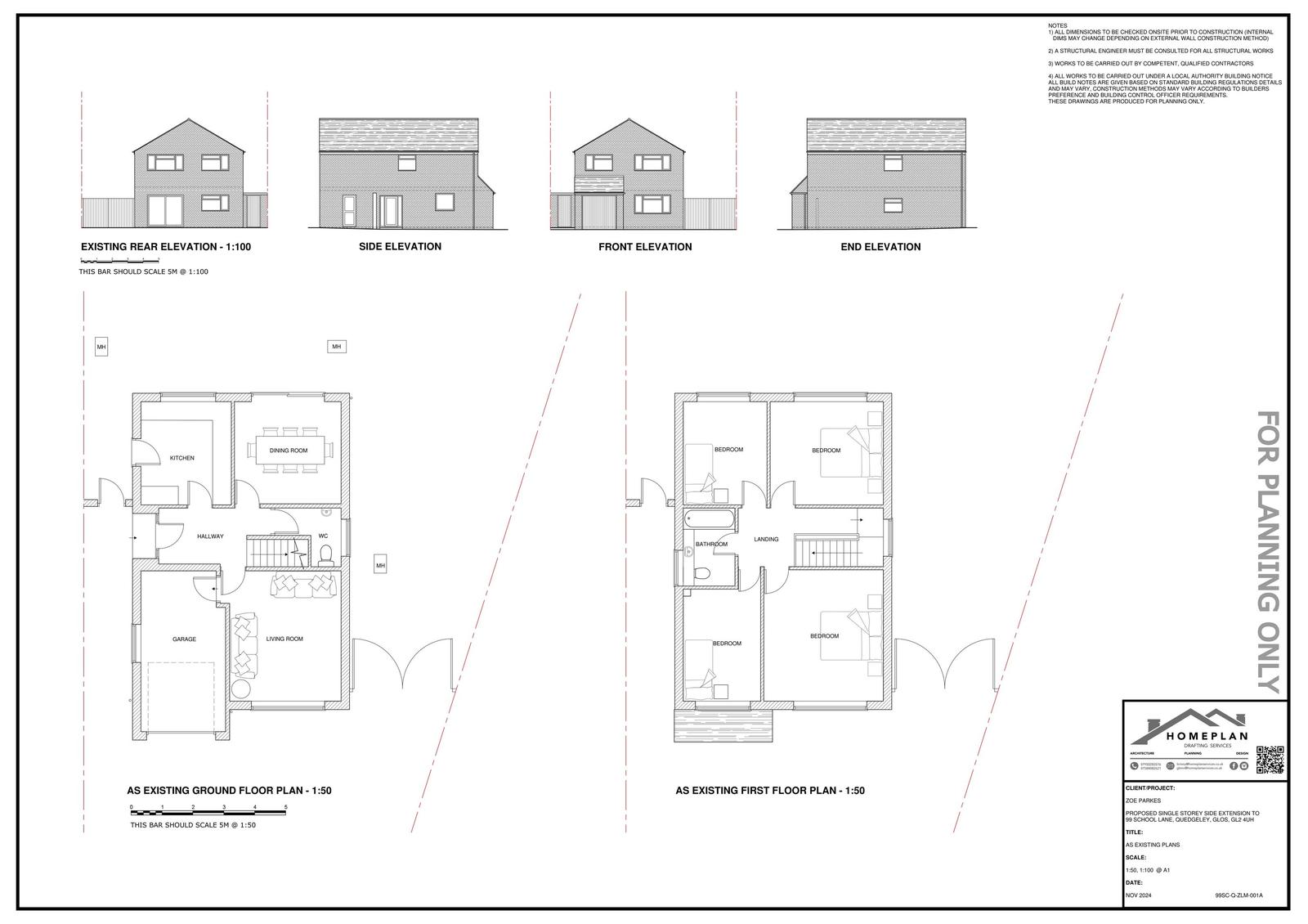
Construction of single storey side extension. No new layouts/access or hardstanding.

Have your say

Your comment matters. Councils must consider every representation that raises material planning considerations.

Write a comment