← Gloucester City Council

Status

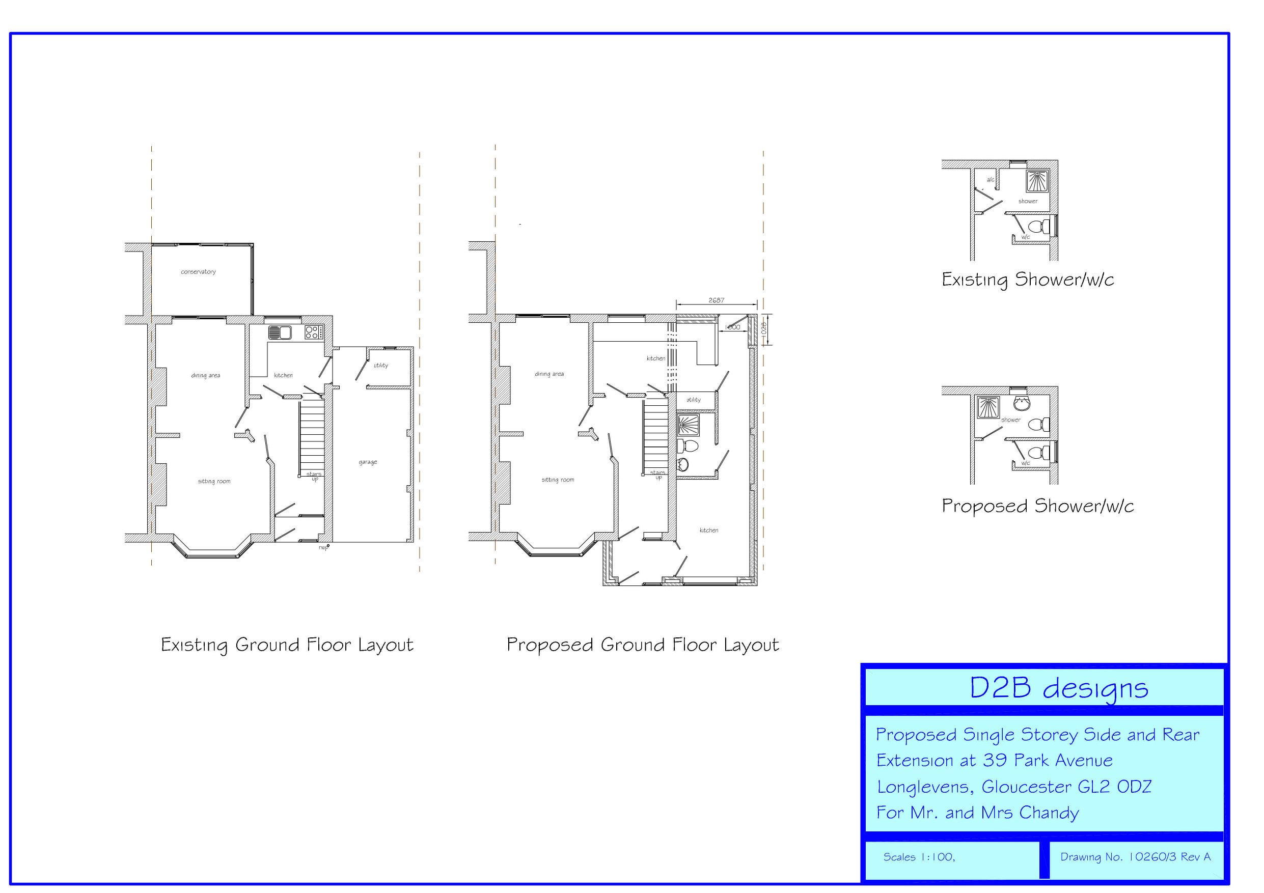
Decided House extension
Received
03 Jan 2025
New homes
0

Full proposal

Proposed garage conversion and front and rear extension.

Have your say

Your comment matters. Councils must consider every representation that raises material planning considerations.

Write a comment