← Gloucester City Council

Status

Decided Change of use
Received
12 May 2025
New homes
0

Full proposal

Proposed change of part of the building from C3 (dwelling) to Class E to allow the extension of the existing veterinary surgery. Proposed alterations to allow the extension of the existing car parking area to create 8 parking spaces in total across the site.

Documents

Application Form
Application Form
Not yet archived · Original link
Building Elevations
Plan
Not yet archived · Original link
Amended Plan
Archived · Original link
Decision Notice
Decision
Not yet archived · Original link
Delegated Report
Delegated Report
Not yet archived · Original link
Existing Ground Floor Plan
Amended Plan
Not yet archived · Original link
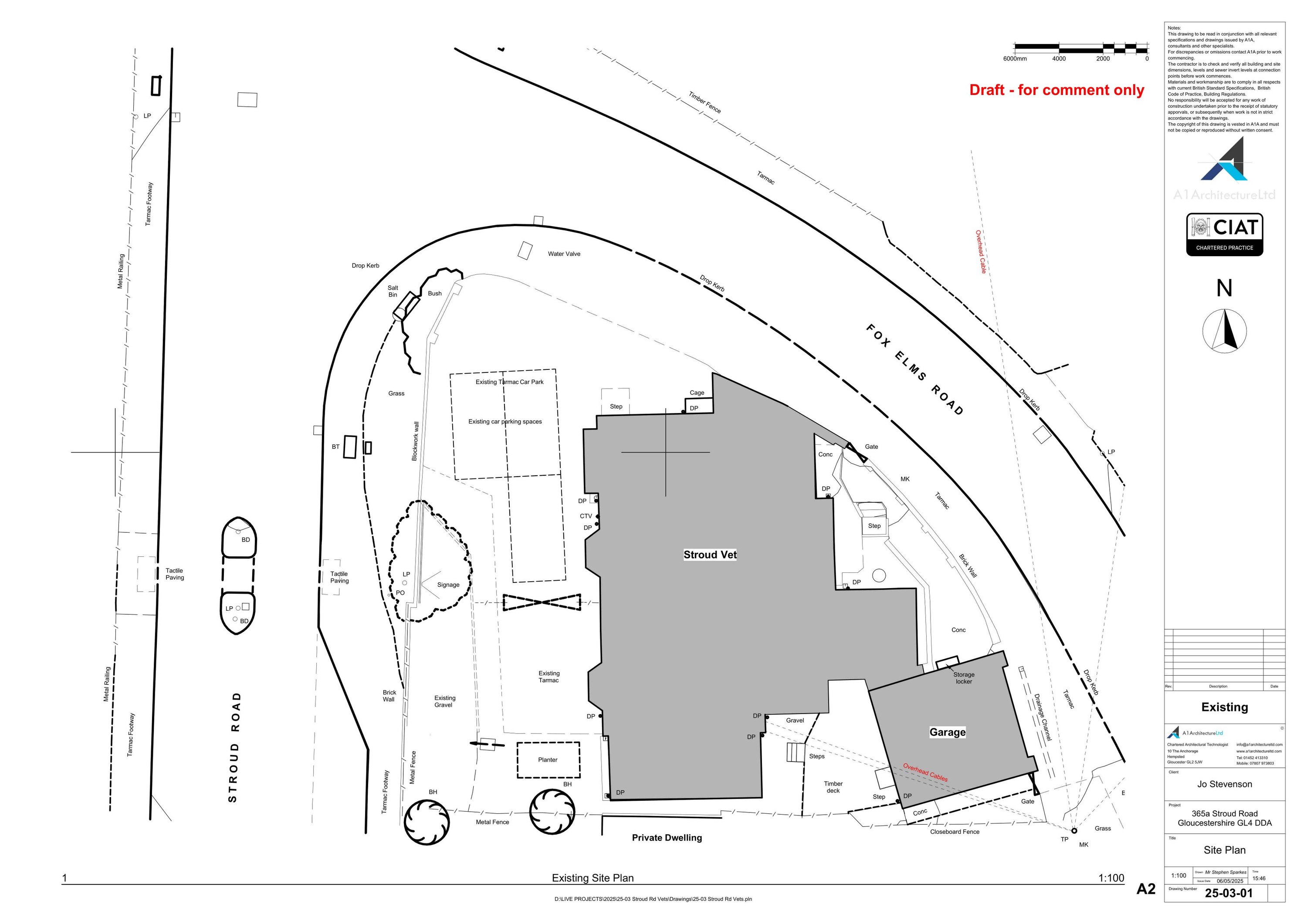
Existing Site Location and Block Plans
Plan
Not yet archived · Original link
First Floor Plan
Plan
Not yet archived · Original link
Flood Management comments
Consultee Comment
Not yet archived · Original link
Garage Elevations
Plan
Not yet archived · Original link
Garage Plan
Amended Plan
Not yet archived · Original link
Highways comments
Consultee Comment
Not yet archived · Original link
Highways comments
Consultee Comment
Not yet archived · Original link
Highways comments
Consultee Comment
Not yet archived · Original link
Net Bio-Diversity Statement
Supporting Information
Not yet archived · Original link
Noise comments
Consultee Comment
Not yet archived · Original link
Proposed First Floor Plan
Plan
Not yet archived · Original link
Proposed Ground Floor Plan
Plan
Not yet archived · Original link
Proposed Site Cross Sections
Amended Plan
Not yet archived · Original link
Proposed Site Cross Sections 2
Amended Plan
Not yet archived · Original link
Amended Plan
Archived · Original link
Amended Plan
Archived · Original link
Retaining wall
Plan
Not yet archived · Original link
Retaining Wall Plan
Amended Plan
Not yet archived · Original link
Supporting Letter from Applicant
Letter
Not yet archived · Original link

Have your say

Your comment matters. Councils must consider every representation that raises material planning considerations.

Write a comment