← Gloucester City Council

Status

Decided House extension
Received
12 Jul 2025
New homes
0

Full proposal

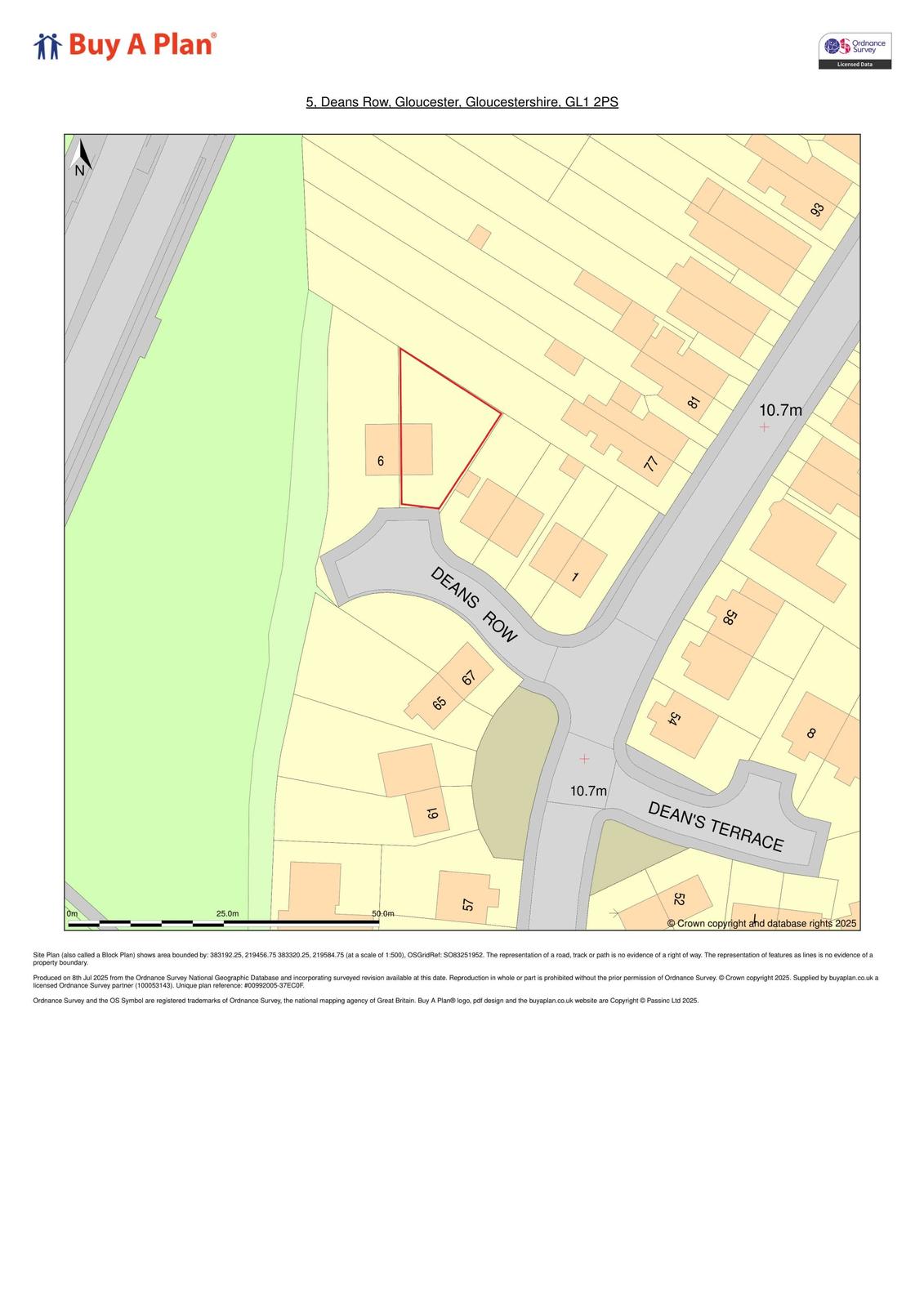
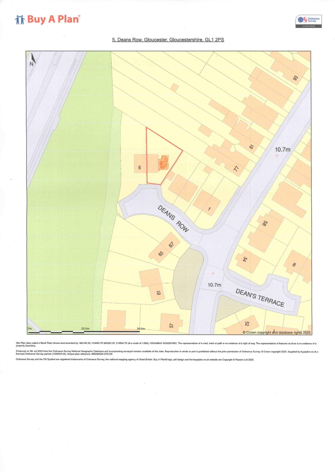
Single storey timber frame flat roof extension

Documents

Application form
Application Form
Not yet archived · Original link
Decision Notice
Decision
Not yet archived · Original link
Delegated Report
Delegated Report
Not yet archived · Original link
Existing Floor Plan
Plan
Not yet archived · Original link
Existing Front Elevation
Plan
Not yet archived · Original link
Existing Rear Elevation
Plan
Not yet archived · Original link
Existing Roof Plan
Amended Plan
Not yet archived · Original link
Existing Side Elevation
Amended Plan
Not yet archived · Original link
Existing Side Elevation 2
Amended Plan
Not yet archived · Original link
Flood Management Comments
Consultee Comment
Not yet archived · Original link
Flood Risk Assessment
Report
Not yet archived · Original link
Proposed Extension Floor Plan
Plan
Not yet archived · Original link
Proposed Floor Plan
Amended Plan
Not yet archived · Original link
Proposed Front Elevation
Amended Plan
Not yet archived · Original link
Proposed Rear Elevation
Amended Plan
Not yet archived · Original link
Proposed Roof Plan
Amended Plan
Not yet archived · Original link
Proposed Side Elevation
Amended Plan
Not yet archived · Original link
Proposed Side Elevation 2
Amended Plan
Not yet archived · Original link

Have your say

Your comment matters. Councils must consider every representation that raises material planning considerations.

Write a comment