← Gloucester City Council

Status

Registered House extension
Received
19 Jan 2026
New homes
0

Full proposal

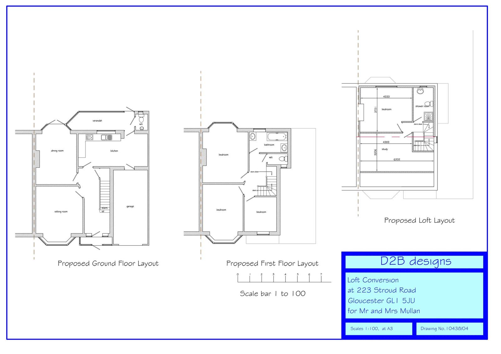
Conversion of loft to provide a study, a bedroom and shower room; comprising a rear box dormer, hip-to-gable roof extension, and 3no. front-facing rooflights'

Have your say

Your comment matters. Councils must consider every representation that raises material planning considerations.

Write a comment