← Gloucester City Council

Status

Unknown Change of use
Received
Last month
New homes
0

Full proposal

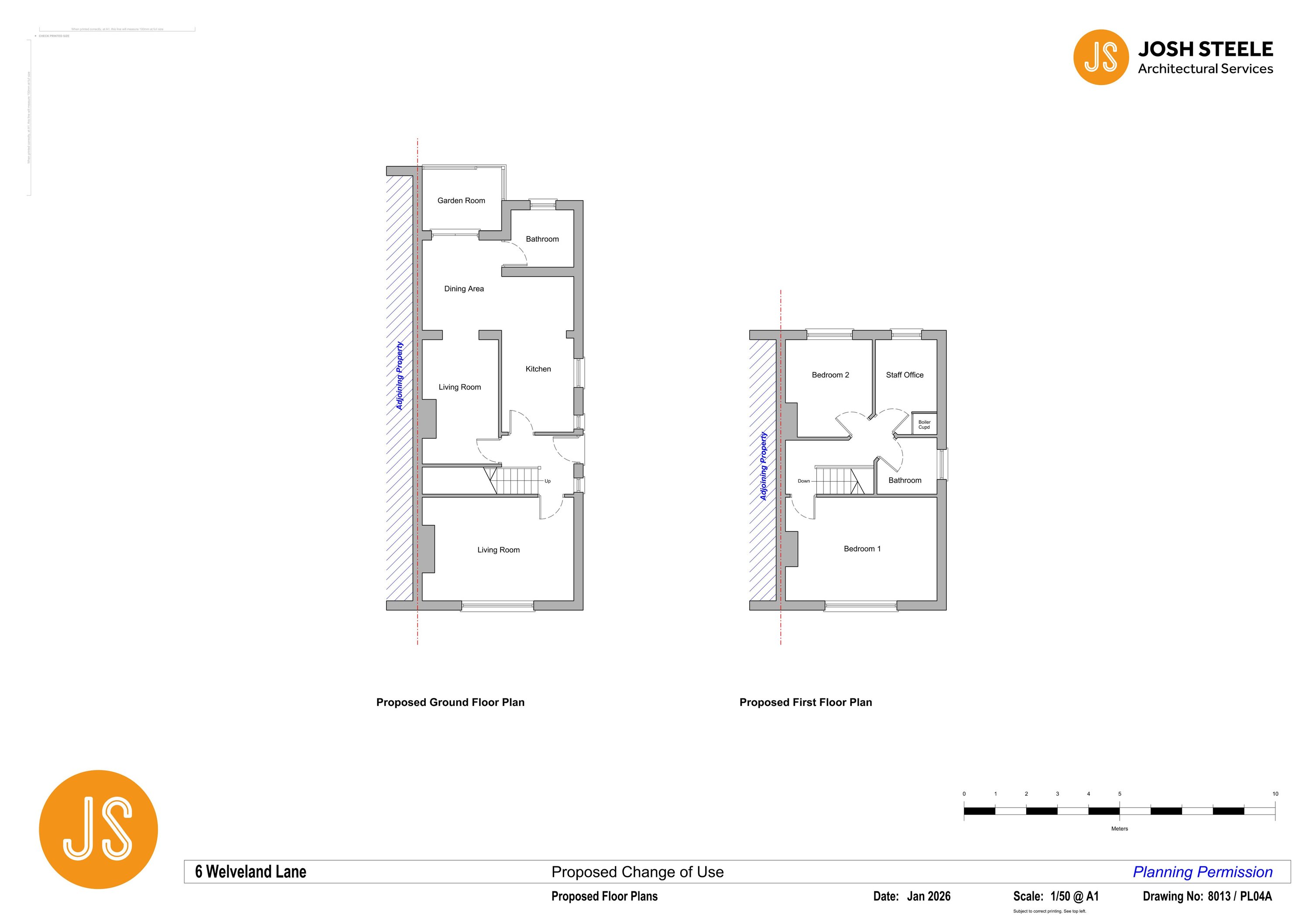
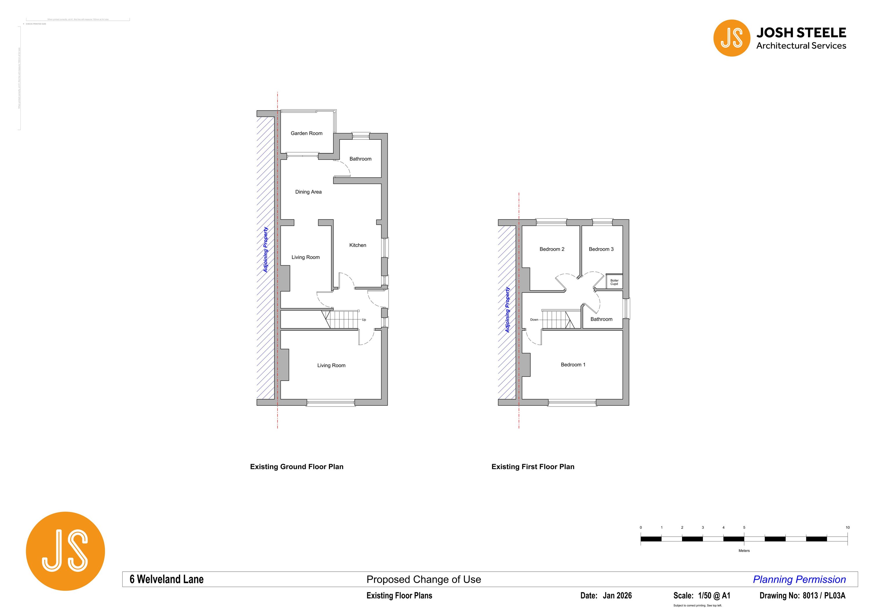
Change of use of existing dwelling house (Use Class C3) to a children's home (Use Class C2) for 2 children plus staffing.

Documents

Application Form
Archived · Original link
Consultee Comment
Archived · Original link
Consultee Comment
Archived · Original link
Consultee Comment
Archived · Original link
Report
Archived · Original link

Have your say

Your comment matters. Councils must consider every representation that raises material planning considerations.

Write a comment