← Gloucester City Council

Status

Unknown Demolition
Received
Last month
New homes
0

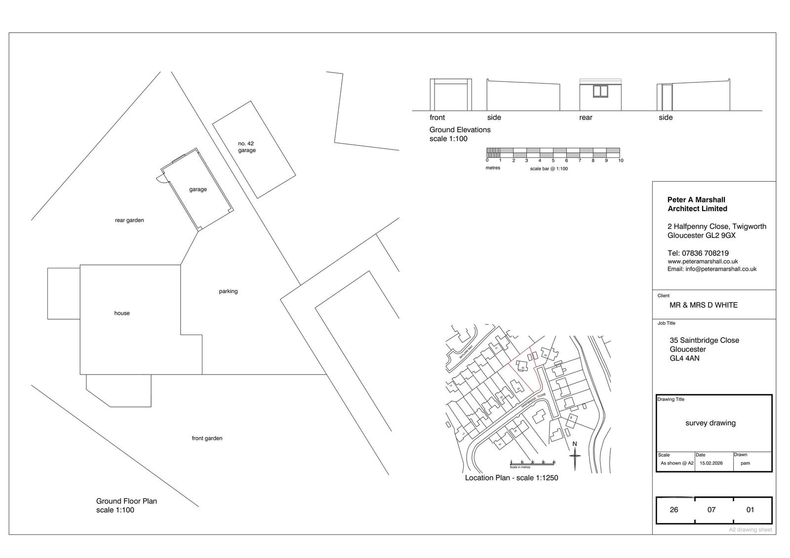
Full proposal

Demolition of garage and erection of replacement garage

Documents

Application Form
Archived · Original link
Superseded Plan
Archived · Original link
Proposed Block Plan & Garage Elevations, Floor Plan & Section
Plan
Not yet archived · Original link

Have your say

Your comment matters. Councils must consider every representation that raises material planning considerations.

Write a comment