← Greenwich

Status

Awaiting decision New housing
Received
03 Nov 2025
New homes
1

Full proposal

Construction of a two-storey detached dwelling with private amenity. (Re-consultation)

Documents

Acknowledgement letter
Correspondence
Not yet archived · Original link
Application form redacted
Application Form
Not yet archived · Original link
Bng 1 and 2
Document
Not yet archived · Original link
Bng assessment
Document
Not yet archived · Original link
Bng metric
Document
Not yet archived · Original link
Design & access & planning statement
Document
Not yet archived · Original link
Design & access & planning statement
Document
Not yet archived · Original link
Existing layout, tree protection,, proposed concept masterplan & detailed hard &
Document
Not yet archived · Original link
Existing location and block plan
Drawing
Not yet archived · Original link
Fire_statement
Document
Not yet archived · Original link
Heritage statement
Drawing
Not yet archived · Original link
Parking survey report
Document
Not yet archived · Original link
Preliminary ecological appraisal and roost assessment
Document
Not yet archived · Original link
Proposed cycle and bin store
Drawing
Not yet archived · Original link
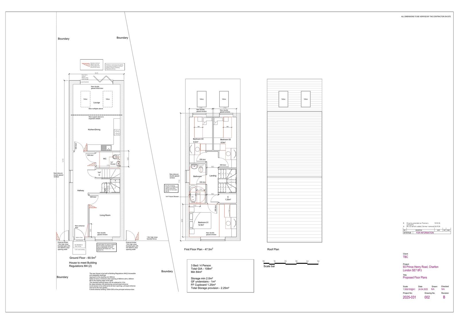
Proposed elevations
Drawing
Not yet archived · Original link
Proposed elevations & section
Drawing
Not yet archived · Original link
Drawing
Archived · Original link
Proposed location and block plan
Drawing
Not yet archived · Original link
Proposed street elevation
Drawing
Not yet archived · Original link
Revised proposed elevations and sections
Drawing
Not yet archived · Original link
Revised proposed street scene elevation
Drawing
Not yet archived · Original link
Traffic survey
Document
Not yet archived · Original link

Have your say

Your comment matters. Councils must consider every representation that raises material planning considerations.

Write a comment