← Greenwich

Status

Registered Commercial
Received
01 Dec 2025
New homes
0

Full proposal

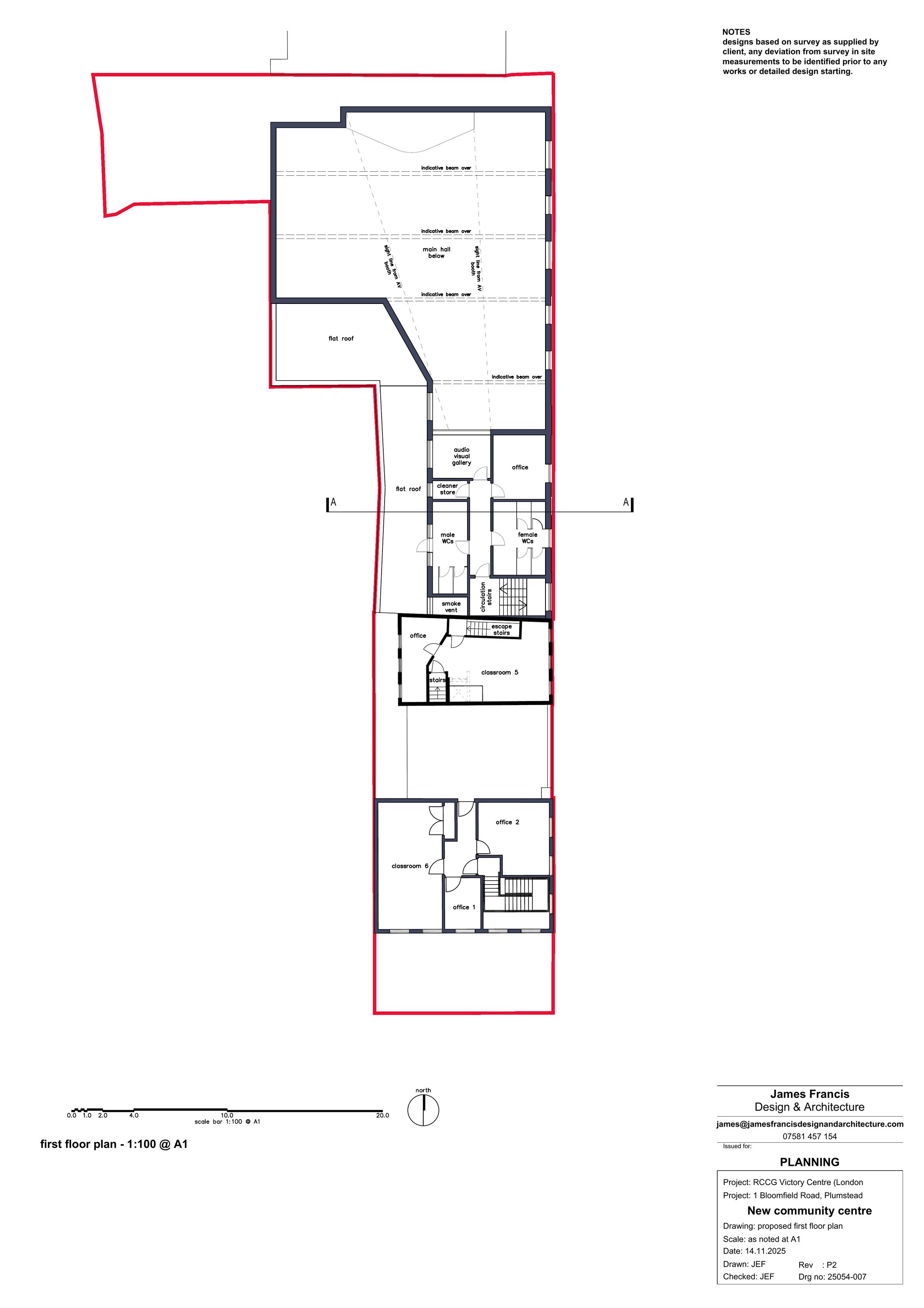
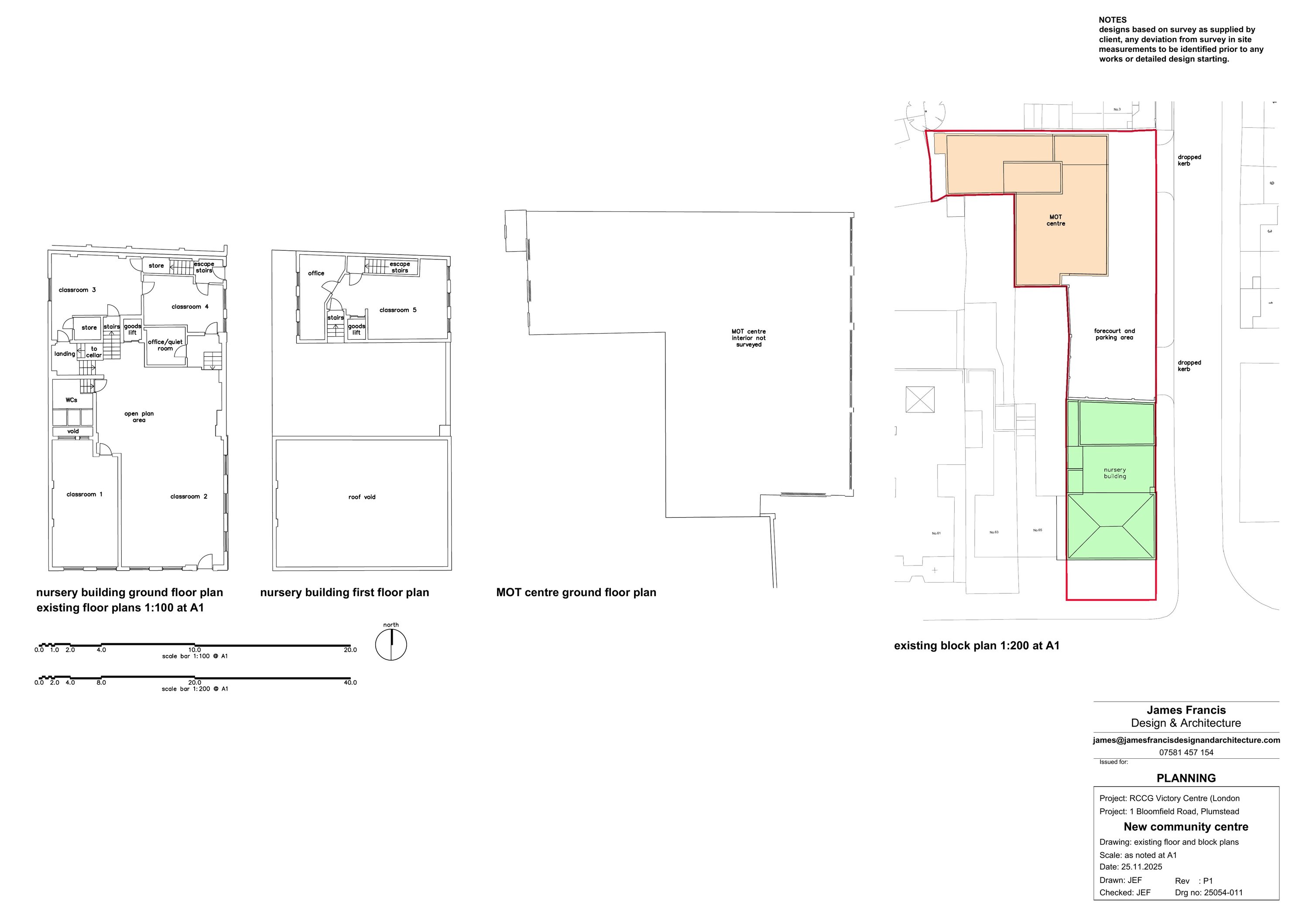
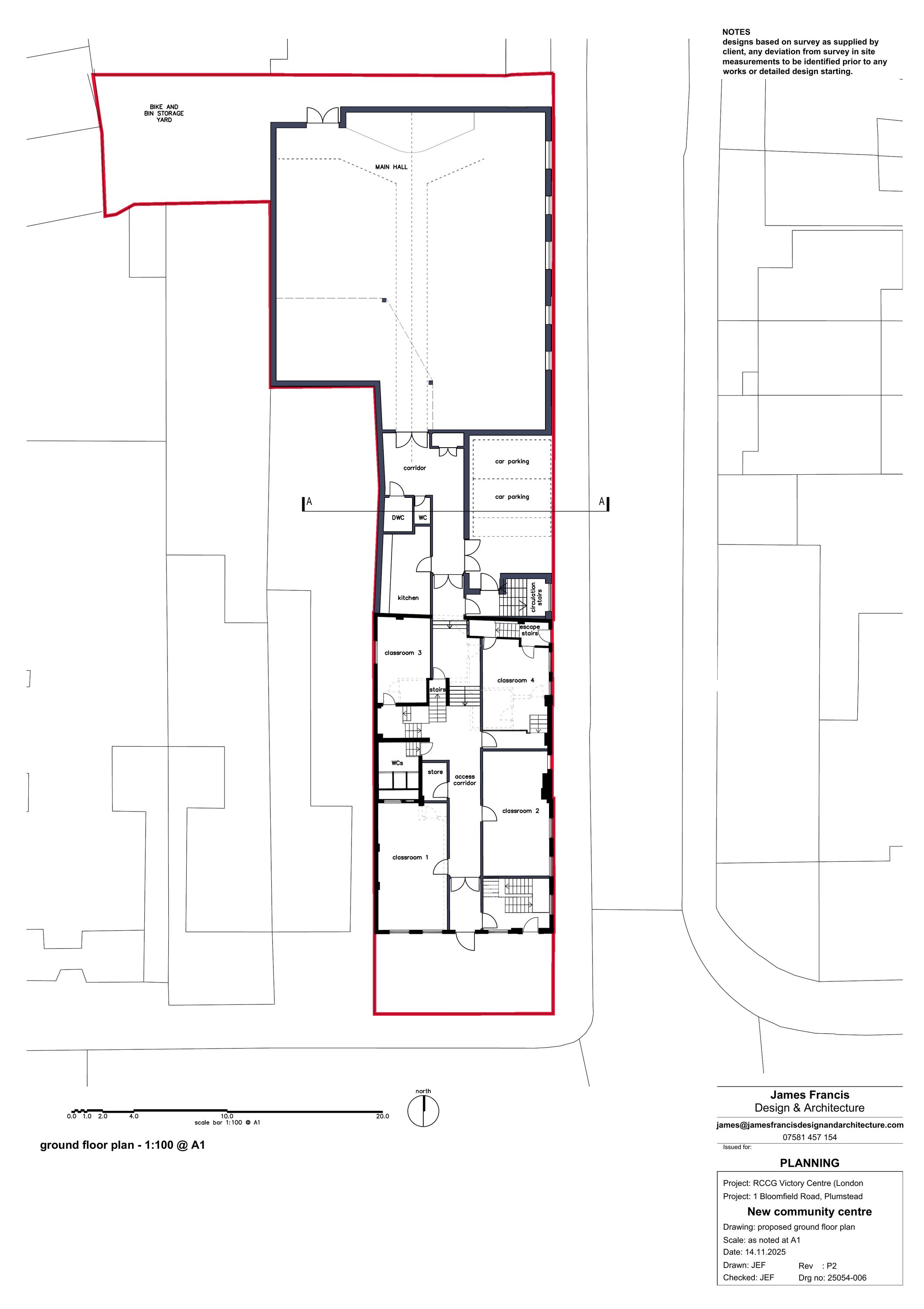
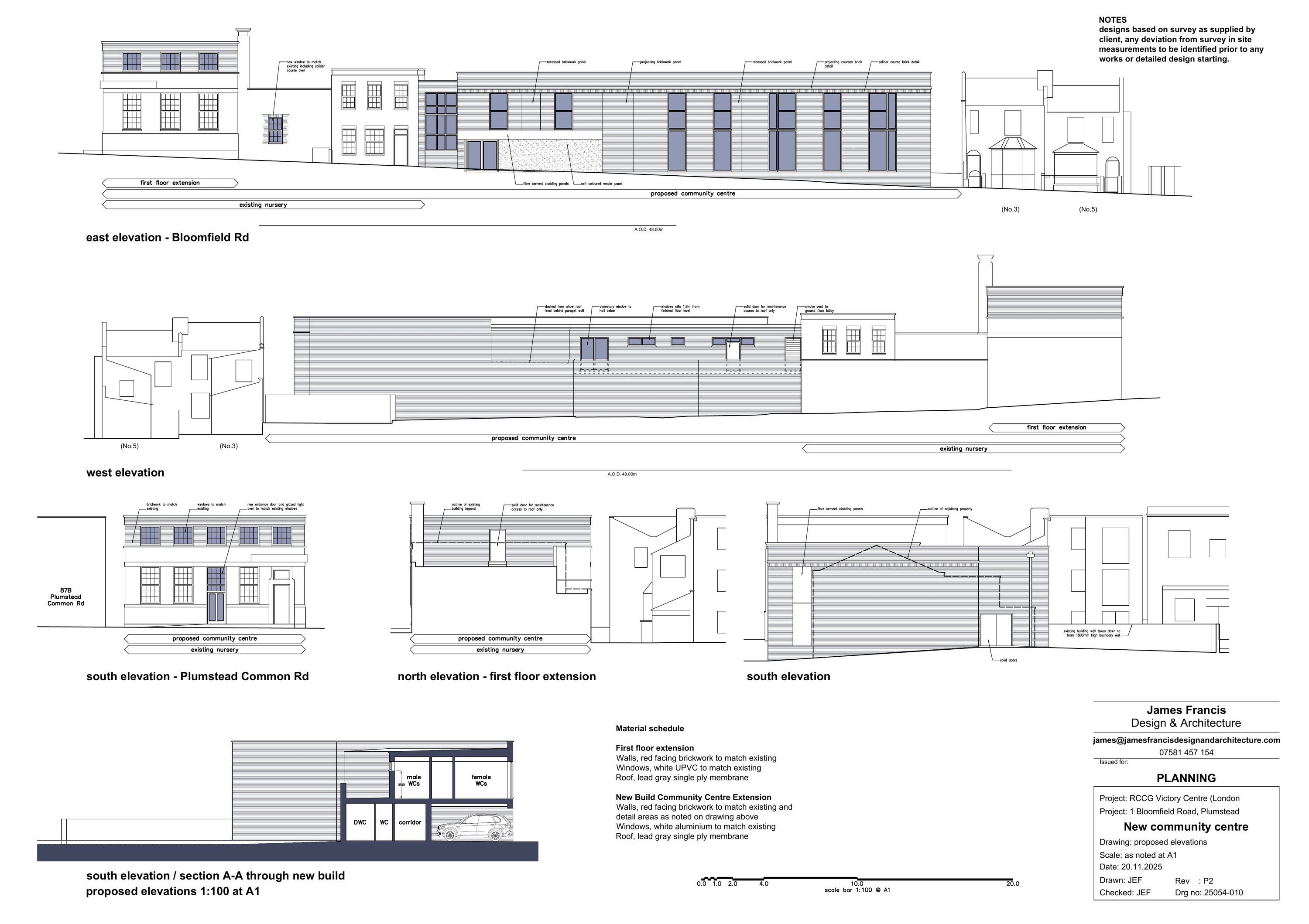
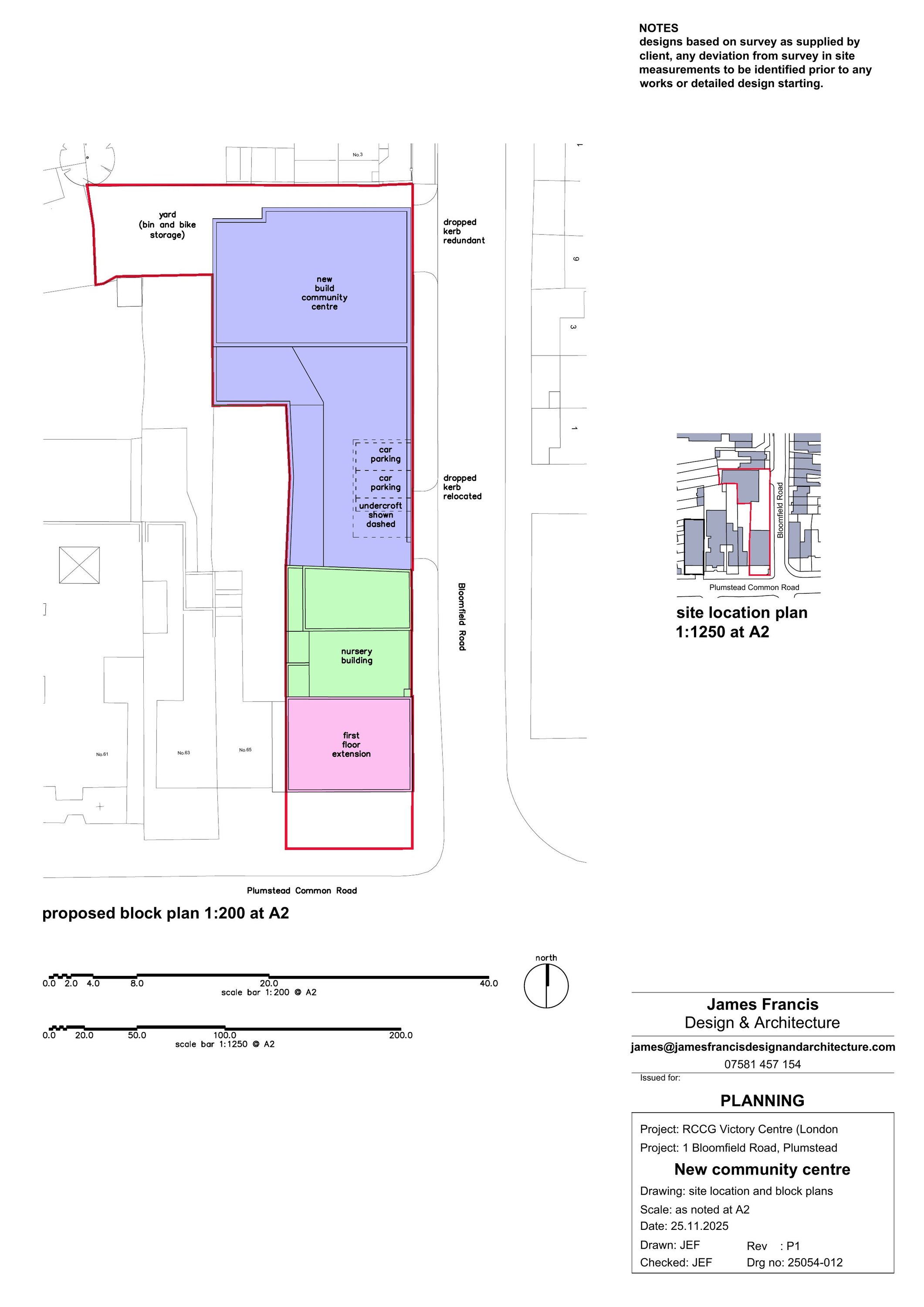
'Demolition of the existing MOT test centre building at 1 Bloomfield Road and the construction of a two-storey rear extension together with an upward extension to Nos. 67/69 Plumstead Common Road, to enable the reconfiguration and enlargement of the existing children's nursery to improve its functionality, and to provide a new place of worship and community centre, including associated internal and external alterations, access arrangements and ancillary works.' (Reconsultation)(Revised description).

Have your say

Your comment matters. Councils must consider every representation that raises material planning considerations.

Write a comment