← Greenwich

Status

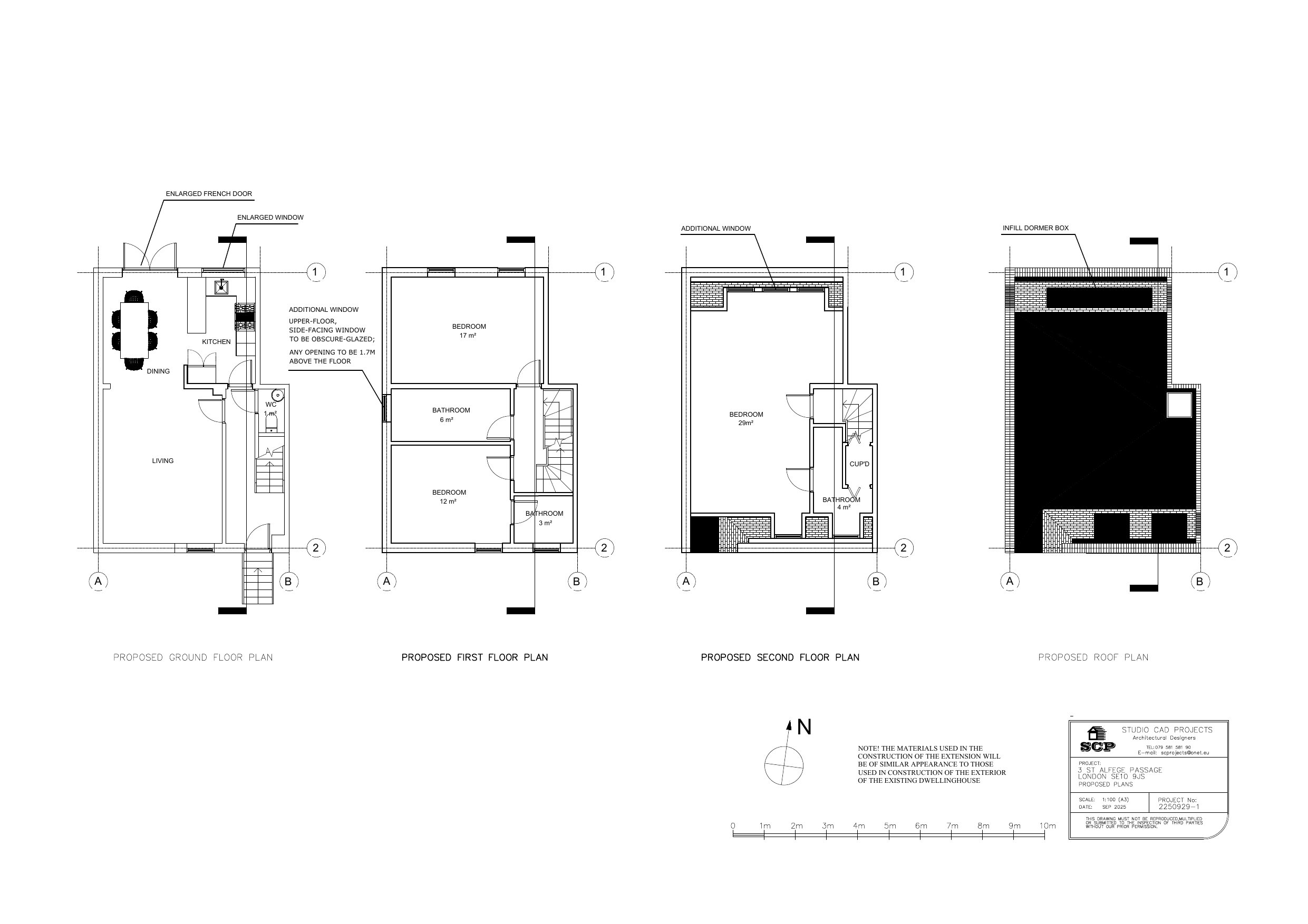
Registered House extension
Received
22 Dec 2025
New homes
0

Full proposal

Conversion of the two existing rear dormers to one large rear dormer, installation of a window to the side elevation (first floor level), enlargement of the rear lower ground floor doors and window and all associated works. (Amended Description)

Have your say

Your comment matters. Councils must consider every representation that raises material planning considerations.

Write a comment