← Greenwich

Status

Registered Change of use
Received
27 Jan 2026
New homes
1

Full proposal

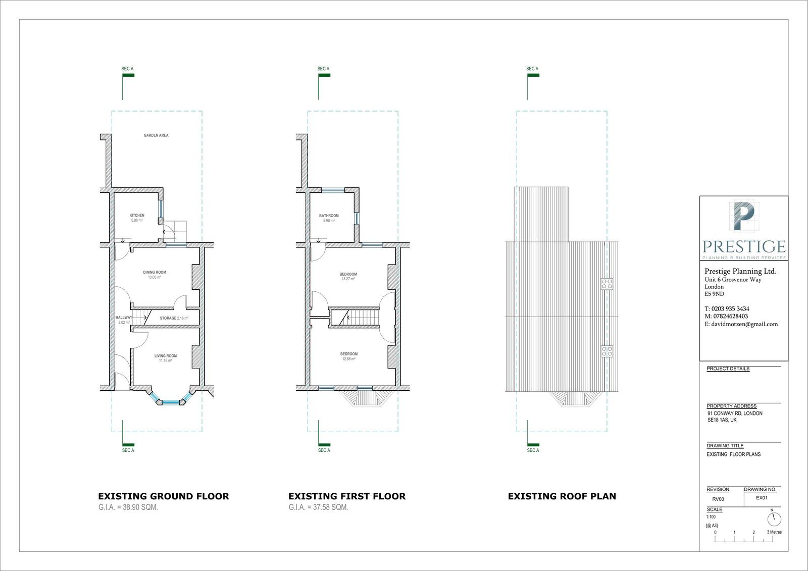
Conversion of a single-family dwellinghouse (Use Class C3) into 2 self-contained flats, in addition to the construction of ground floor rear extensions, first floor rear extension, rear and outrigger dormer and loft conversion, installation of rooflights, provision of cycle and refuse storage and all other associated alterations

Documents

Application form redacted
Application Form
Not yet archived · Original link
Correspondance
Correspondence
Not yet archived · Original link
Cover letter
Document
Not yet archived · Original link
Design and access statement
Document
Not yet archived · Original link
Fire statement (london plan policy d12)
Document
Not yet archived · Original link
Location plan
Drawing
Not yet archived · Original link
Planning statement
Document
Not yet archived · Original link
Proposed elevations
Drawing
Not yet archived · Original link
Proposed floor and roof plans
Drawing
Not yet archived · Original link

Have your say

Your comment matters. Councils must consider every representation that raises material planning considerations.

Write a comment