← Greenwich

Status

Registered Commercial
Received
19 Jan 2026
New homes
0

Full proposal

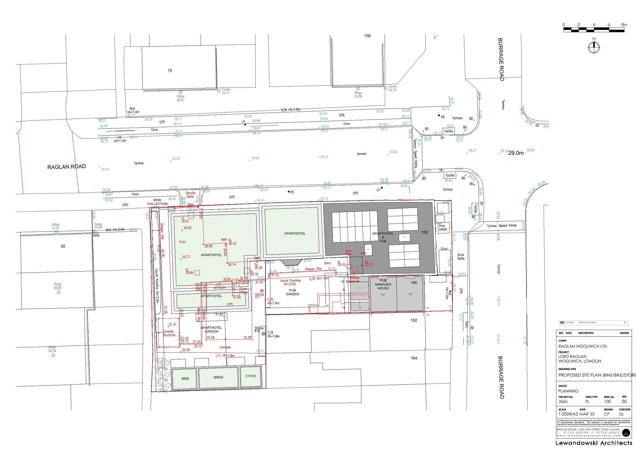
External alterations and construction of first floor rear extension, construction of part 1, part 2 storey rear extension and second floor (roof) extension to the Lord Raglan PH; construction of part 1, part 2 storey extension to the rear of 160 Burrage Road; retention of public house use across part ground and basement levels alongside new 18 room aparthotel; reconfiguration of 160 Burrage Road to provide ancillary staff accommodation and manager?s flat; reinstatement of dropped kerb along Raglan Road; formation of new pub garden together with new hard and soft landscaping, bin and cycle stores.

Documents

Application form redacted
Application Form
Not yet archived · Original link
Bng metric
Document
Not yet archived · Original link
Bng report
Document
Not yet archived · Original link
Correspondance
Correspondence
Not yet archived · Original link
Daylight and sunlight report
Document
Not yet archived · Original link
Delivery and servicing plan
Document
Not yet archived · Original link
Design and access statement
Document
Not yet archived · Original link
Elevations
Drawing
Not yet archived · Original link
Elevations 2
Drawing
Not yet archived · Original link
Energy and sustainability statement
Document
Not yet archived · Original link
Existing basement plan
Drawing
Not yet archived · Original link
Existing elevation
Drawing
Not yet archived · Original link
Existing elevations
Drawing
Not yet archived · Original link
Existing first floor plan
Drawing
Not yet archived · Original link
Existing front elevation
Drawing
Not yet archived · Original link
Existing ground floor plan
Drawing
Not yet archived · Original link
Existing ground floor plan 2
Drawing
Not yet archived · Original link
Existing roof plan
Drawing
Not yet archived · Original link
Drawing
Archived · Original link
Existing street ele/ section a
Drawing
Not yet archived · Original link
Existing street elevation
Drawing
Not yet archived · Original link
Existing street scene
Drawing
Not yet archived · Original link
Fire statement
Document
Not yet archived · Original link
Front elevation
Drawing
Not yet archived · Original link
Marketing letter
Document
Not yet archived · Original link
Noise impact assessment
Document
Not yet archived · Original link
Outbuilding
Drawing
Not yet archived · Original link
Planning statement
Document
Not yet archived · Original link
Preliminary ecological appraisal
Document
Not yet archived · Original link
Proposed basement
Drawing
Not yet archived · Original link
Proposed basement demo
Drawing
Not yet archived · Original link
Proposed elevation
Drawing
Not yet archived · Original link
Proposed elevation 2
Drawing
Not yet archived · Original link
Proposed first floor demo
Drawing
Not yet archived · Original link
Proposed first floor plan
Drawing
Not yet archived · Original link
Proposed ground floor demo
Drawing
Not yet archived · Original link
Proposed ground floor plan
Drawing
Not yet archived · Original link
Proposed roof demo
Drawing
Not yet archived · Original link
Proposed roof plan
Drawing
Not yet archived · Original link
Proposed second floor demo
Drawing
Not yet archived · Original link
Proposed second floor plan
Drawing
Not yet archived · Original link
Proposed street elevation
Drawing
Not yet archived · Original link
Proposed street elevation 2
Drawing
Not yet archived · Original link
Street elevation / sect a demo
Drawing
Not yet archived · Original link
Street elevation / section a
Drawing
Not yet archived · Original link
Street scene
Council`s Case
Not yet archived · Original link
Street scene demo
Drawing
Not yet archived · Original link
Transport statement
Document
Not yet archived · Original link
Visitor accomodation need assessment
Document
Not yet archived · Original link

Have your say

Your comment matters. Councils must consider every representation that raises material planning considerations.

Write a comment