← Greenwich

Status

Registered House extension
Received
21 Jan 2026
New homes
0

Full proposal

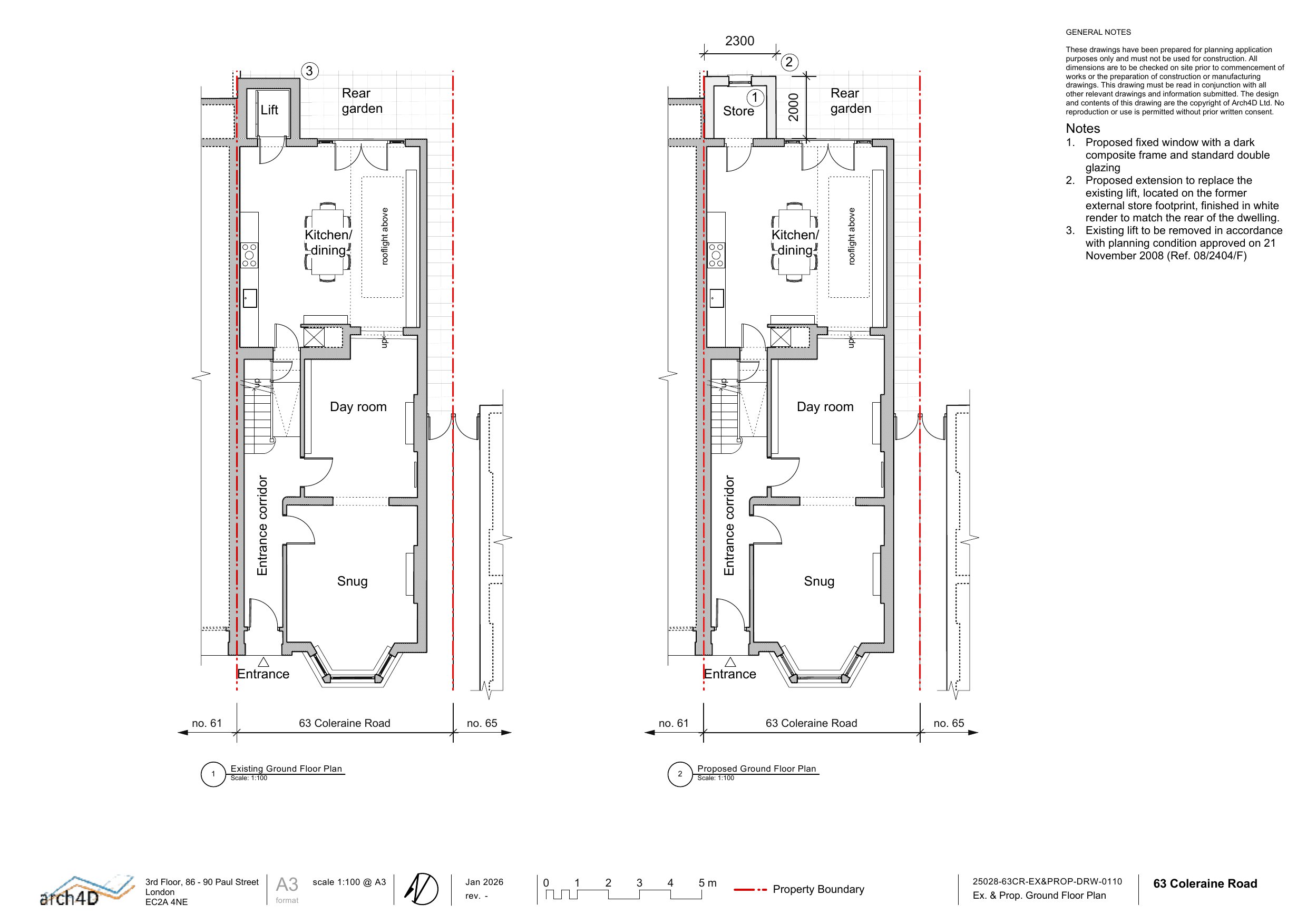
Demolition of the existing rear lift shaft, construction of a single-storey rear extension, and relocation of the first-floor rear window adjacent to the lift shaft and associated works.

Have your say

Your comment matters. Councils must consider every representation that raises material planning considerations.

Write a comment