← Greenwich

Status

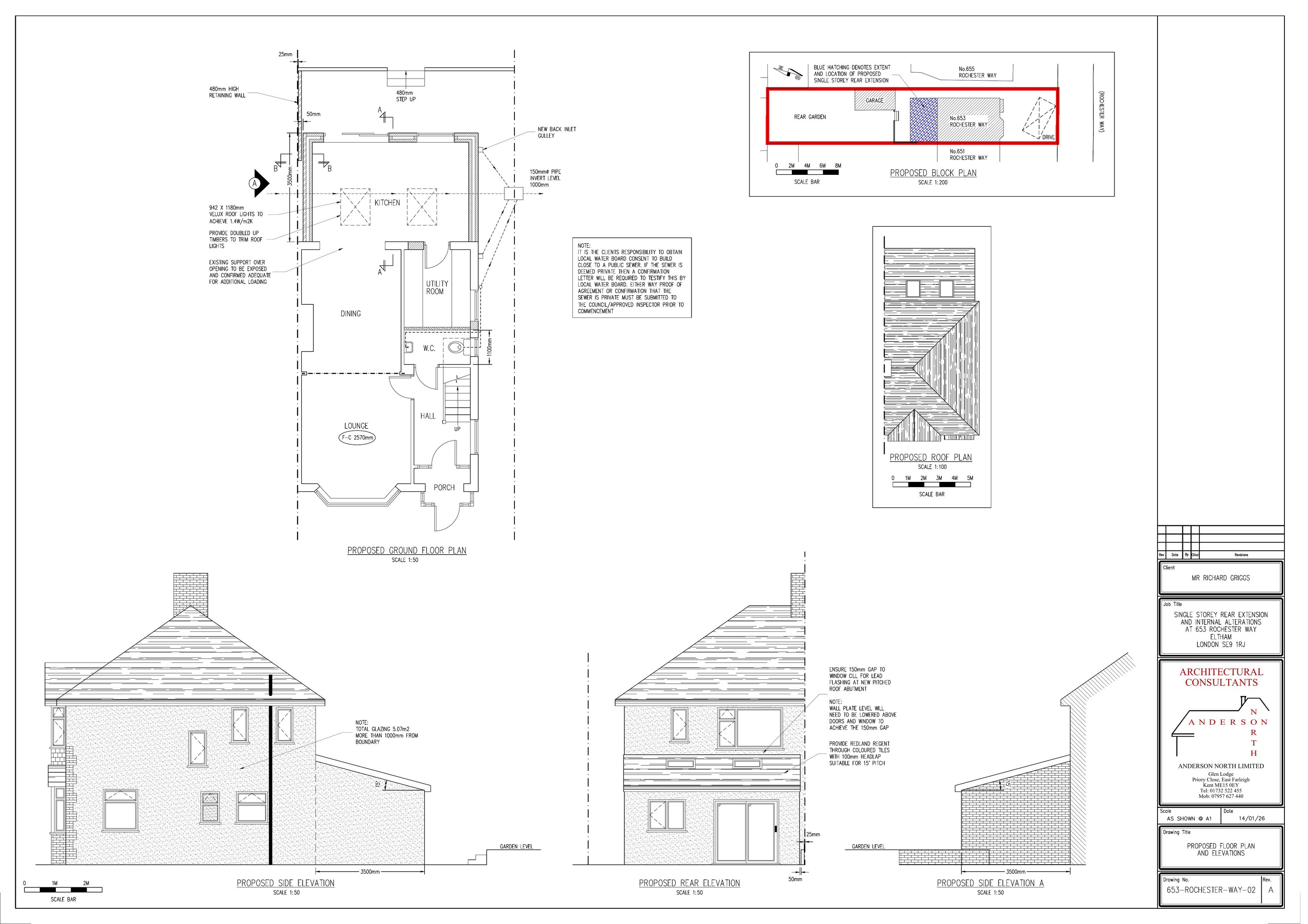
Registered House extension
Received
21 Jan 2026
New homes
0

Full proposal

Construction of a single storey rear extension, installation of rooflights and window to the side and associated works.

Have your say

Your comment matters. Councils must consider every representation that raises material planning considerations.

Write a comment