← Greenwich

Status

Registered House extension
Received
29 Jan 2026
New homes
0

Full proposal

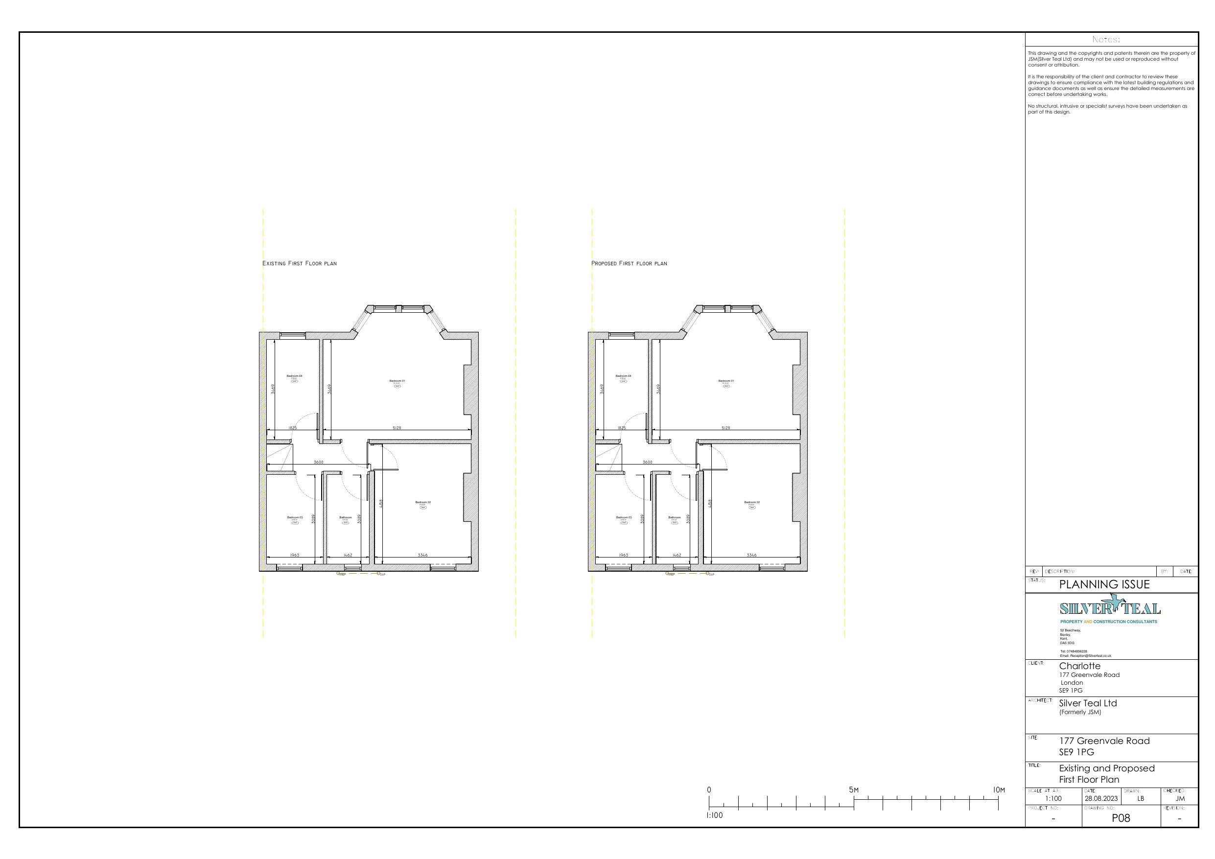
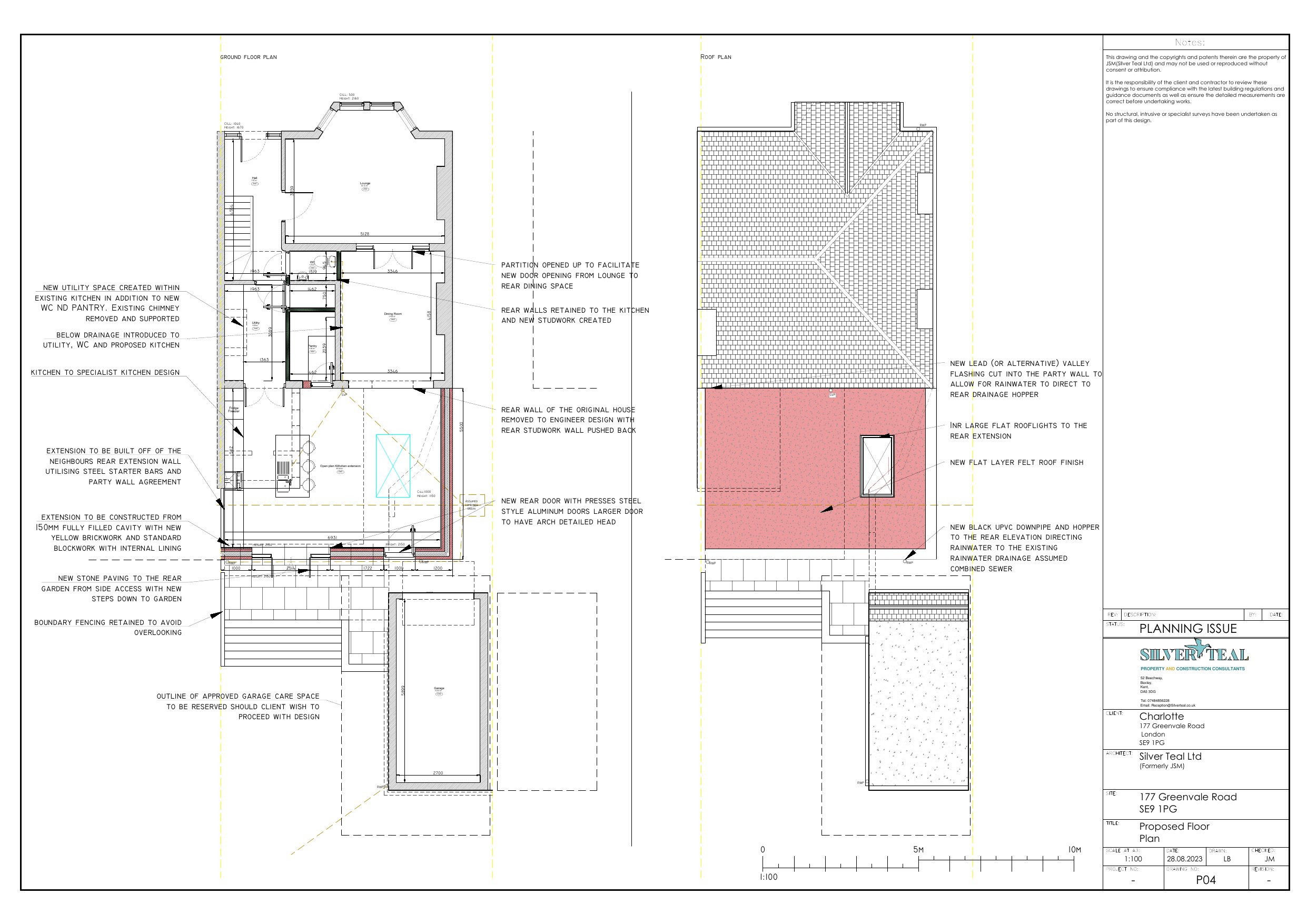
Construction of a single storey rear extension.

Documents

Application Form
Archived · Original link
Correspondence
Archived · Original link
Drawing
Archived · Original link
Drawing
Archived · Original link
Drawing
Archived · Original link
Photo
Archived · Original link
Drawing
Archived · Original link
Drawing
Archived · Original link
Drawing
Archived · Original link

Have your say

Your comment matters. Councils must consider every representation that raises material planning considerations.

Write a comment