← Greenwich

Status

Registered House extension
Received
Last month
New homes
0

Full proposal

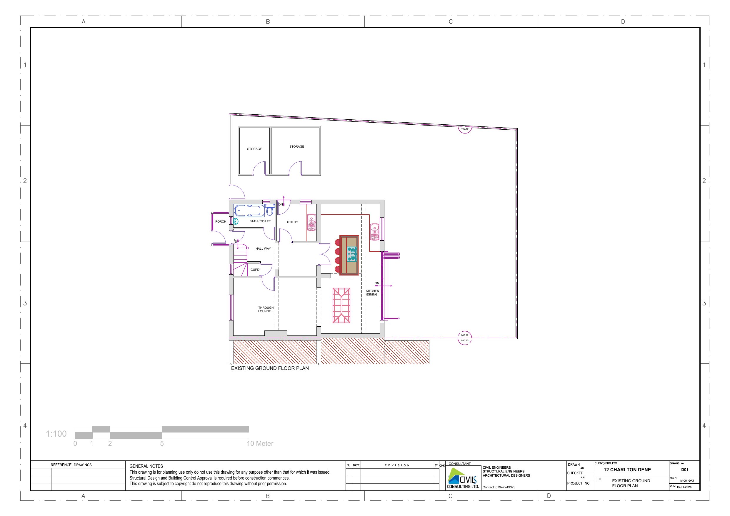
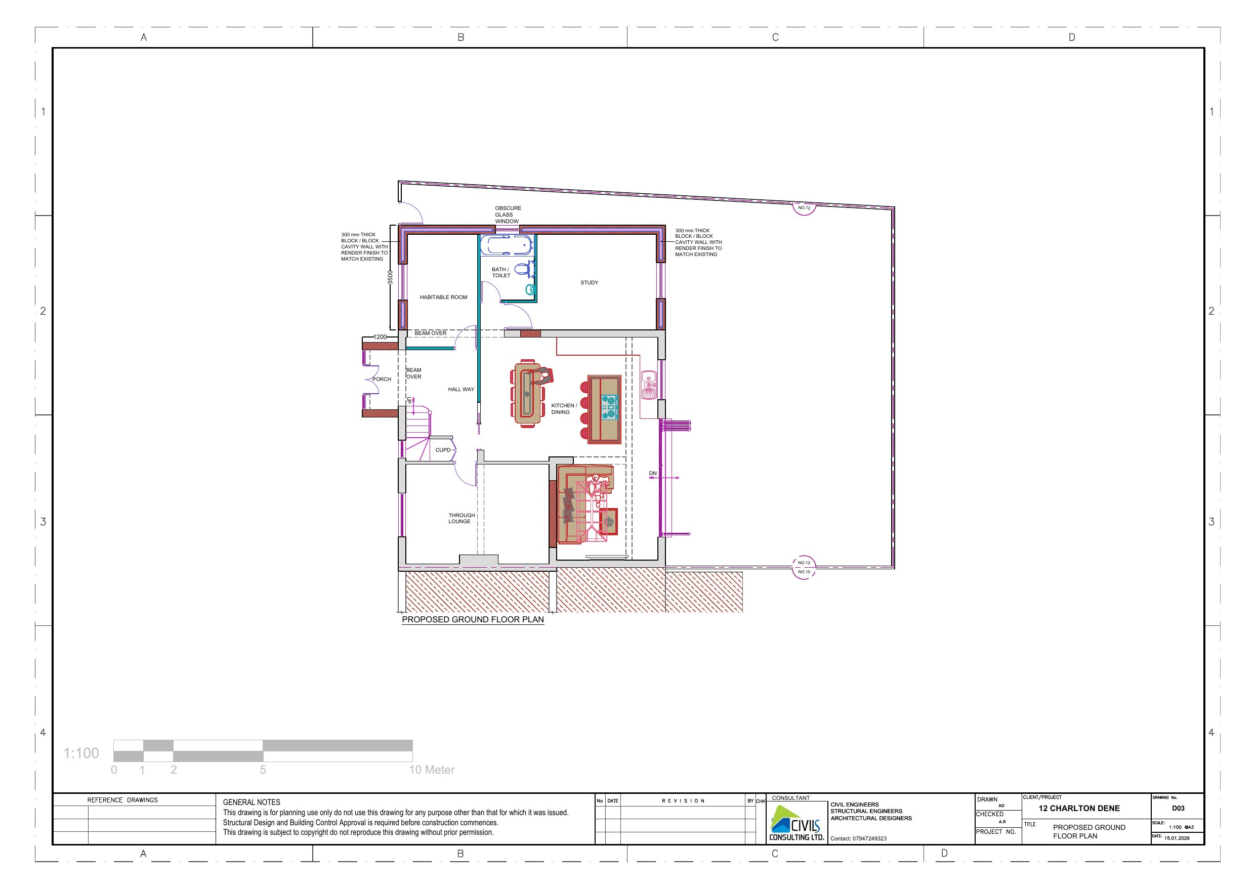
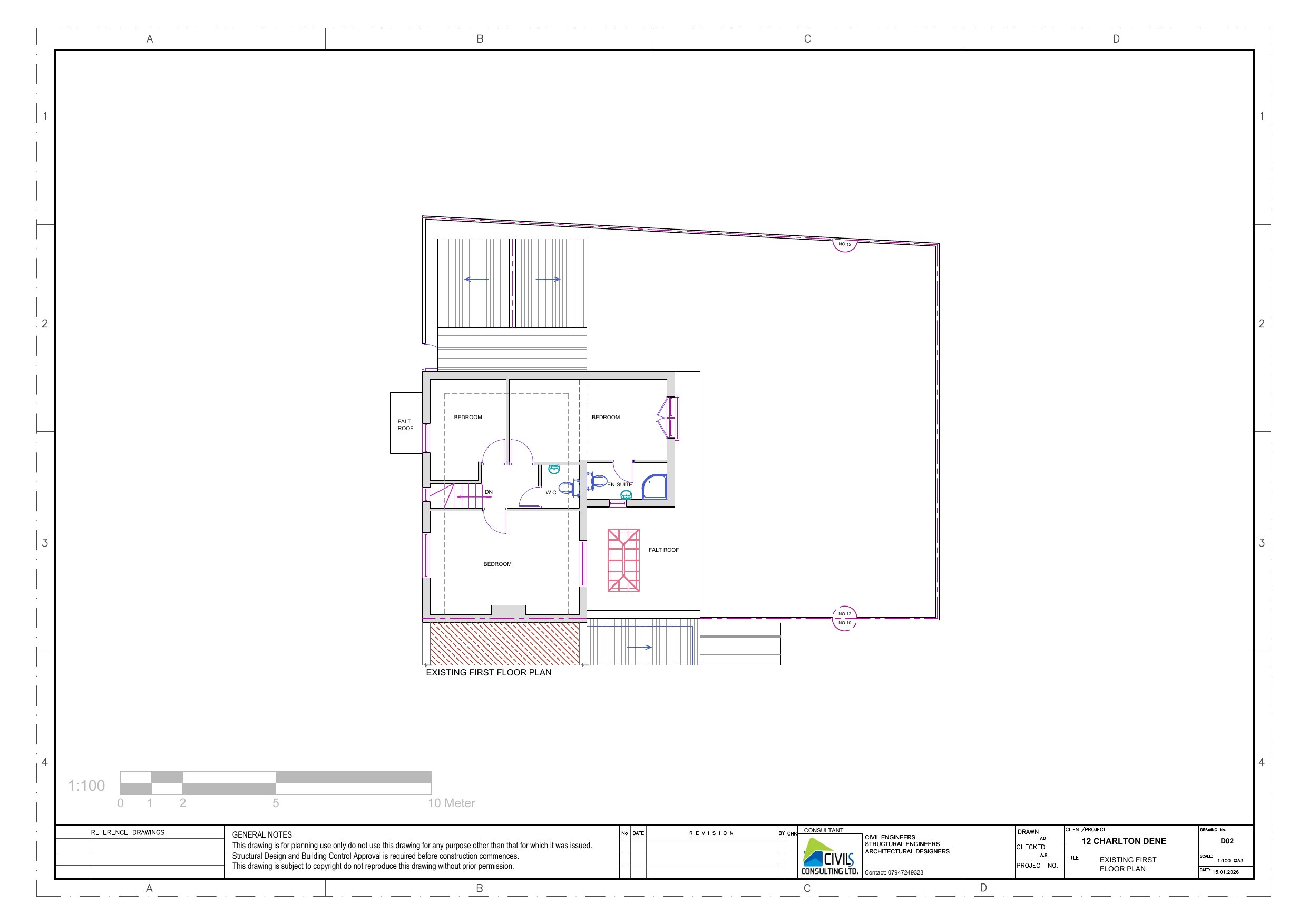
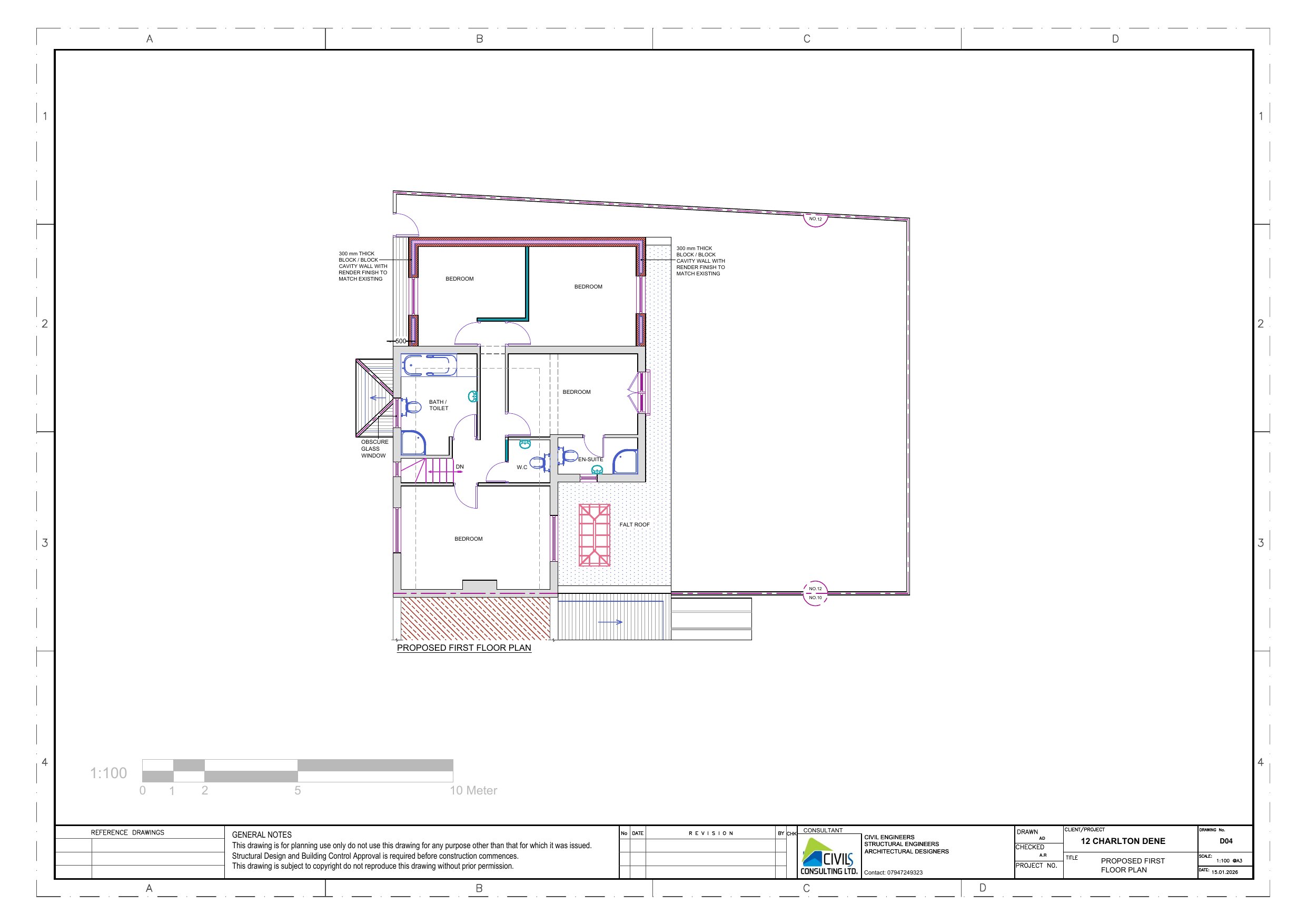
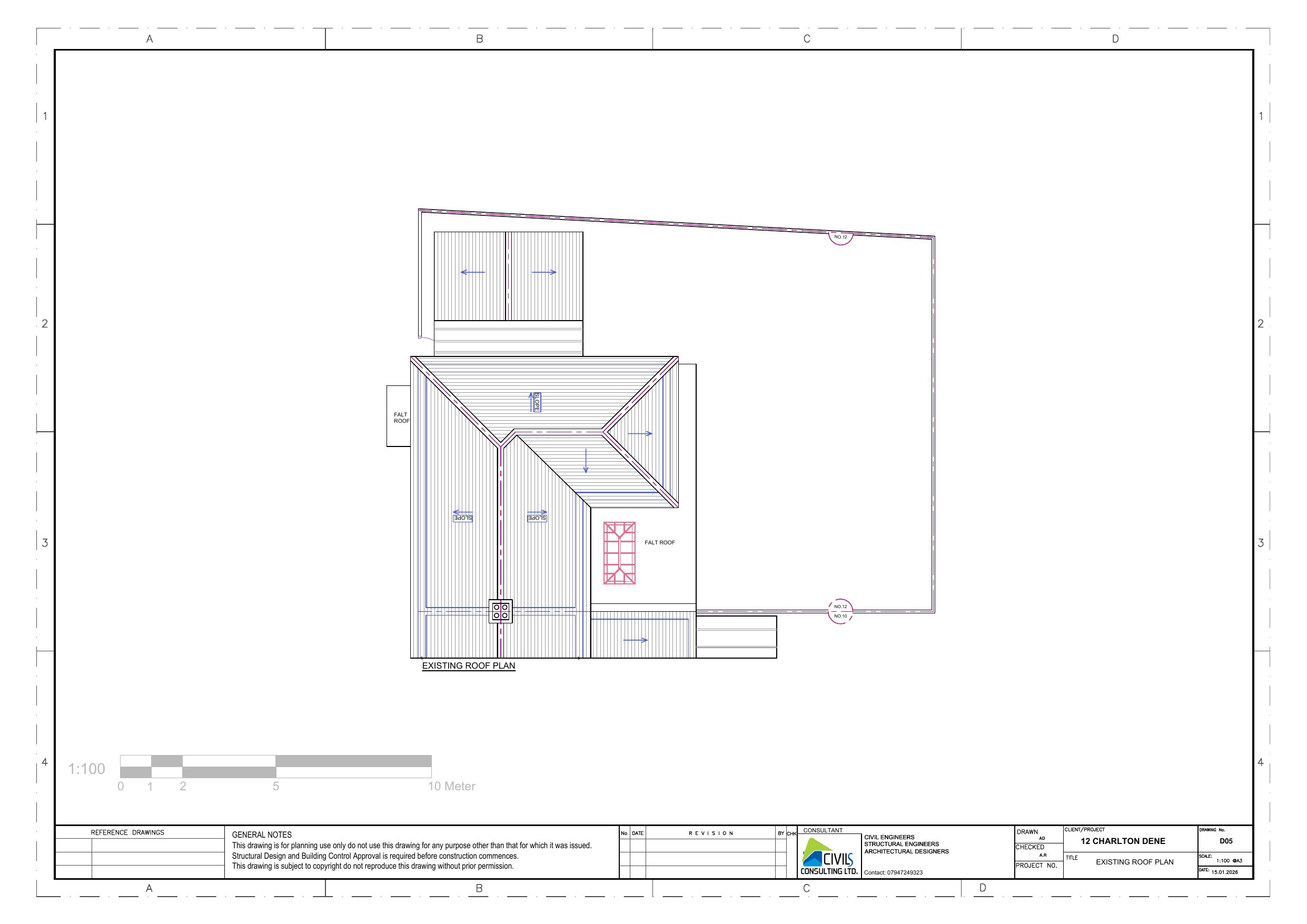
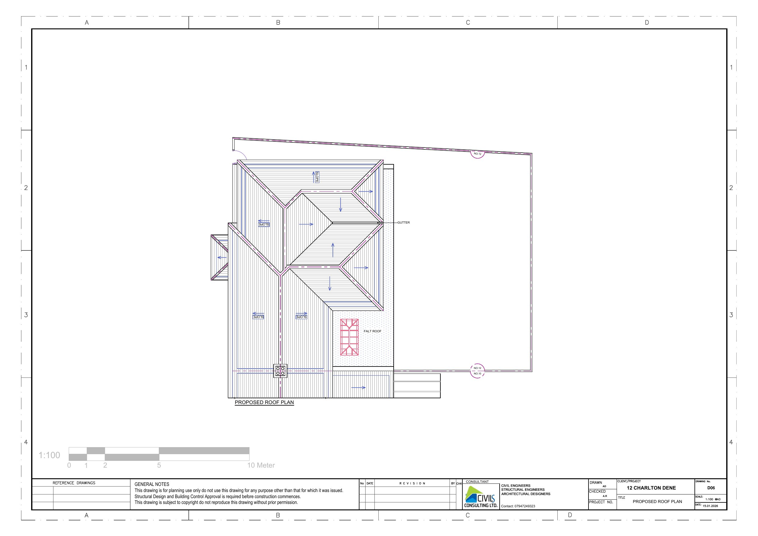
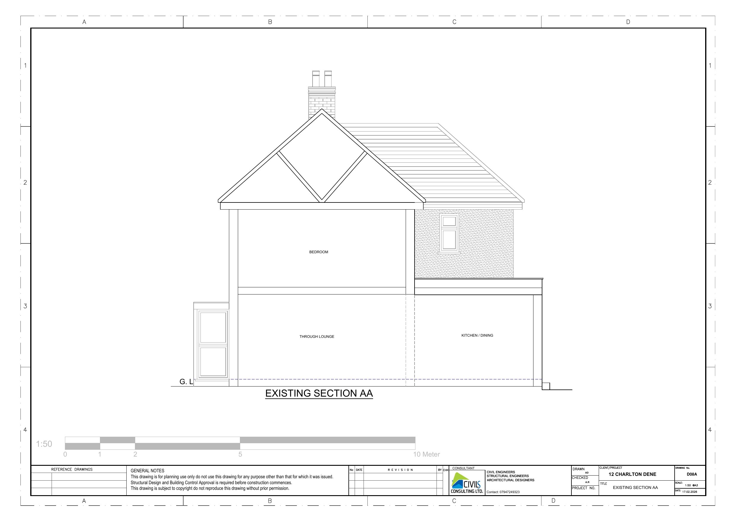
Construction of proposed ground and first floor side and rear extension including front porch and all associated works.

Have your say

Your comment matters. Councils must consider every representation that raises material planning considerations.

Write a comment