26/0421/HD
Greenwich
Status
Registered
House extension
Received
Last month
New homes
0
Full proposal
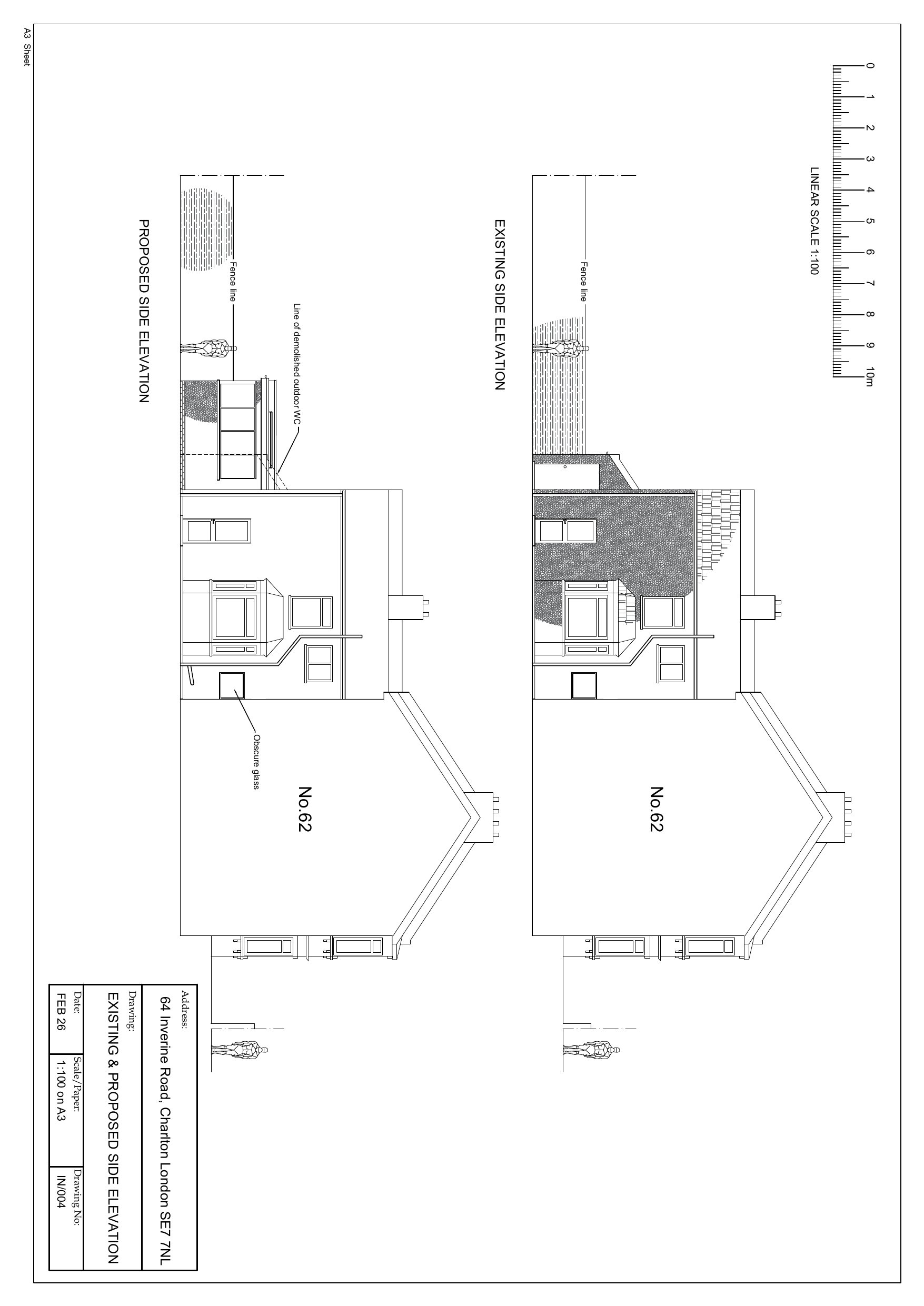
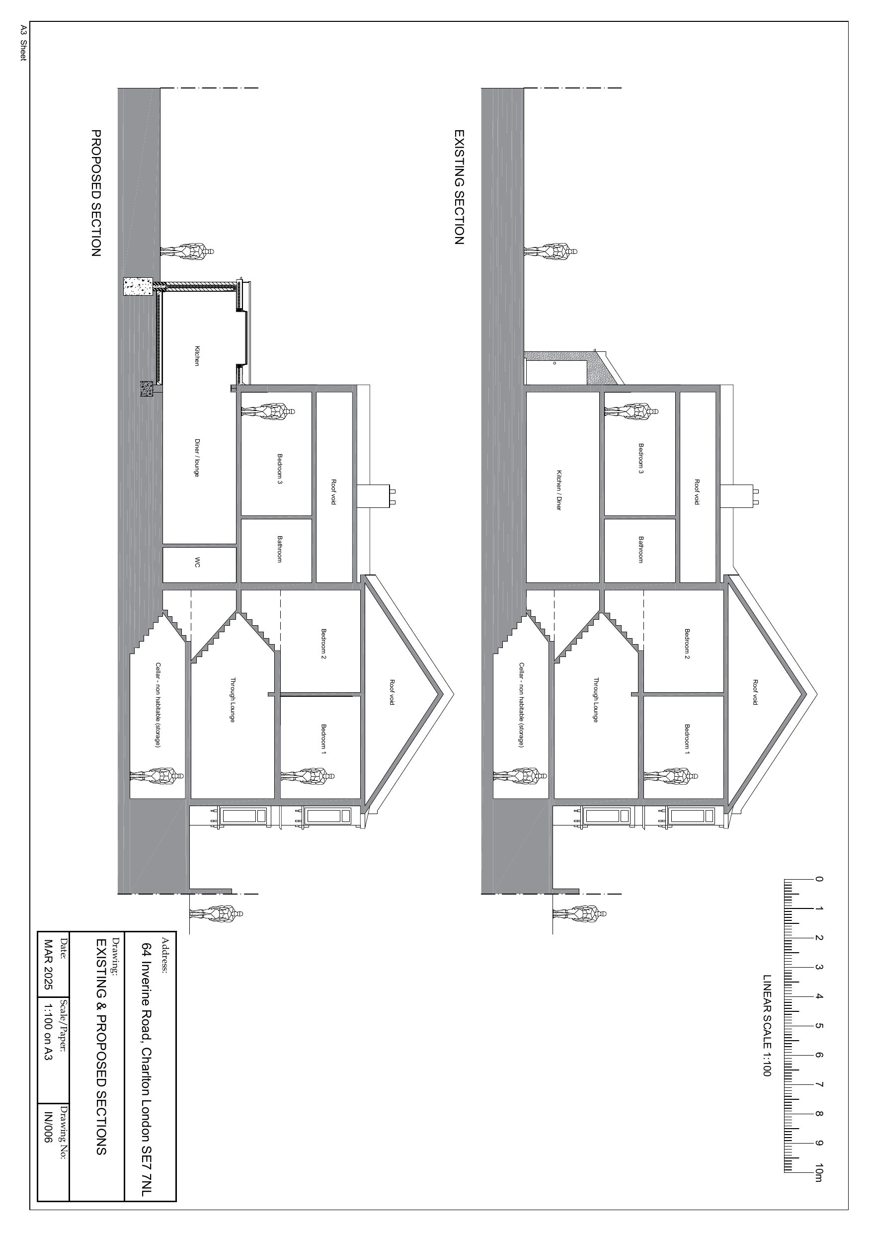
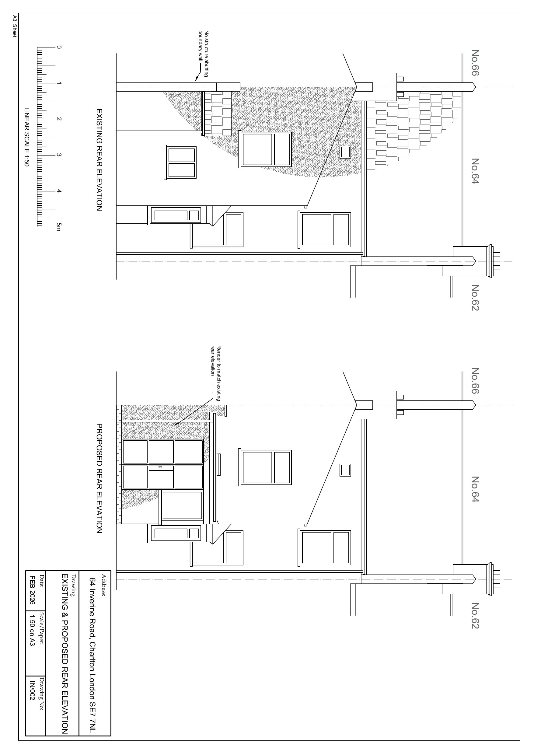
Construction of single storey rear extension with associated internal works
Documents
Have your say
Your comment matters. Councils must consider every representation that raises material planning considerations.