← Greenwich

Status

Registered House extension
Received
Last month
New homes
0

Full proposal

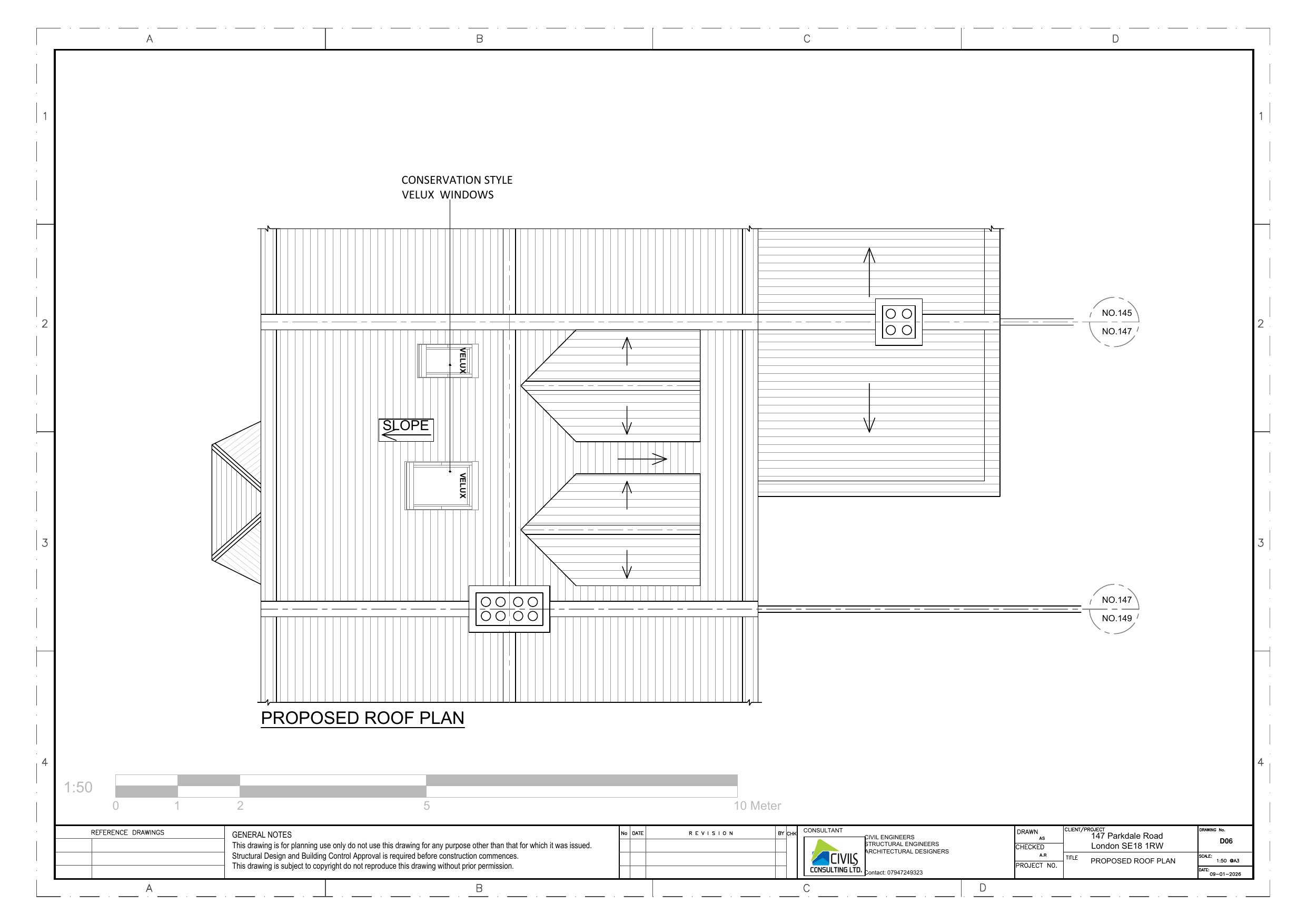
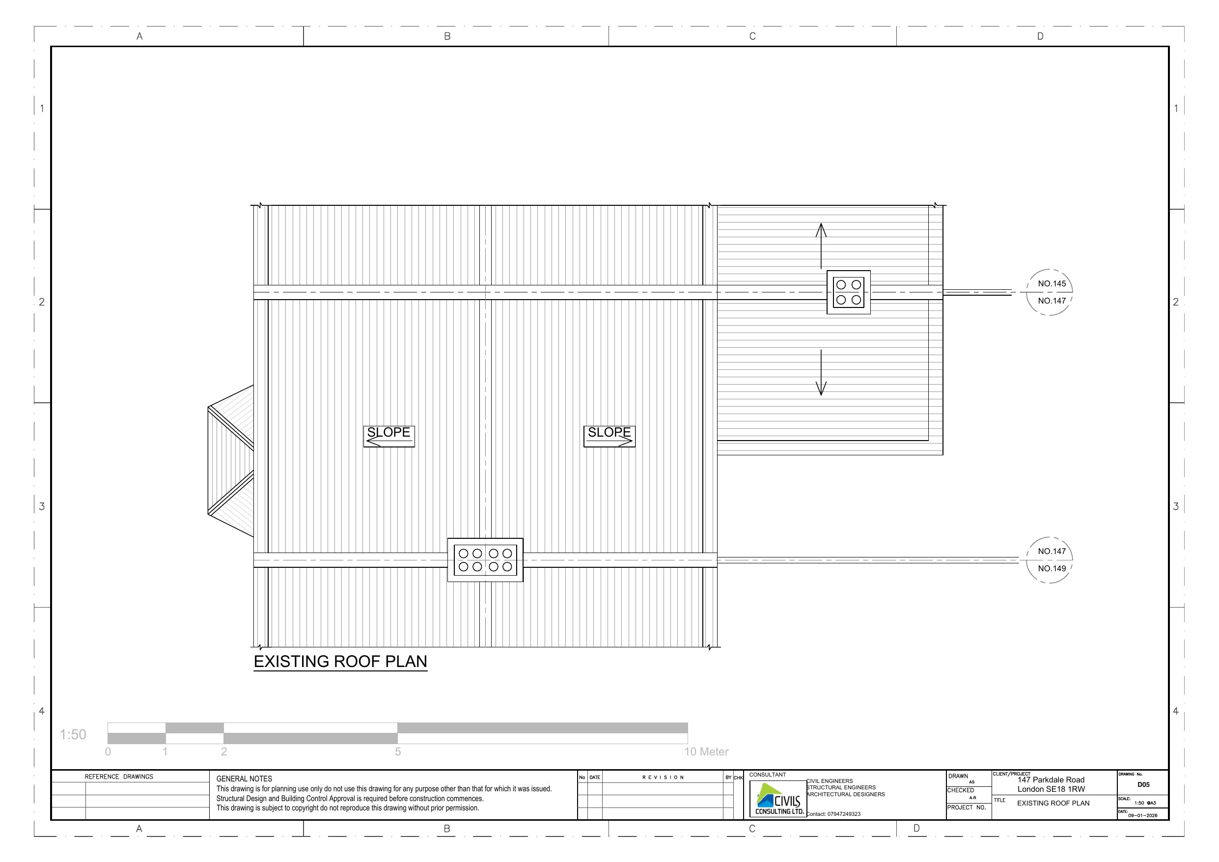
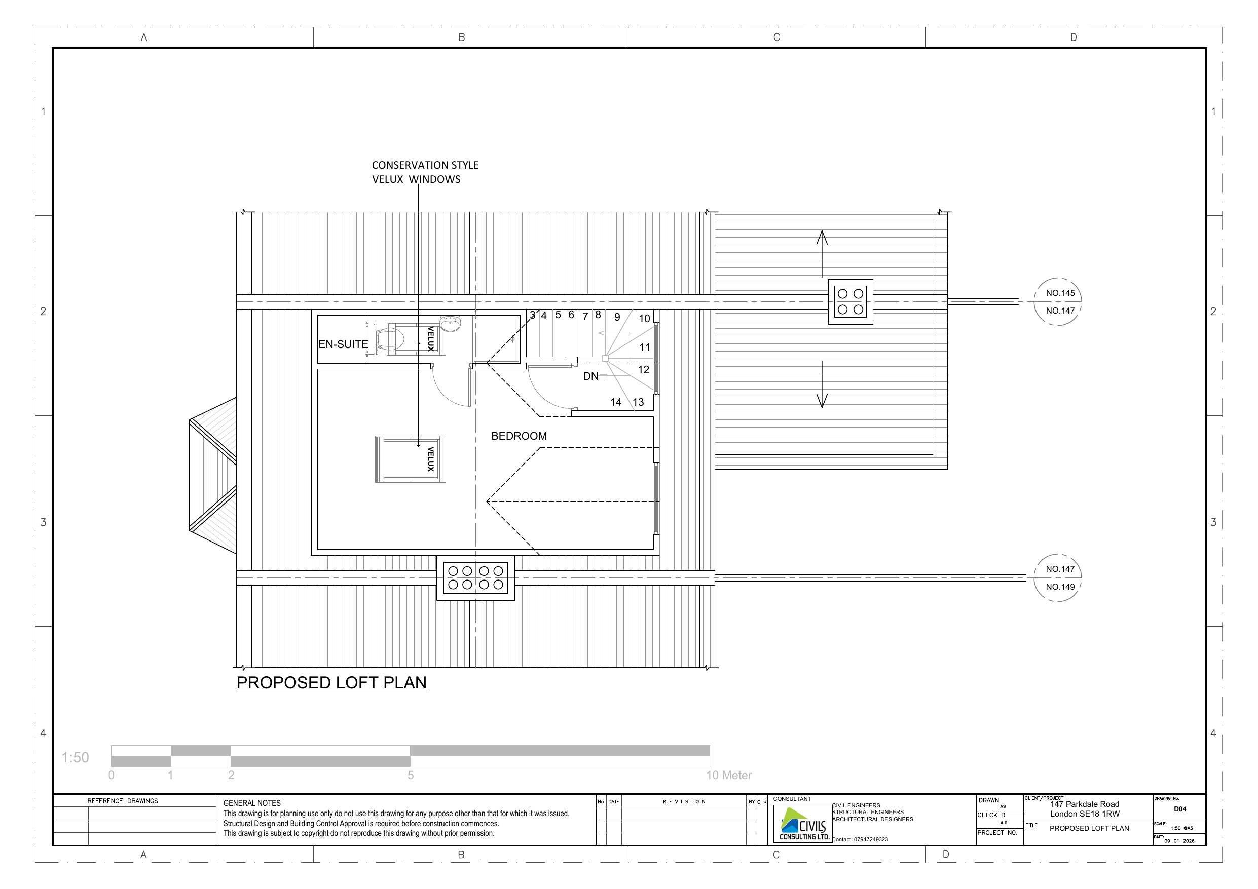
Construction of two traditional gabled rear dormer windows, installation of two rooflights to the front roof slope and all associated works.

Have your say

Your comment matters. Councils must consider every representation that raises material planning considerations.

Write a comment