← Greenwich

Status

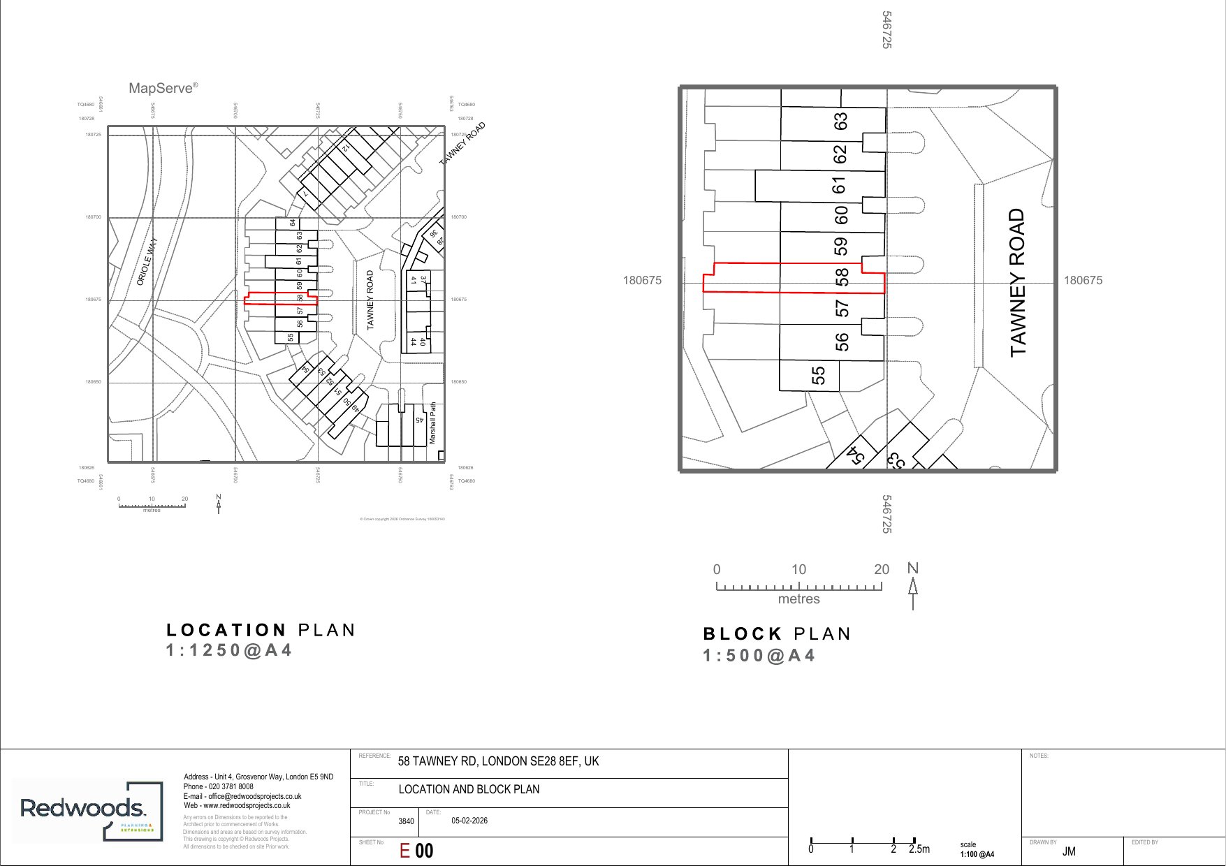
Registered House extension
Received
Last month
New homes
0

Full proposal

Prior Approval for the construction of a single storey rear extension which will extend beyond the rear wall of the original dwelling by 6.00m, for which the maximum height will be 2.79m and the height at the eaves will be 2.79m.

Documents

Correspondence
Archived · Original link
Application Form
Archived · Original link

Have your say

Your comment matters. Councils must consider every representation that raises material planning considerations.

Write a comment