← Greenwich

Status

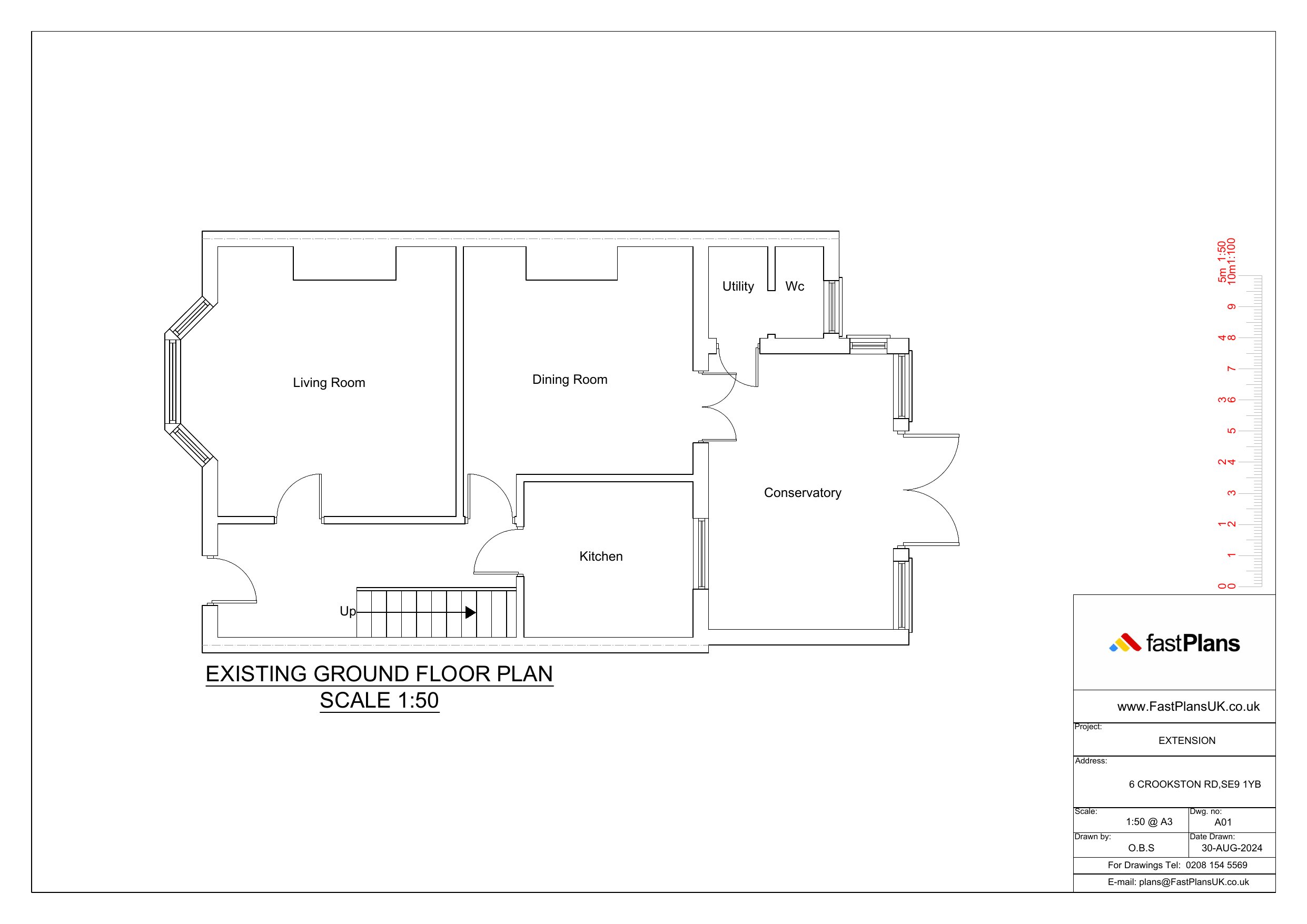
Registered House extension
Received
Last month
New homes
0

Full proposal

Construction of a single-storey ground floor rear extension and raising of the sill levels to the existing first-floor rear windows.

Documents

Correspondence
Archived · Original link
Application Form
Archived · Original link
Document
Archived · Original link
Document
Archived · Original link

Have your say

Your comment matters. Councils must consider every representation that raises material planning considerations.

Write a comment