26/0522/HD
Greenwich
Status
Registered
House extension
Received
Last month
New homes
0
Full proposal
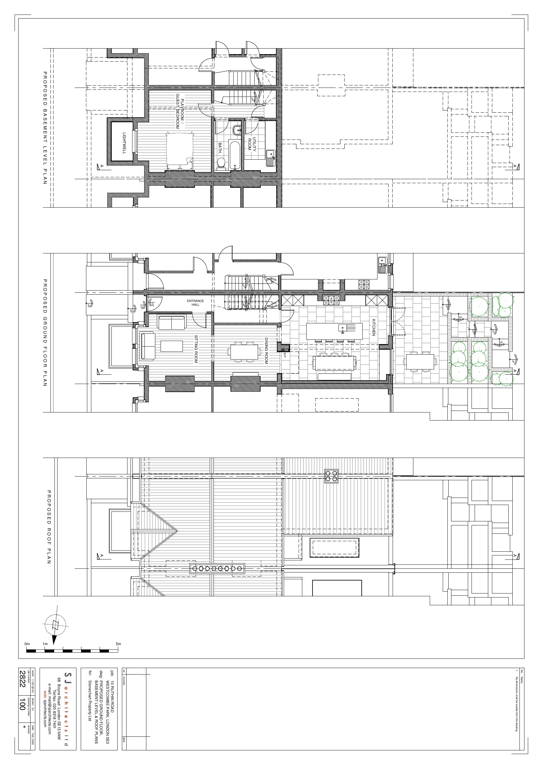
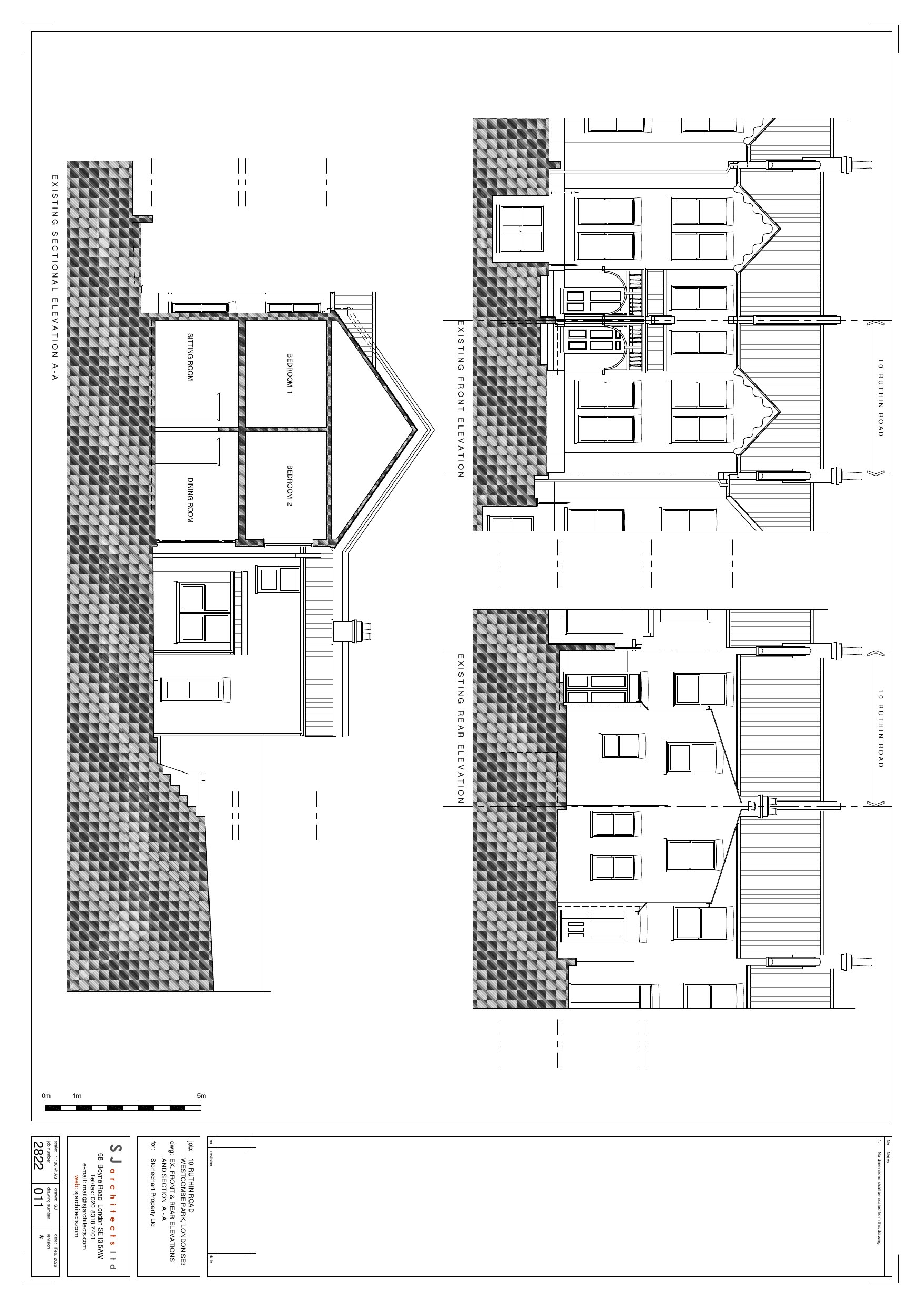
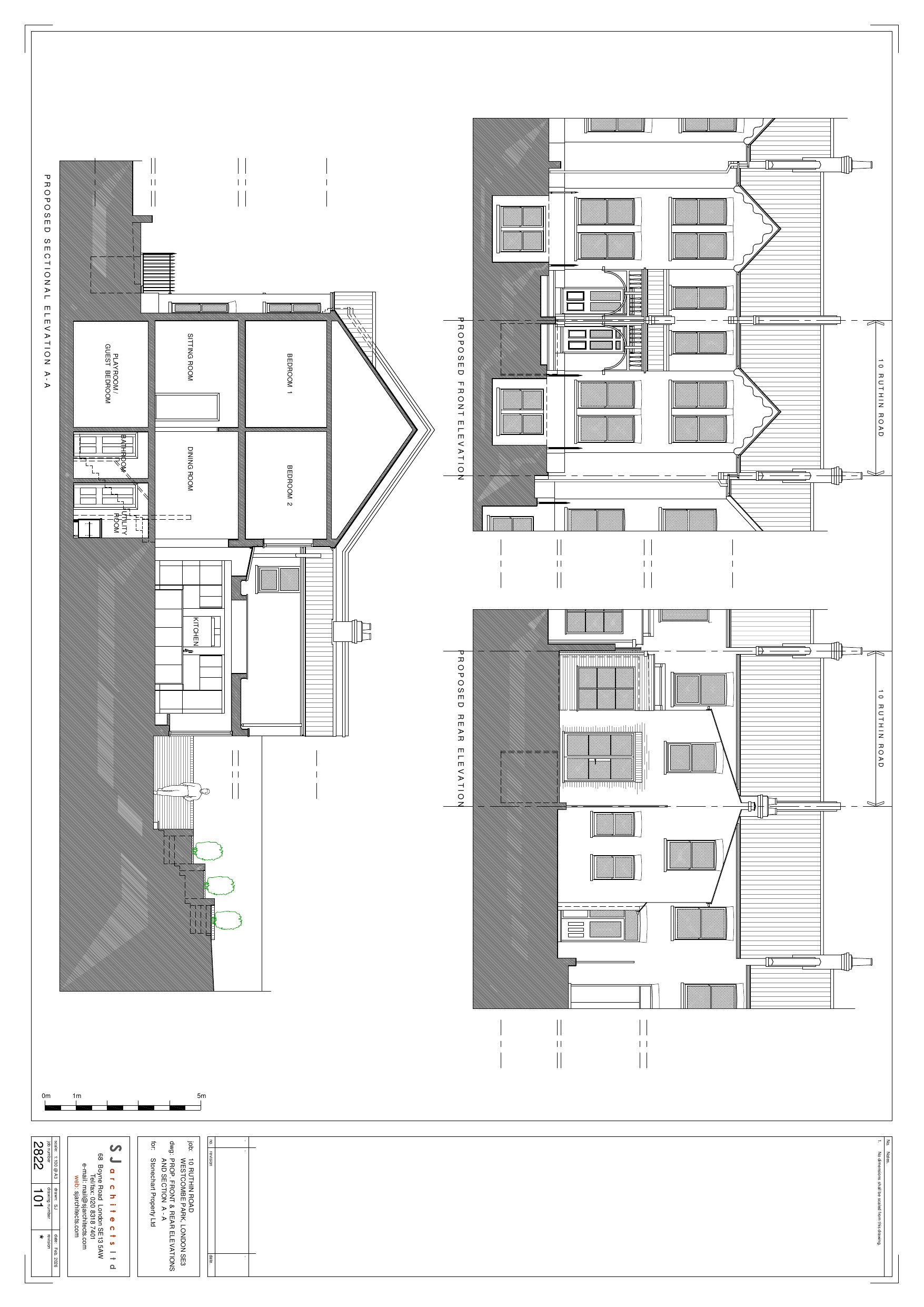
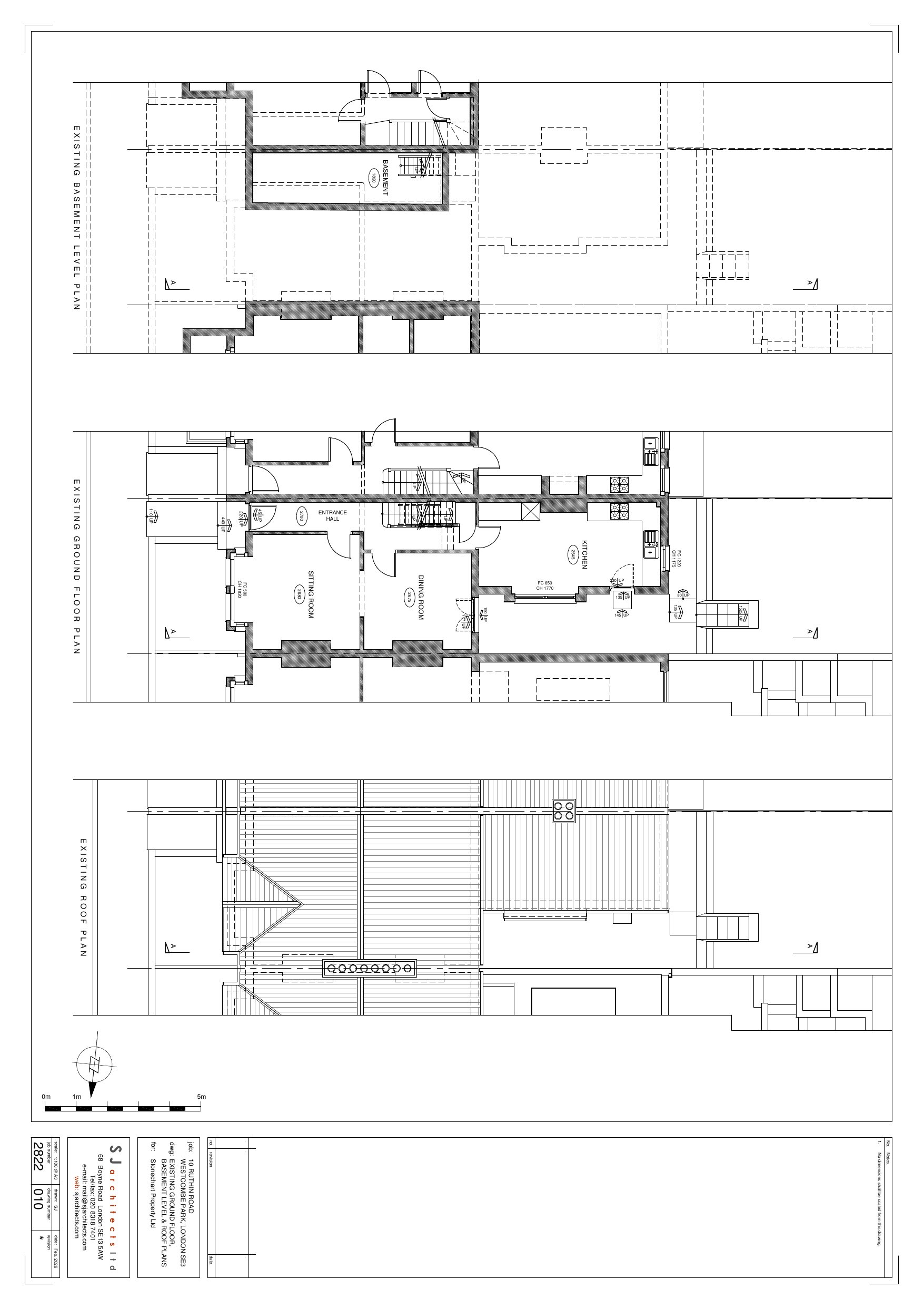
Construction of a basement and single-storey rear infill extension and installation of a front lightwell with associated works.
Documents
Have your say
Your comment matters. Councils must consider every representation that raises material planning considerations.