← Greenwich

Status

Registered House extension
Received
Last month
New homes
0

Full proposal

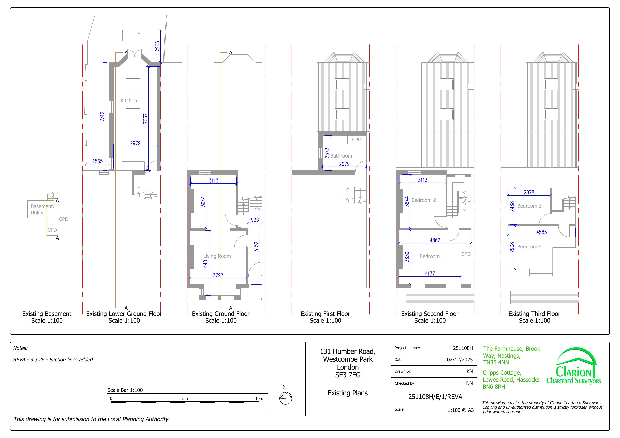
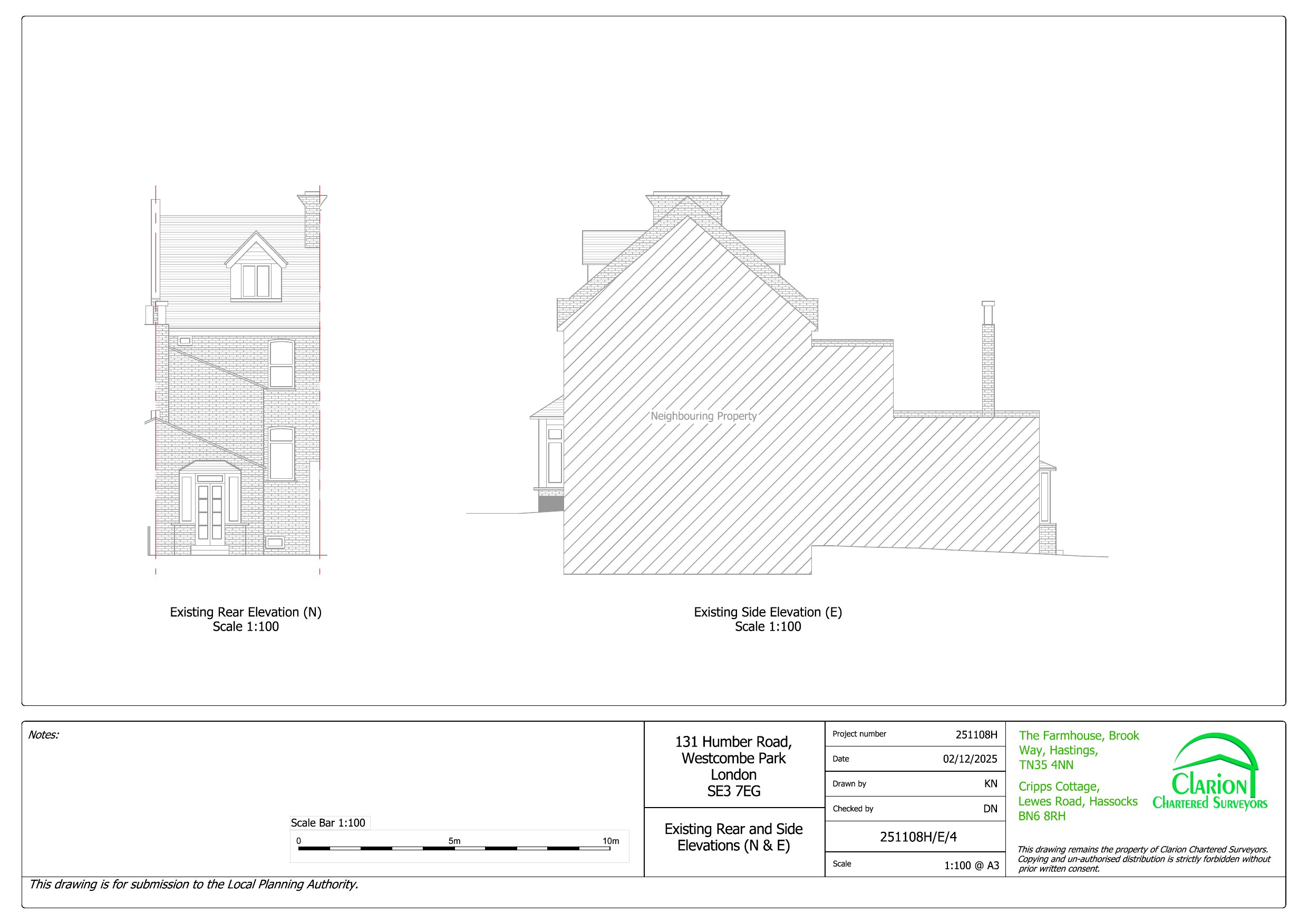
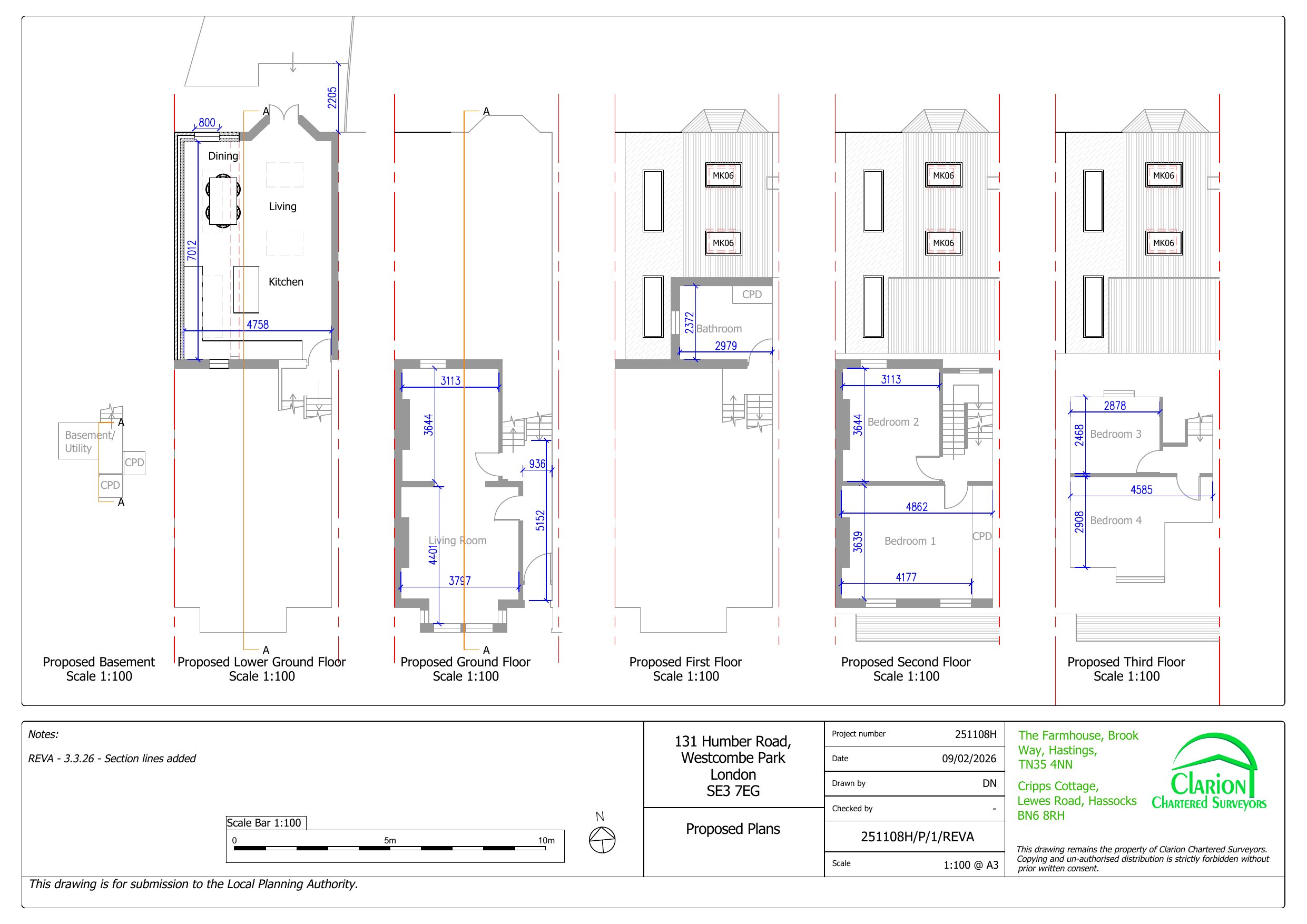
Construction of a single storey side infill extension with skylights.

Have your say

Your comment matters. Councils must consider every representation that raises material planning considerations.

Write a comment