← Guildford Borough Council

Status

Registered Commercial
Received
05 Dec 2024
New homes
0

Full proposal

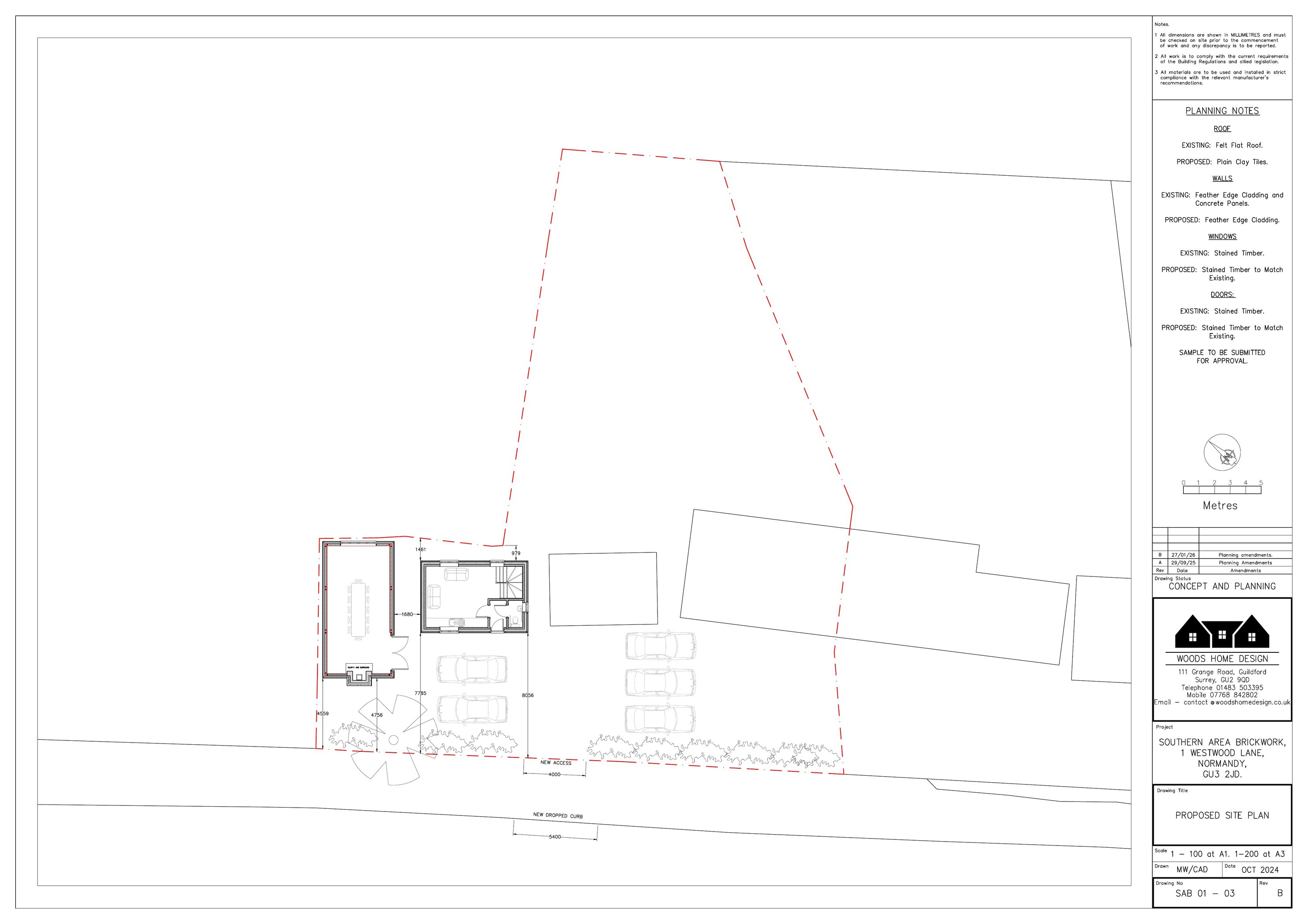
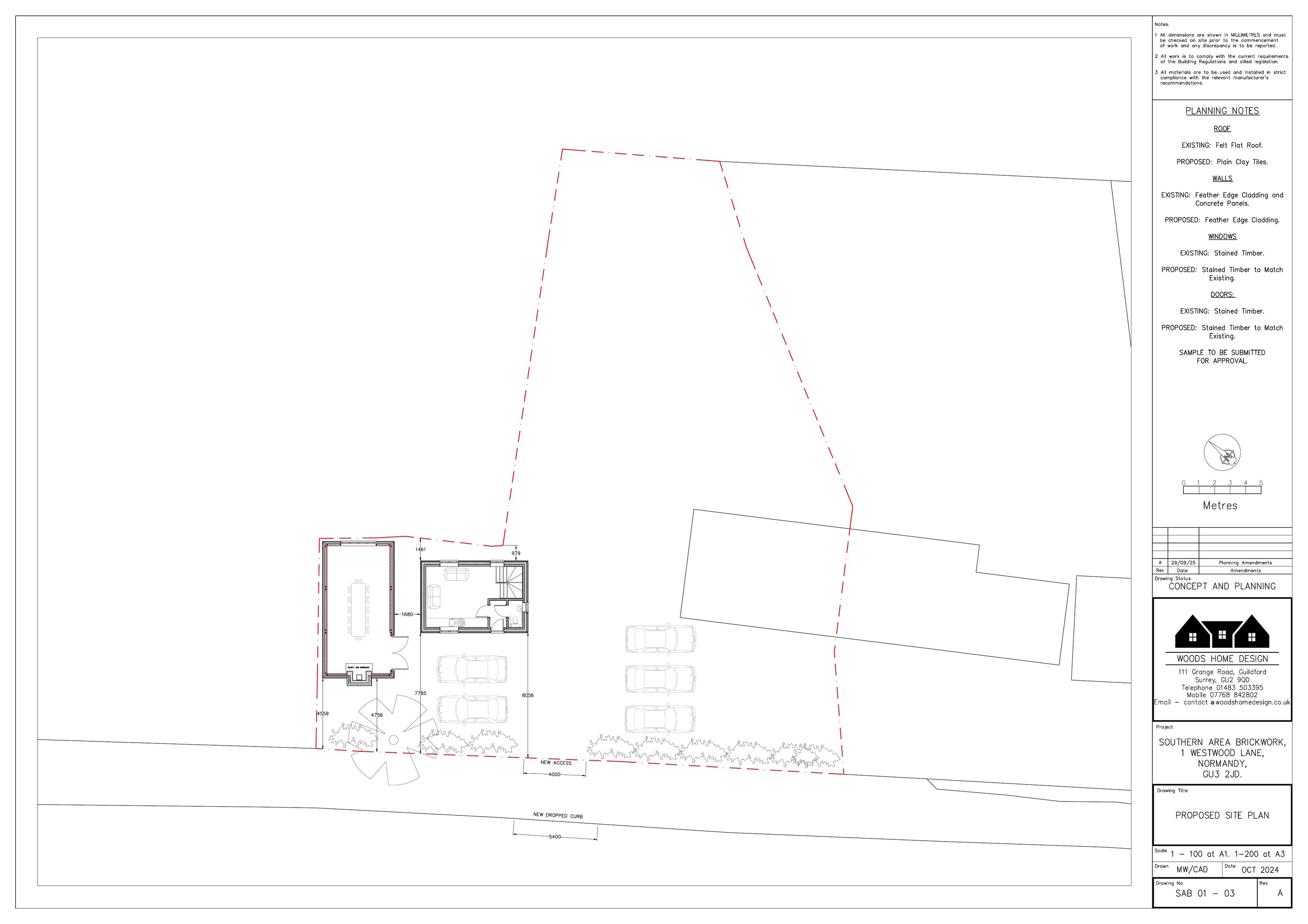
Demolition of existing single storey garden office and tool store/garage and construction of a linked two-storey office, meeting room and conference room; new access point and change current use class from Class C3 to Class E.

Documents

Amended application form
Application Form
Not yet archived · Original link
Amended bng baseline maps
Application Document
Not yet archived · Original link
Amended bng metric spreadsheet
Application Document
Not yet archived · Original link
Amended design & access statement
Application Document
Not yet archived · Original link
Superseded application form
Application Form
Not yet archived · Original link
Superseded application form
Application Form
Not yet archived · Original link
Superseded bng baseline maps
Application Document
Not yet archived · Original link
Superseded bng metric
Application Document
Not yet archived · Original link
Superseded design & access statement
Application Document
Not yet archived · Original link
Superseded location plan
Drawing
Not yet archived · Original link
Superseded location plan
Drawing
Not yet archived · Original link
Superseded location plan
Drawing
Not yet archived · Original link
Superseded plans & elevations
Drawing
Not yet archived · Original link
Superseded plans & elevations
Drawing
Not yet archived · Original link
Drawing
Archived · Original link
Surrey highways - comment
Correspondence
Not yet archived · Original link

Have your say

Your comment matters. Councils must consider every representation that raises material planning considerations.

Write a comment