← Back to Guildford Borough Council

Status

Awaiting decision New housing
Received 29 Jan 2025
New dwellings 8

What you can do

Take Action

Make your voice heard. Authorities need to hear from people who support new homes.

Summary

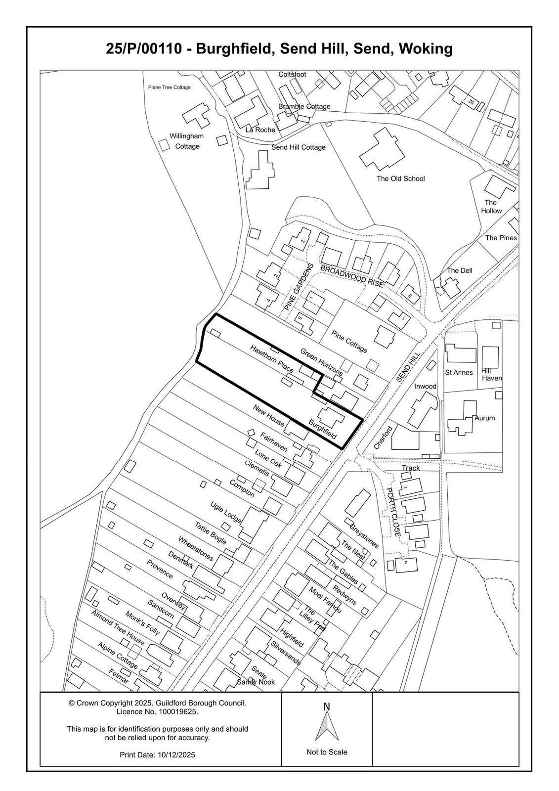
Erection of eight three- and four-bedroom family dwellings with landscaping and new access.

Full Proposal

Erection of 8 new three and four bedroom family dwellings with associated hard and soft landscaping and formation of new access to Send Hill, following demolition of Burghfield and assorted garden out buildings.

Detail pages

Documents

Affinity water - comment
Correspondence
Not downloaded · Council link
Amended plot 01 proposed elevations & floor plans
Drawing
Not downloaded · Council link
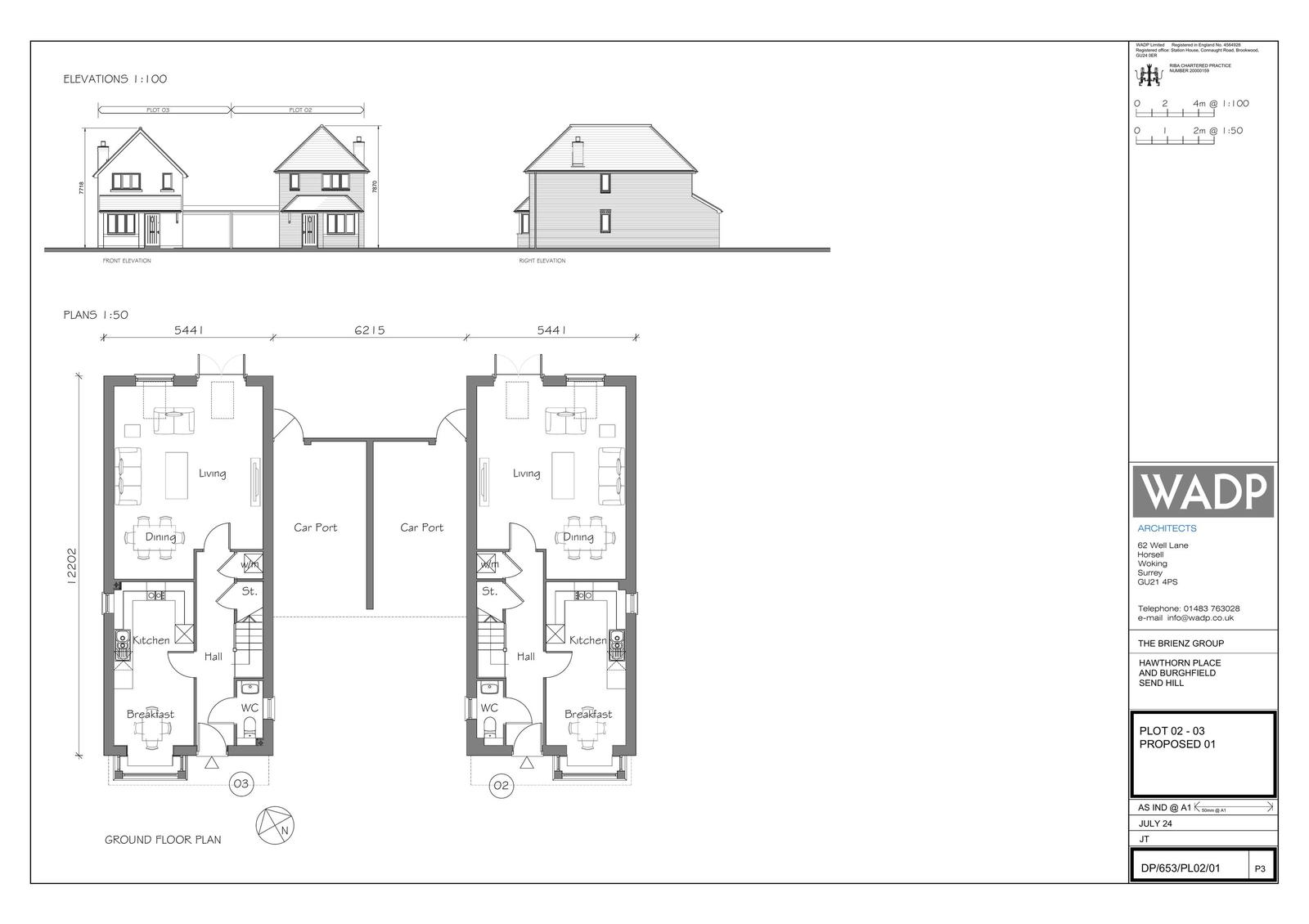
Amended plots 02-03 proposedfront & right elevations & ground floor plan
Drawing
Not downloaded · Council link
Amended plots 04-05 proposed front & right elevations & ground floor plan
Drawing
Not downloaded · Council link
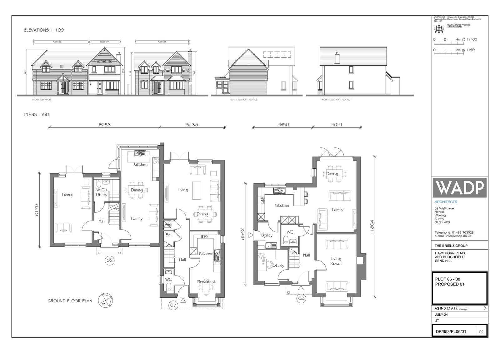
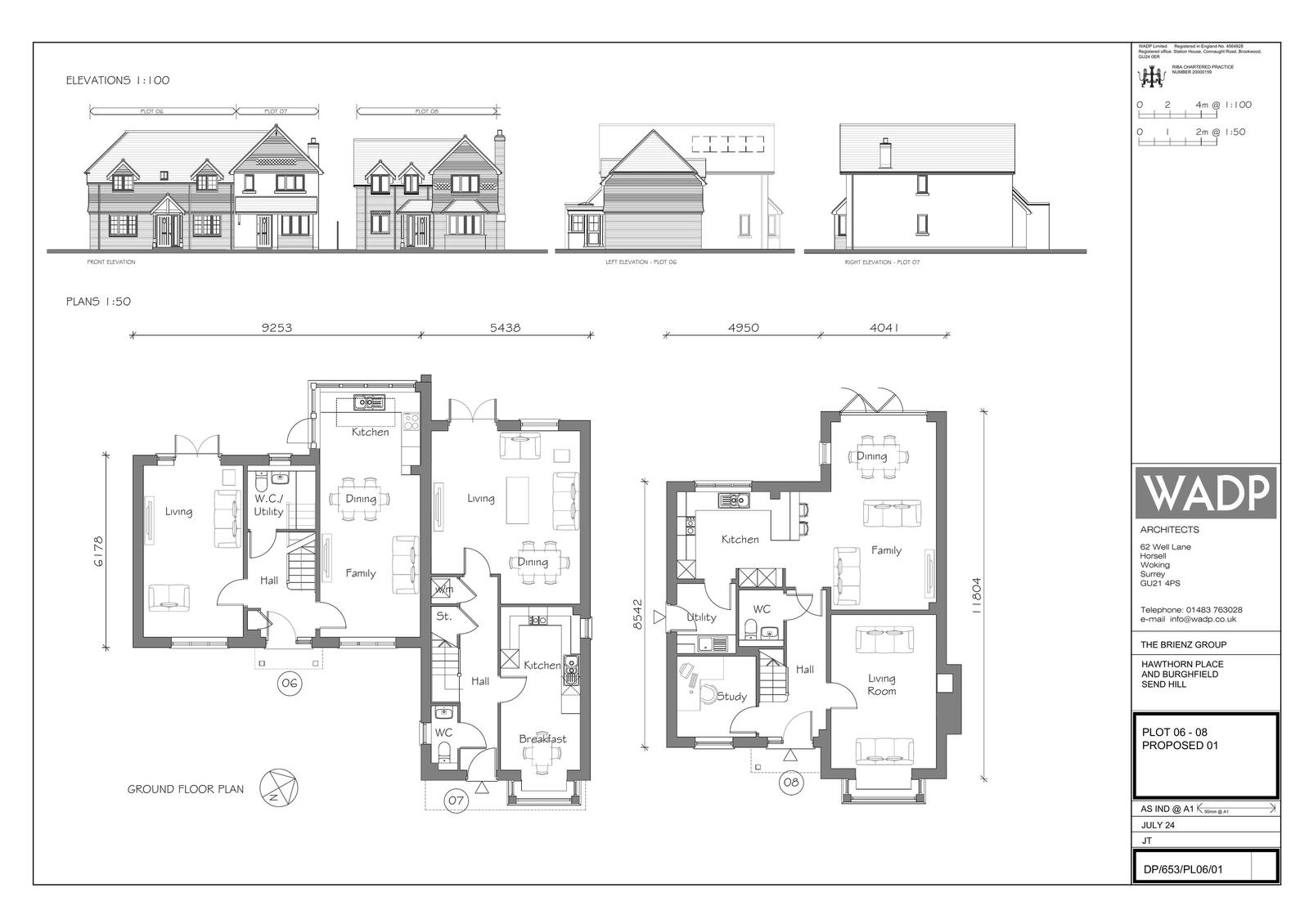
Amended plots 06-08 proposed elevations & ground floor plan
Drawing
Not downloaded · Council link
Amended proposed site plan
Drawing
Archived copy · Council link
Application form redacted
Application Form
Not downloaded · Council link
Arboricultural impact assessment & method statement
Application Document
Not downloaded · Council link
Biodiversity net gain technical note
Application Document
Not downloaded · Council link
Climate change & sustainable development questionnaire
Application Document
Not downloaded · Council link
Cllr oven redacted
Correspondence
Not downloaded · Council link
Committee report
Report
Not downloaded · Council link
Design & access statement
Application Document
Not downloaded · Council link
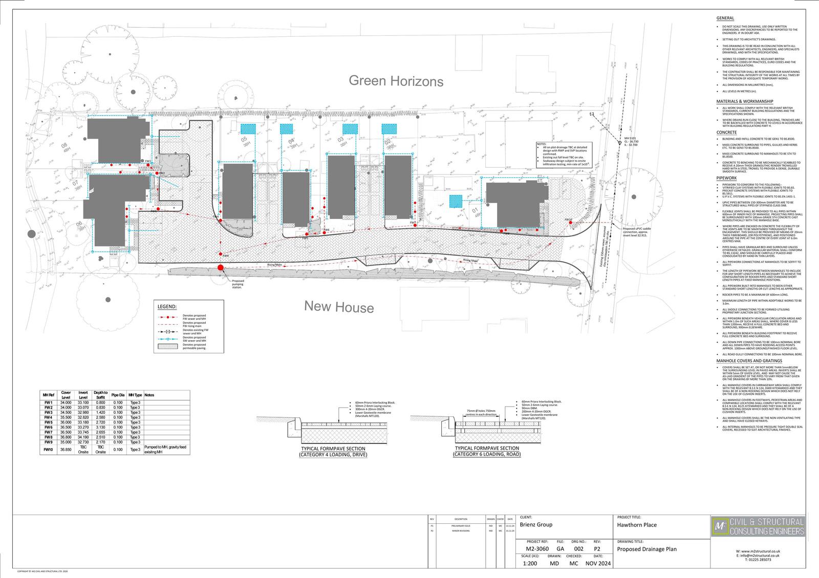
Drainage strategy report
Application Document
Not downloaded · Council link
Drawing dp653 00 01 p3
Application Document
Not downloaded · Council link
Drawing no. 656925-110 rev a
Application Document
Not downloaded · Council link
Ecological report
Application Document
Not downloaded · Council link
Existing & proposed block plan & location plans
Drawing
Not downloaded · Council link
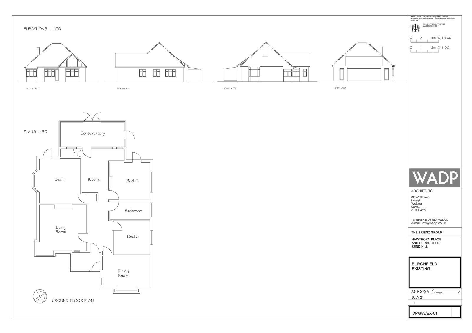
Existing elevations & ground floor plan
Drawing
Not downloaded · Council link
Ian tulloch objects
Correspondence
Not downloaded · Council link
Janet williams objects
Correspondence
Not downloaded · Council link
Kathleen snell objects
Correspondence
Not downloaded · Council link
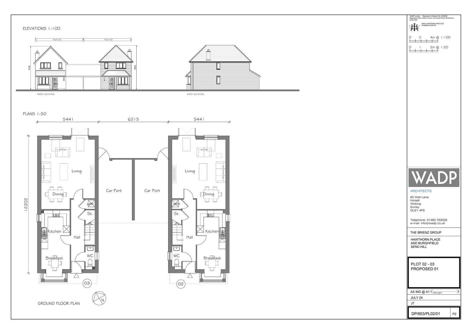
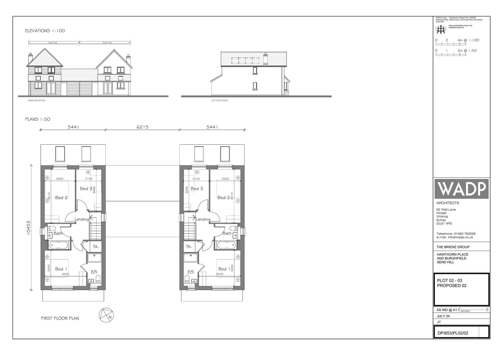
Plot 02- 03 proposed 02
Application Document
Not downloaded · Council link
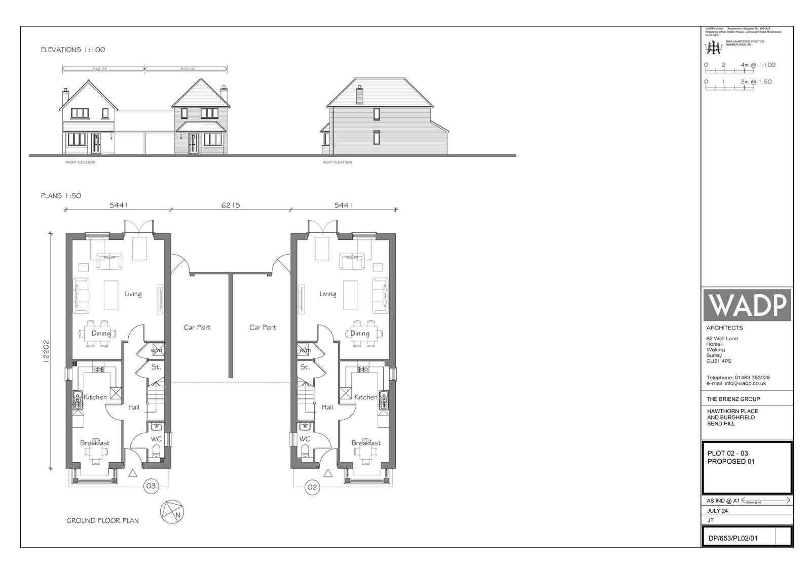
Plot 02--3 proposed 01
Application Document
Not downloaded · Council link
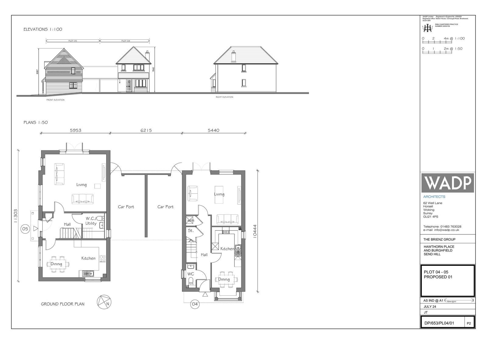
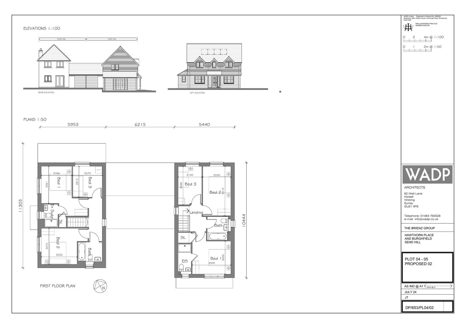
Plot 04- 05 proposed 01
Application Document
Not downloaded · Council link
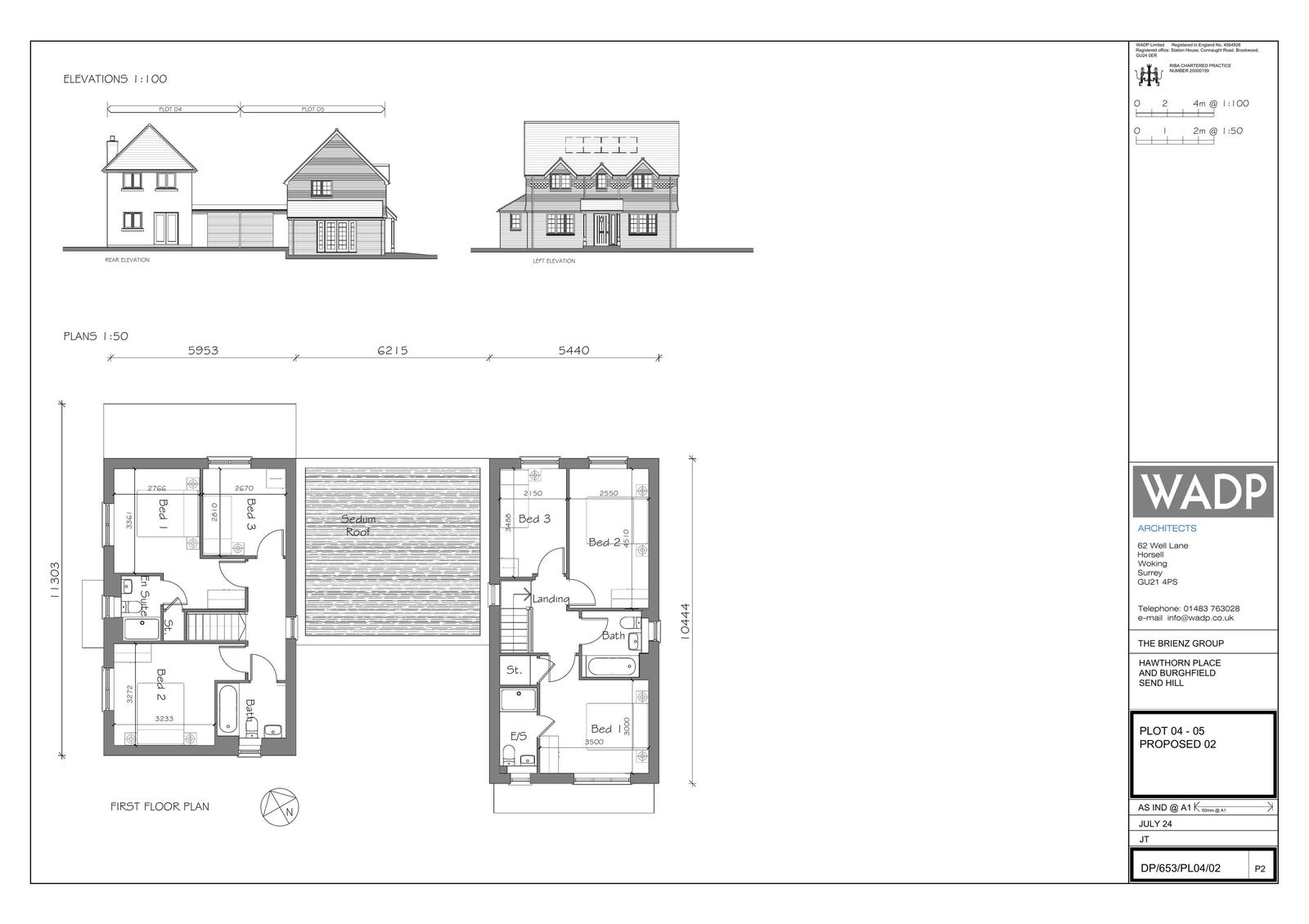
Plot 04- 05 proposed 02
Application Document
Not downloaded · Council link
Proposed drainage plan
Drawing
Not downloaded · Council link
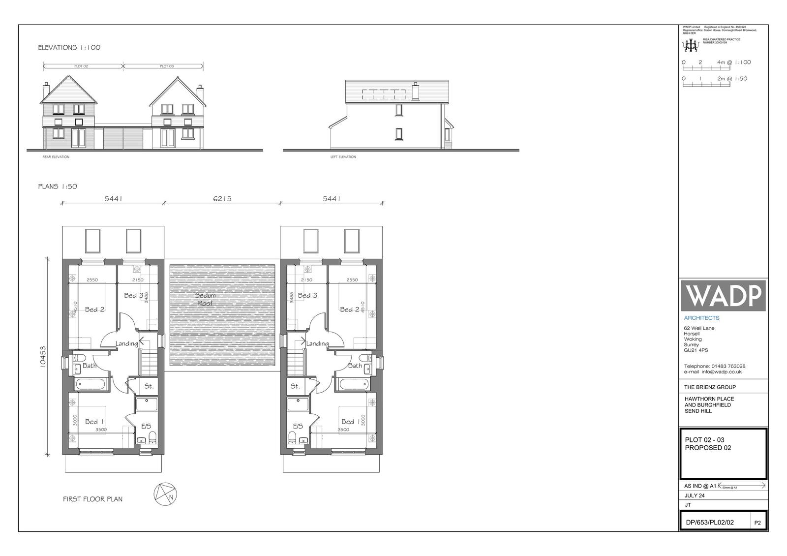
Proposed plots 02-03 rear & left elevations & first floor plan
Drawing
Not downloaded · Council link
Proposed plots 04-05 rear & left elevations & first floor plan
Drawing
Not downloaded · Council link
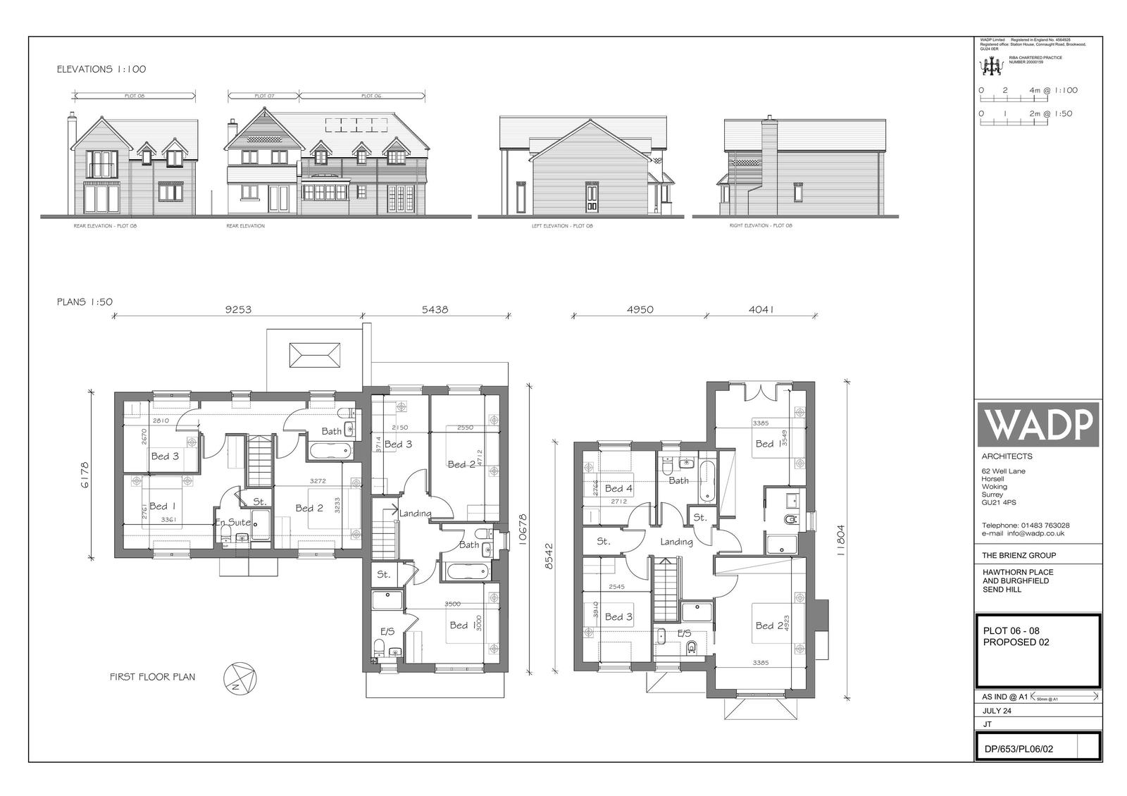
Proposed plots 06-08 elevations & first floor plan
Drawing
Not downloaded · Council link
Proposed site plan
Application Document
Archived copy · Council link
Proposed site plan
Drawing
Archived copy · Council link
Proposed site plan materials
Application Document
Archived copy · Council link
Proposed street scene
Drawing
Not downloaded · Council link
Pump drainage specification
Drawing
Not downloaded · Council link
Recyling officer comments
Correspondence
Not downloaded · Council link
Send parish council objects
Correspondence
Not downloaded · Council link
Site plan proposed dp/653/00-01 rev p5
Application Document
Archived copy · Council link
Statutory biodiversity metric datasheet
Application Document
Not downloaded · Council link
Superseded plot 01 proposed elevations & floor plans
Drawing
Not downloaded · Council link
Superseded plots 02-03 proposedfront & right elevations & ground floor plan
Drawing
Not downloaded · Council link
Superseded plots 04-05 proposed front & right elevations & ground floor plan
Drawing
Not downloaded · Council link
Superseded plots 06-08 proposed elevations & ground floor plan
Drawing
Not downloaded · Council link
Superseded proposed site plan
Drawing
Archived copy · Council link
Surrey county highway authority
Consultee Comment
Not downloaded · Council link
Surrey wildlife trust - comment
Correspondence
Not downloaded · Council link
Surrey wildlife trust - comment
Correspondence
Not downloaded · Council link
Technical housing standards datasheet
Application Document
Not downloaded · Council link
Thames water comments
Consultee Comment
Not downloaded · Council link
Topographical survey
Drawing
Not downloaded · Council link
Tree protection plan
Drawing
Not downloaded · Council link
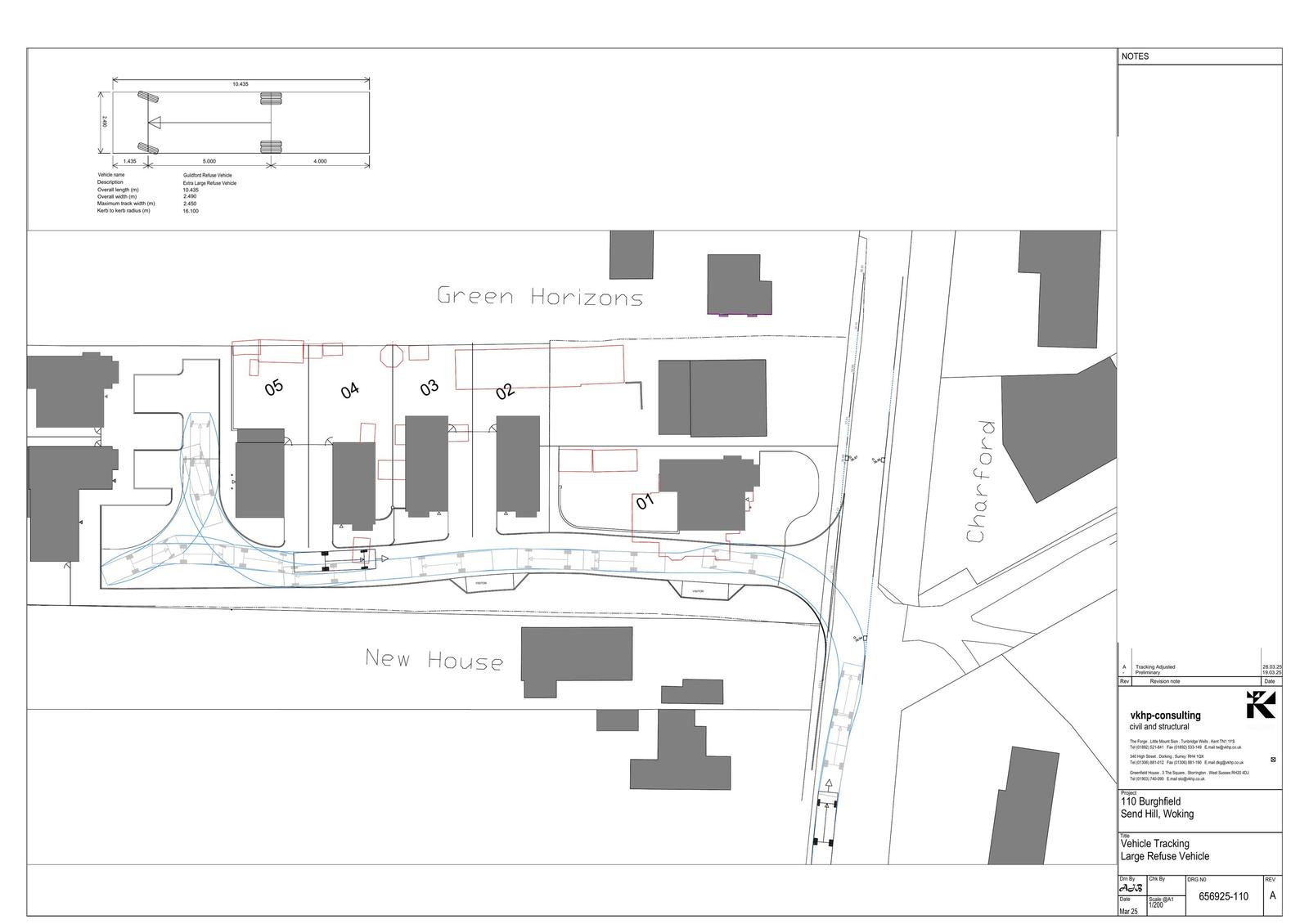
Vehicle tracking large refuse vehicle
Drawing
Not downloaded · Council link