← Guildford Borough Council

Status

Registered House extension
Received
15 Dec 2025
New homes
0

Full proposal

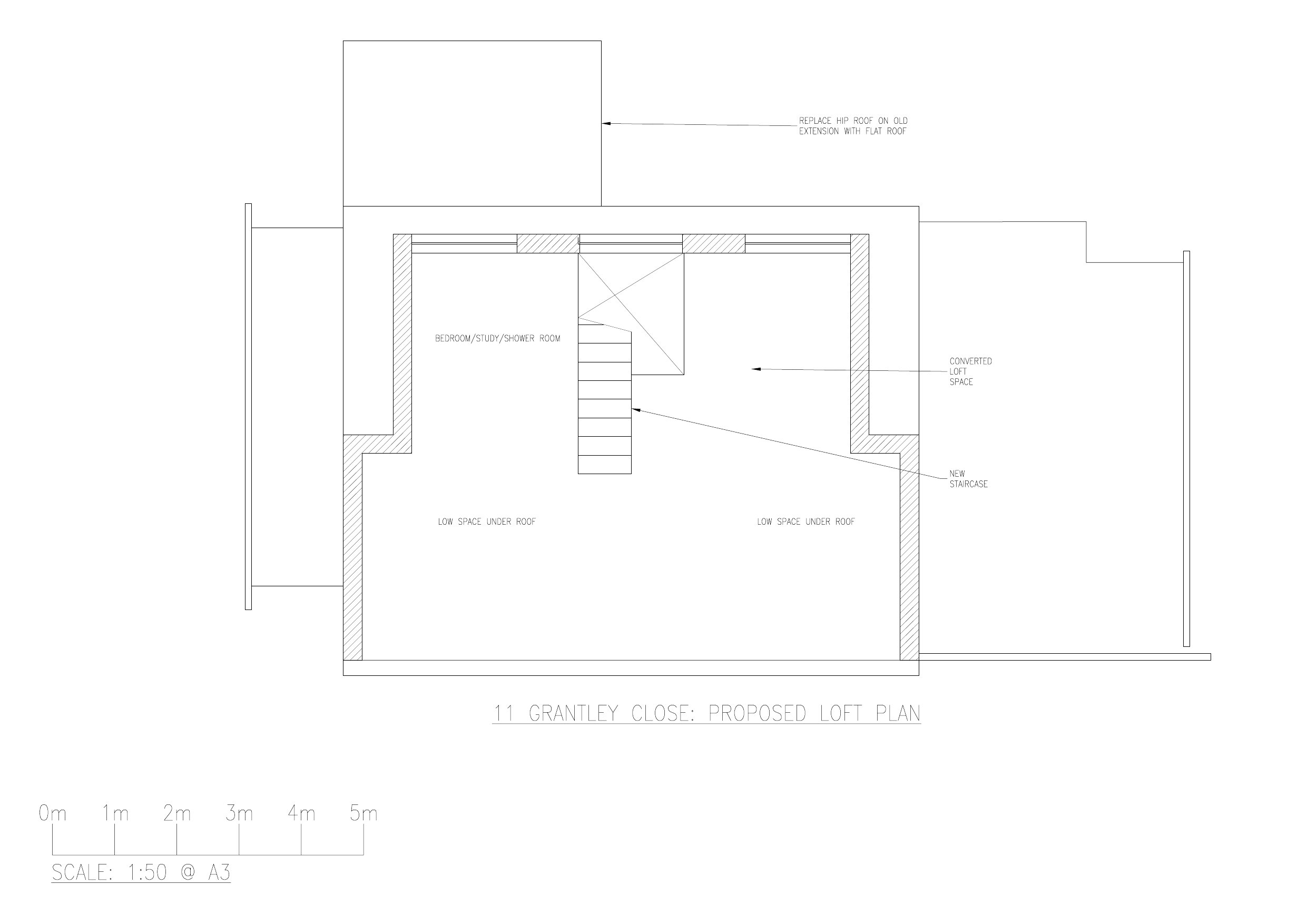
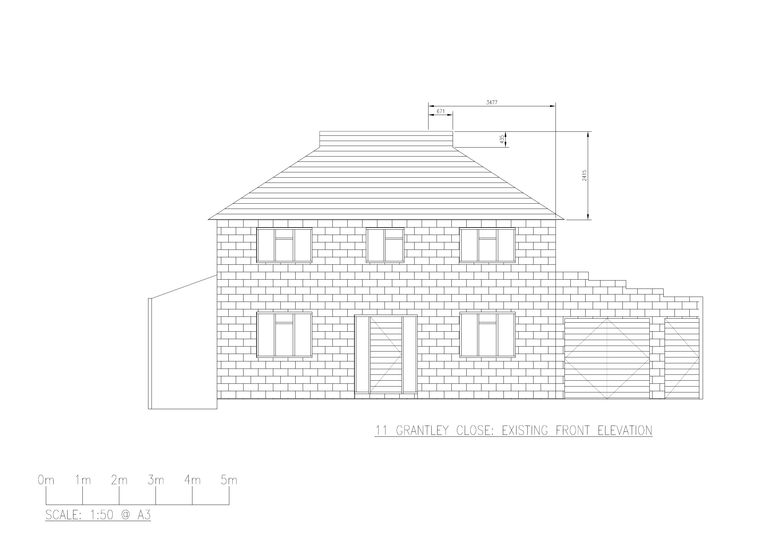
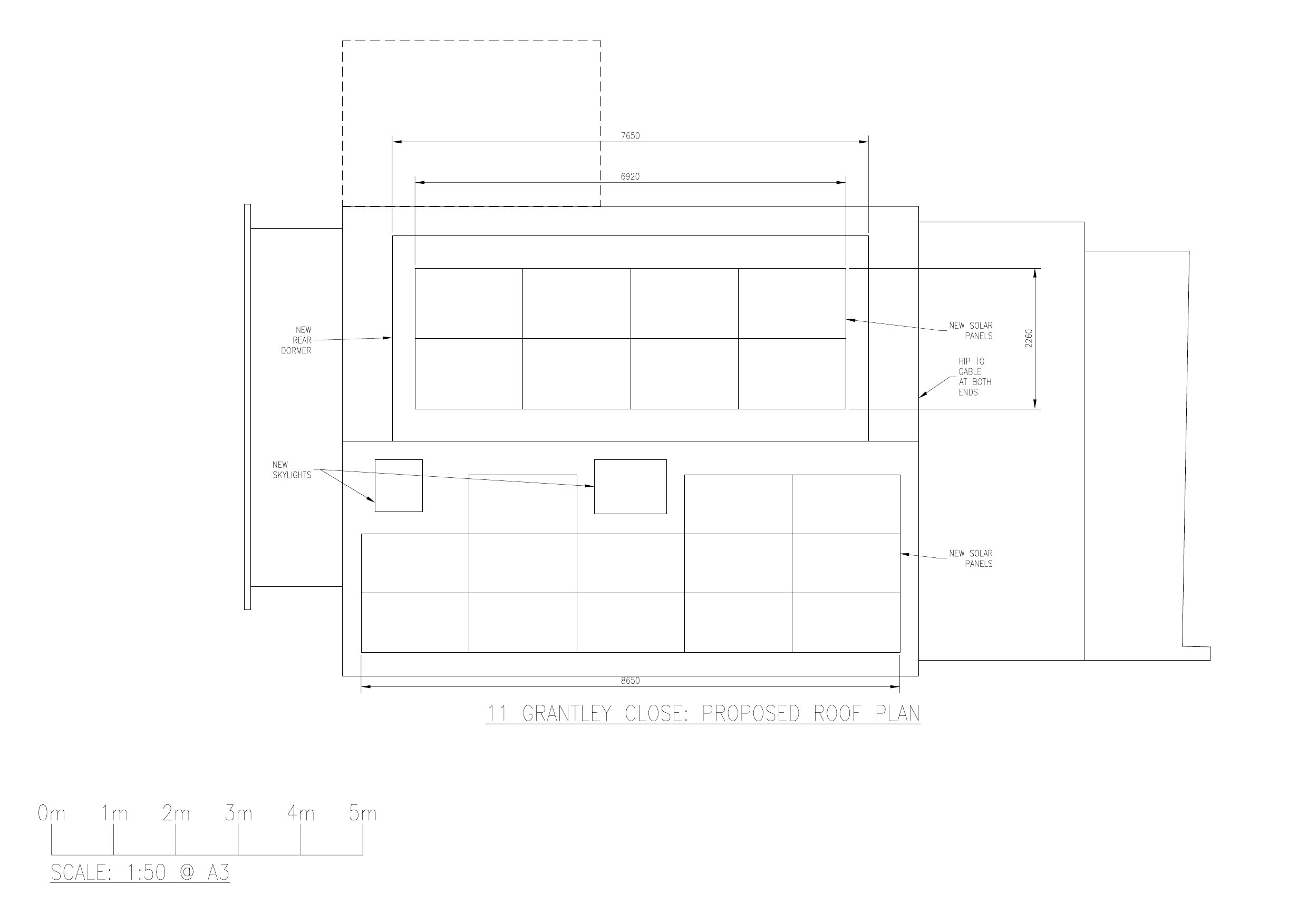
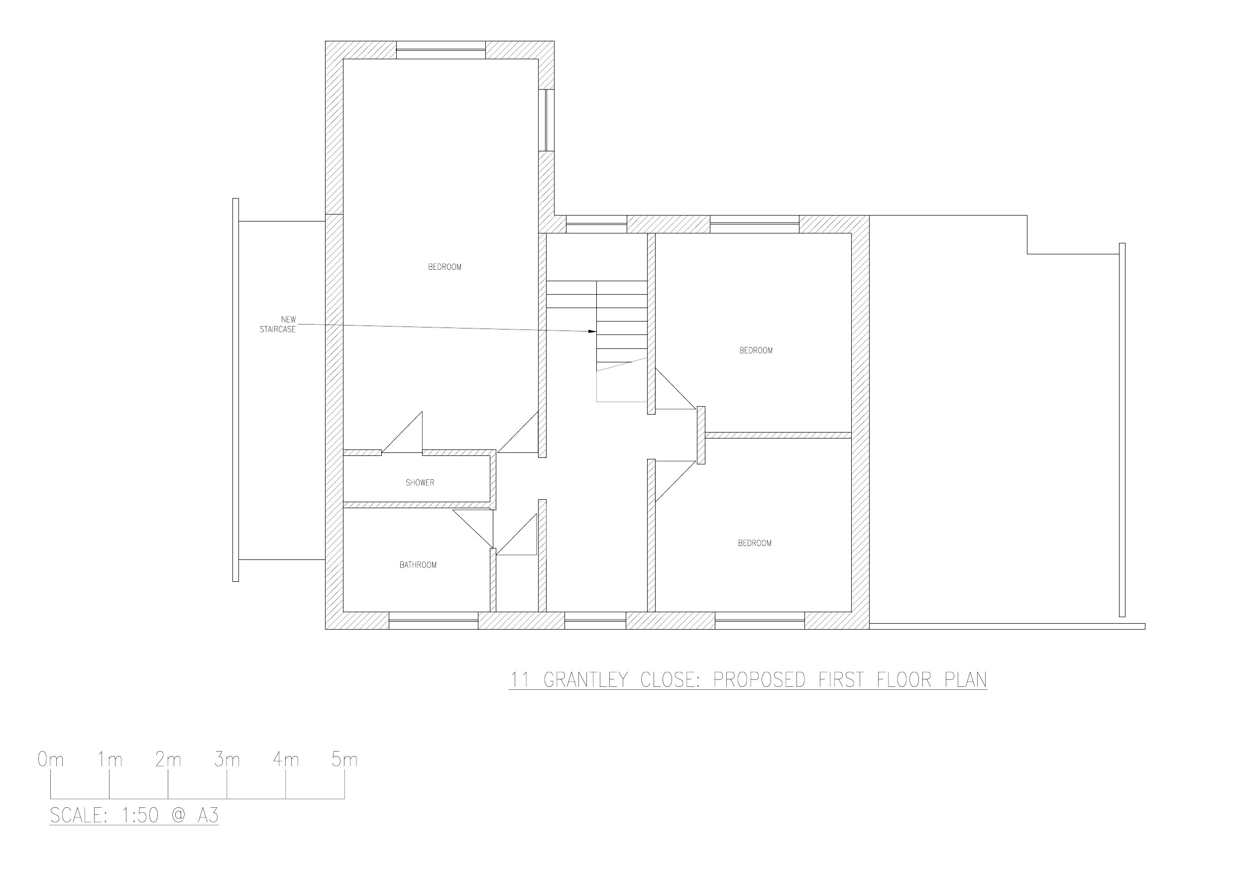
Conversion of roof to create rear dormer with Installation of solar panels on front sloping roof (Retrospective).

Have your say

Your comment matters. Councils must consider every representation that raises material planning considerations.

Write a comment