← Guildford Borough Council

Status

Registered Commercial
Received
16 Dec 2025
New homes
0

Full proposal

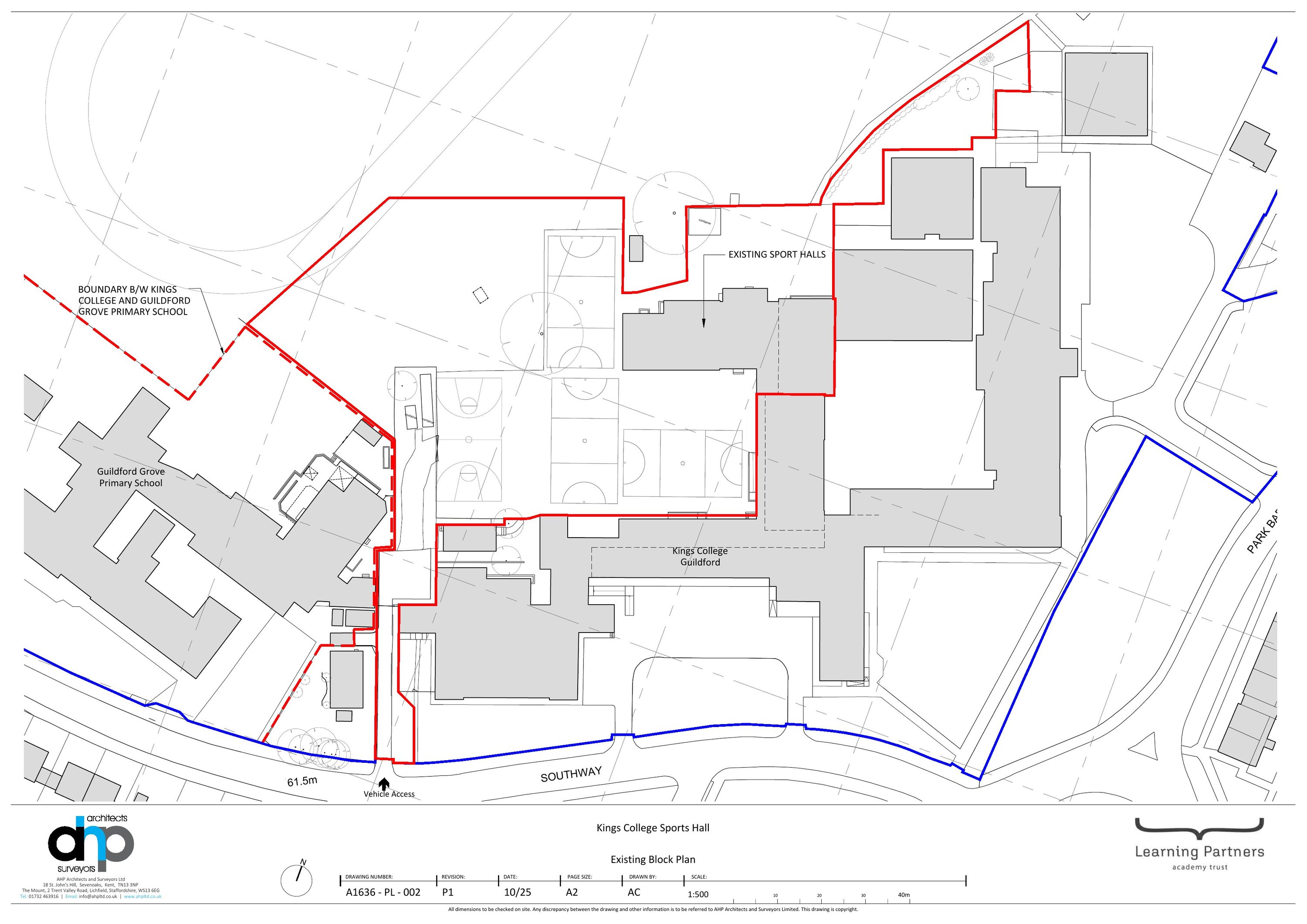
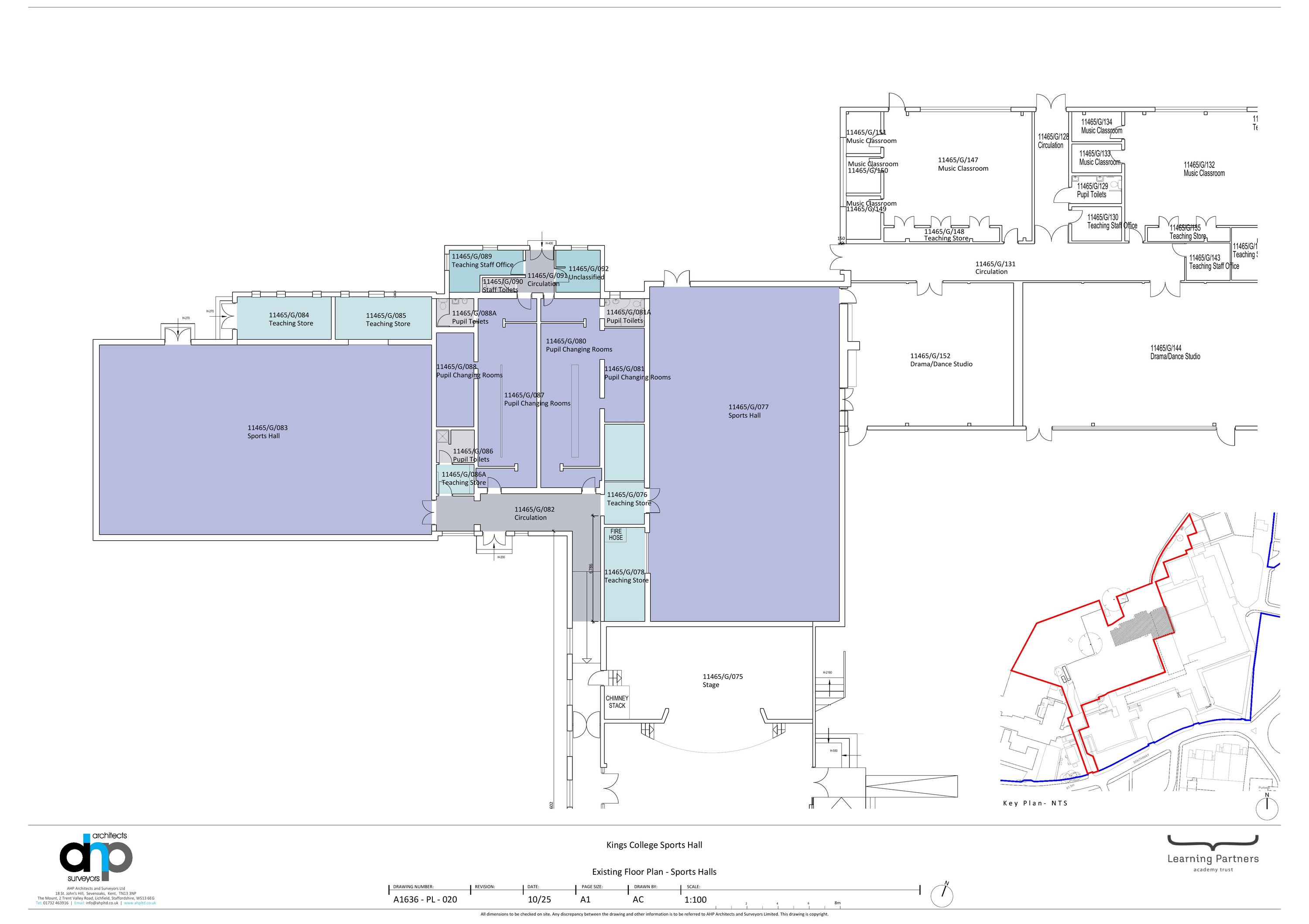
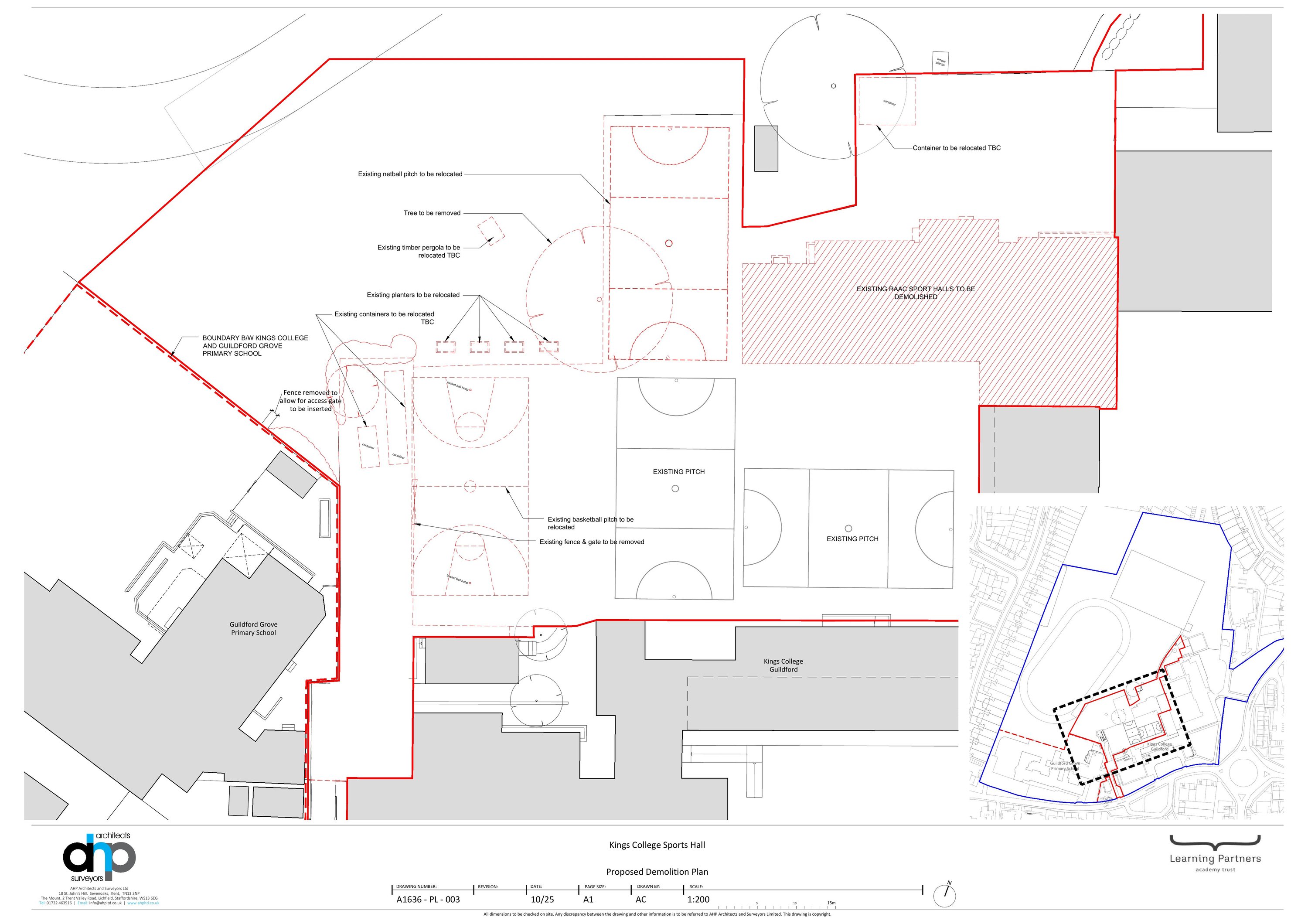
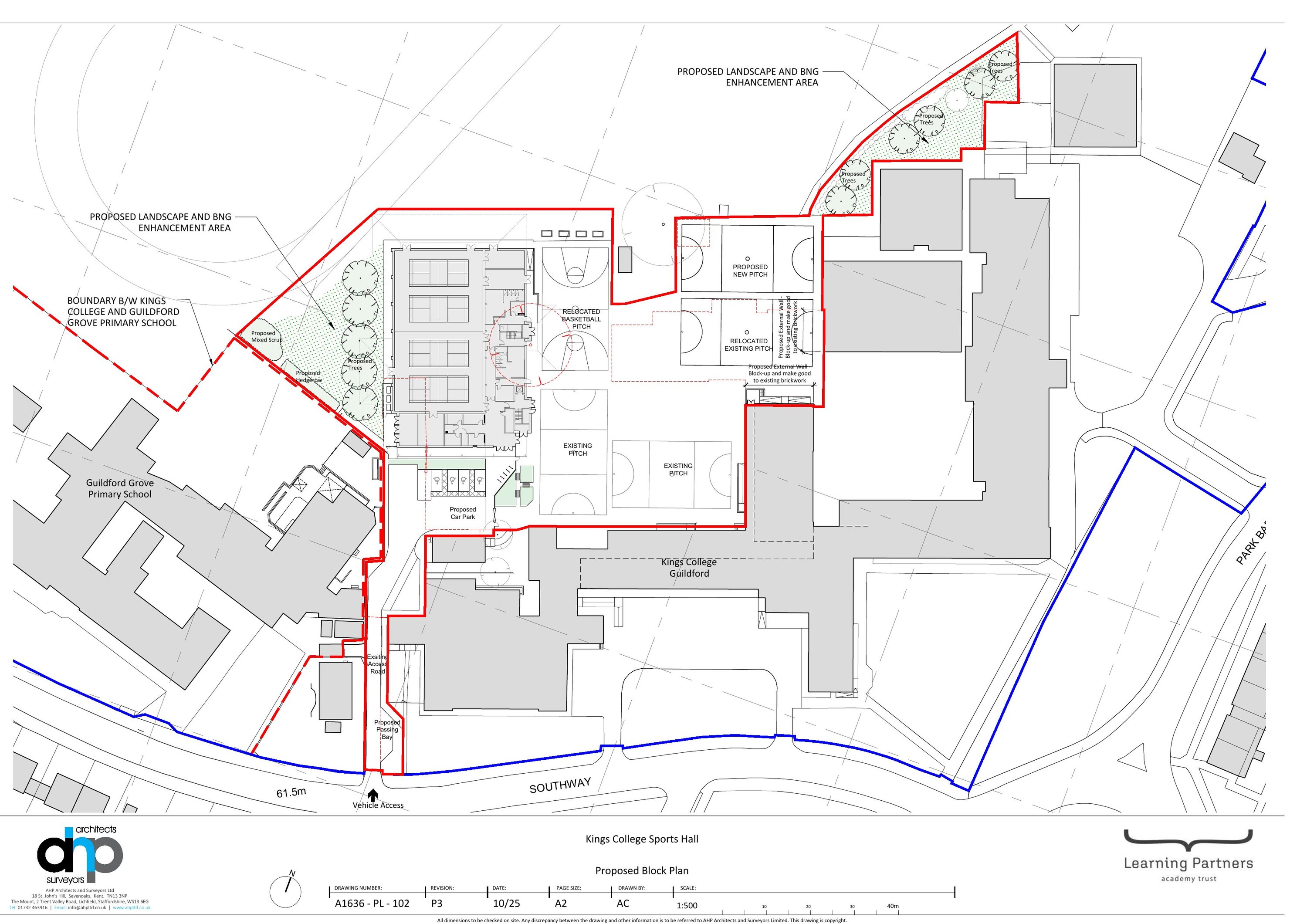
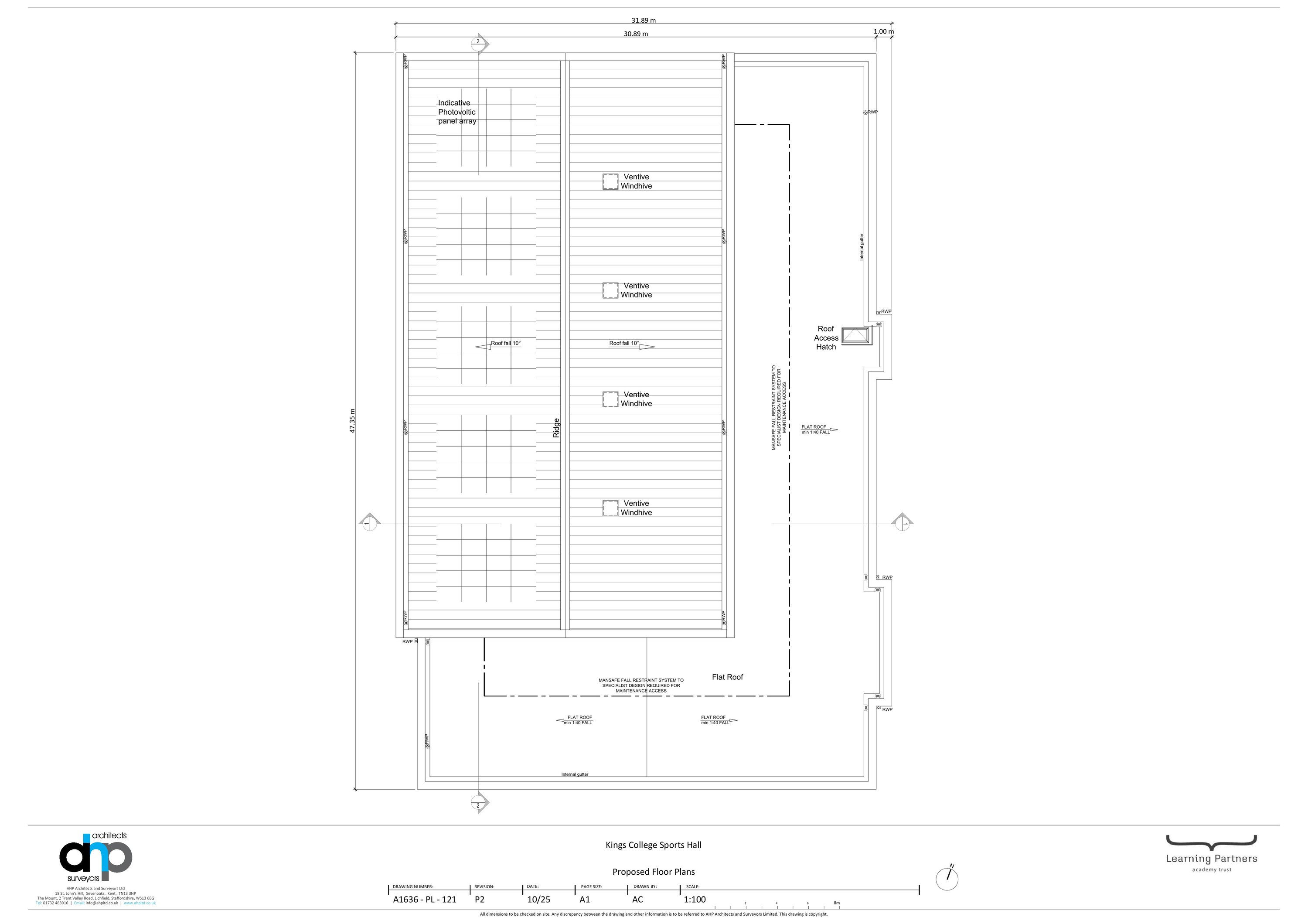
Construction of a two storey sports hall and associated facilities together with landscaping following demolition of existing redundant sports halls and ancillary areas.

Have your say

Your comment matters. Councils must consider every representation that raises material planning considerations.

Write a comment