← Guildford Borough Council

Status

Registered House extension
Received
24 Dec 2025
New homes
0

Full proposal

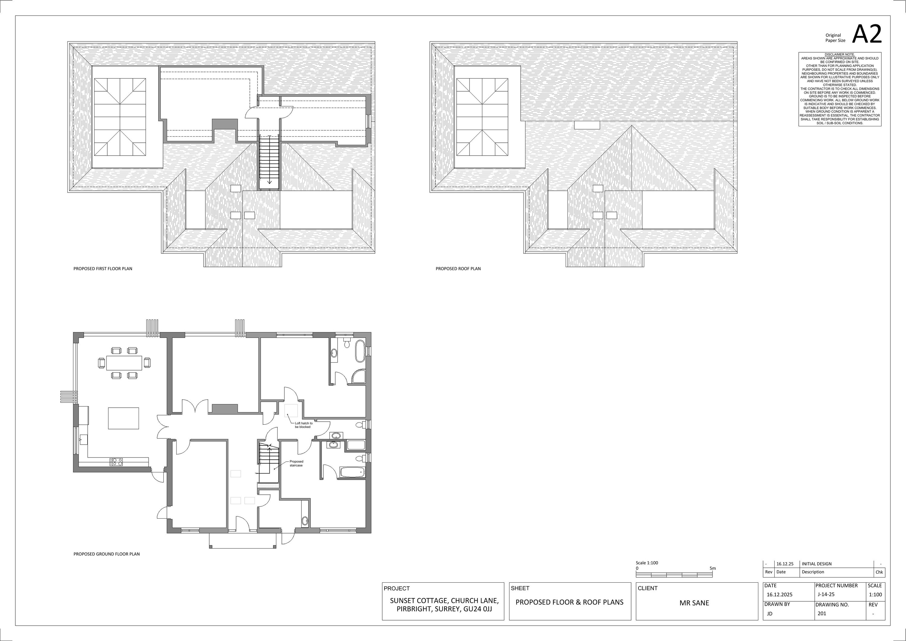
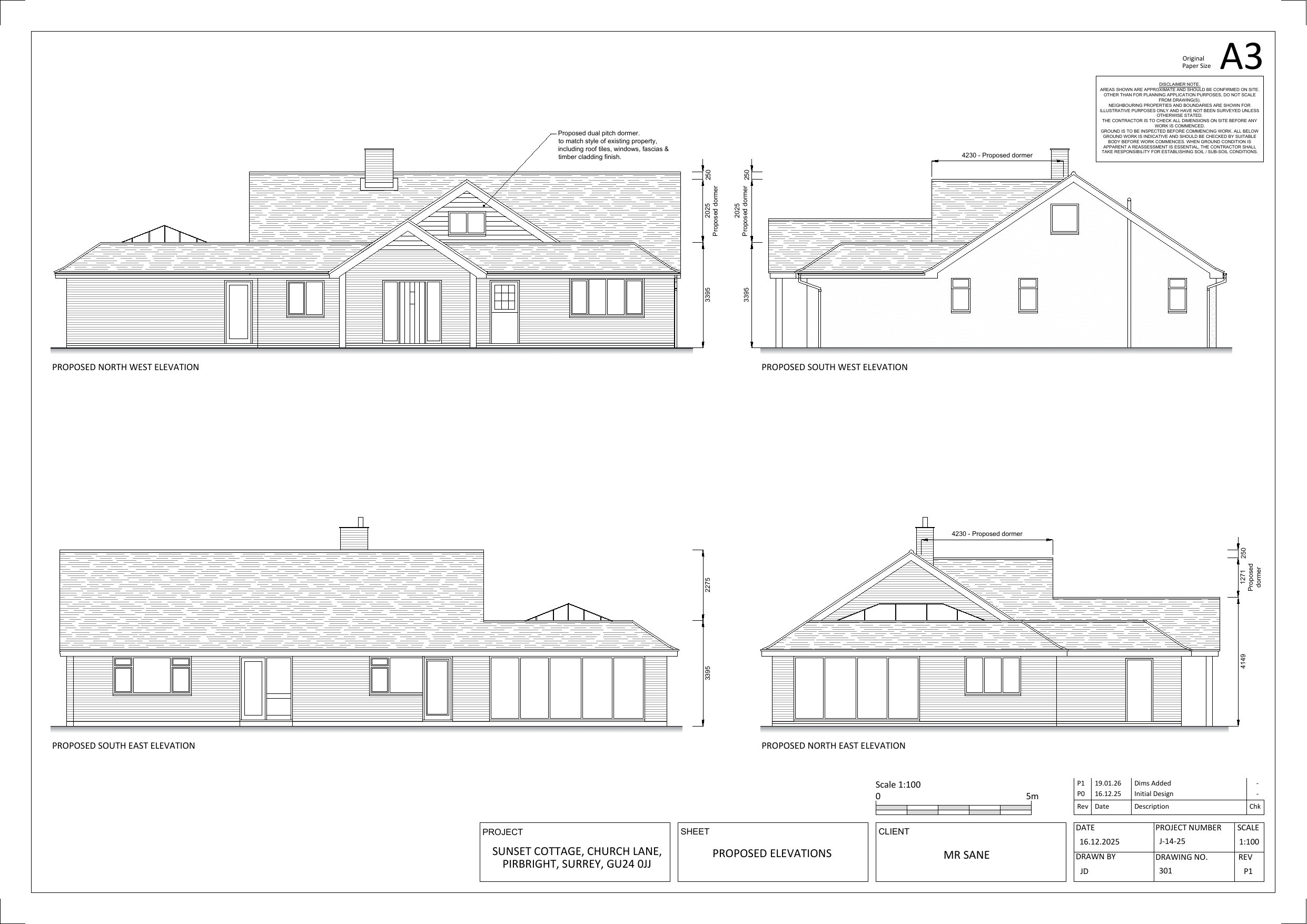
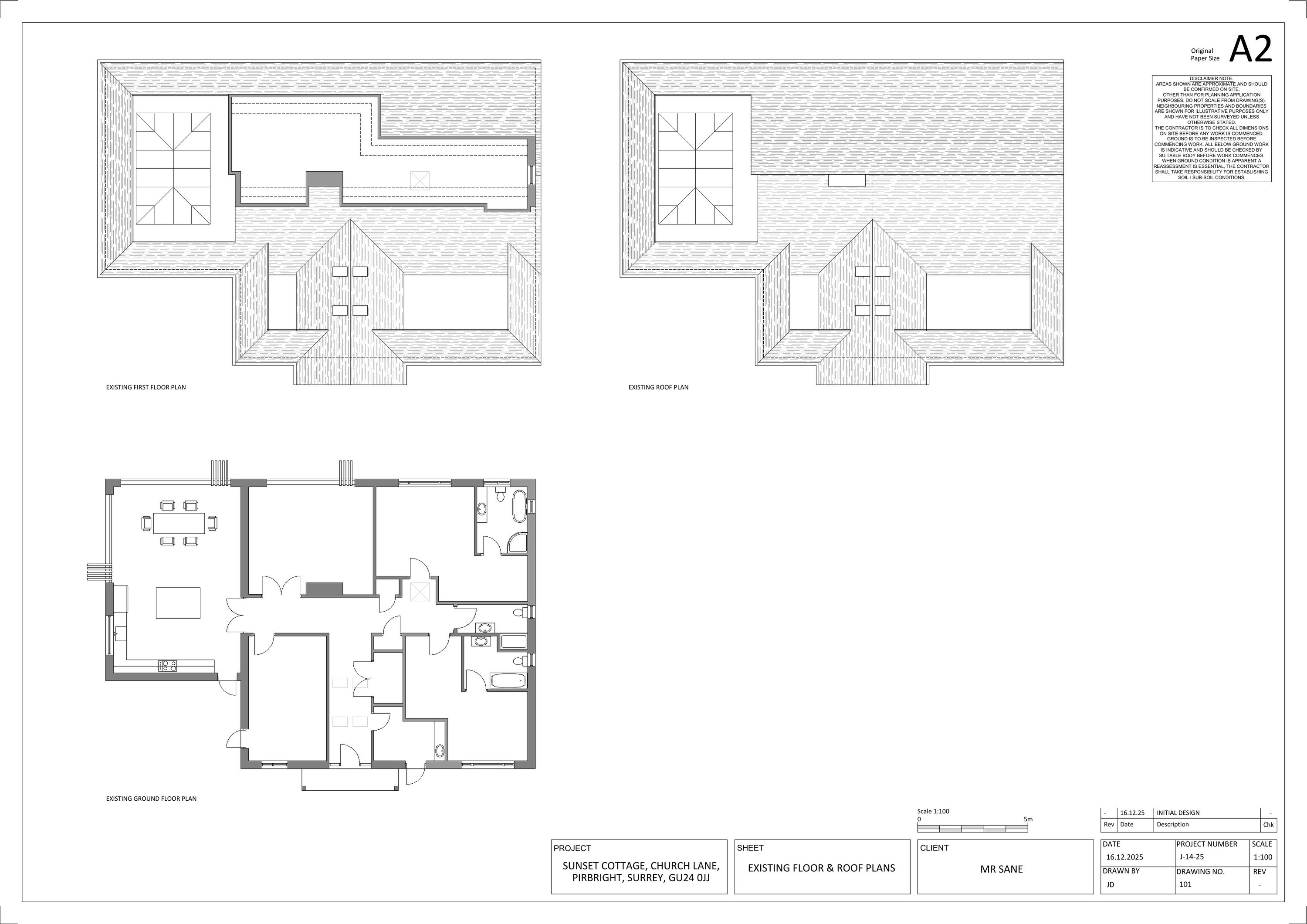
Erection of first floor front dormer window.

Documents

Application Document
Archived · Original link
Drawing
Archived · Original link
Drawing
Archived · Original link
Drawing
Archived · Original link
Drawing
Archived · Original link

Have your say

Your comment matters. Councils must consider every representation that raises material planning considerations.

Write a comment