← Guildford Borough Council

Status

Awaiting decision House extension
Received
05 Jan 2026
New homes
0

Full proposal

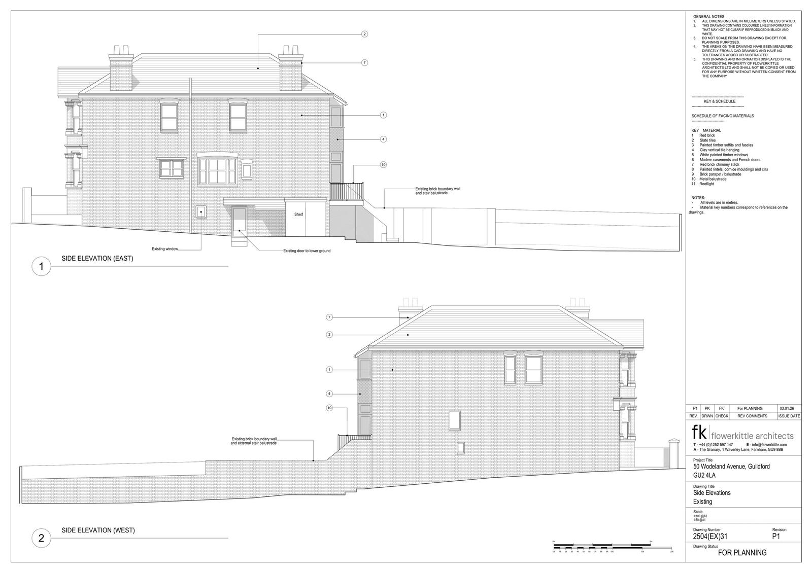
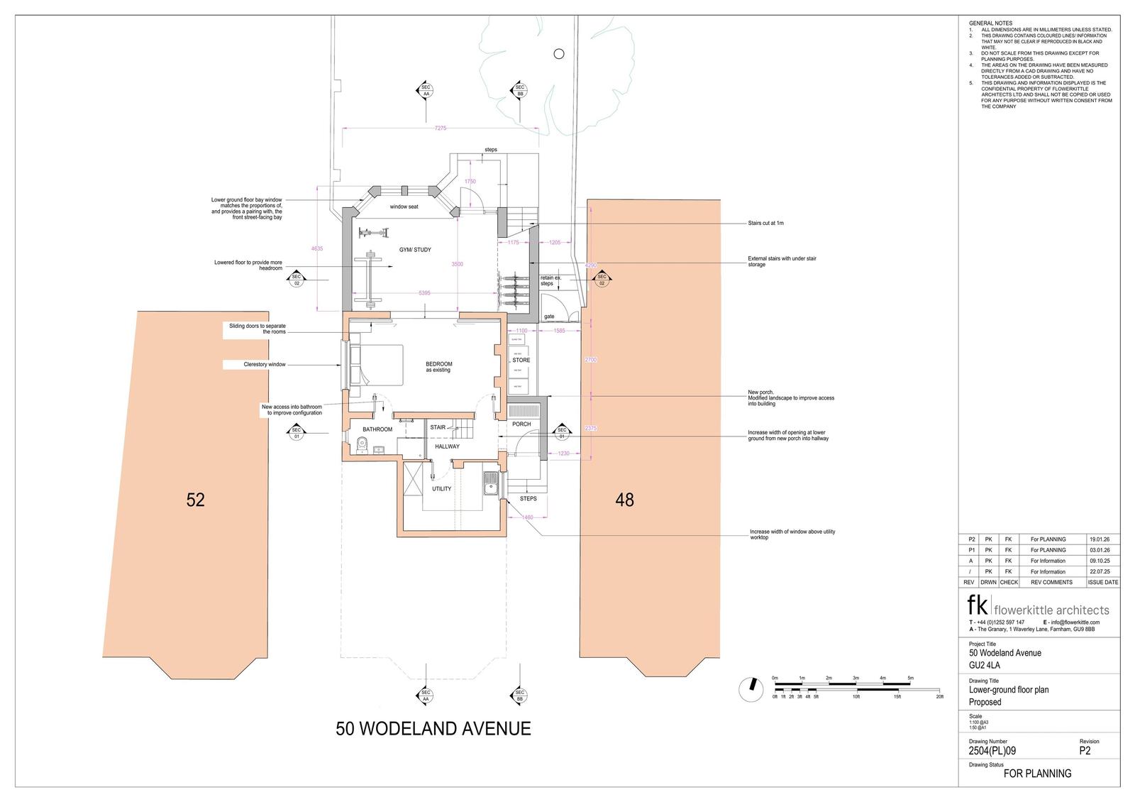
Erection of a single storey rear extension to lower ground floor with a terrace at ground floor level, single storey side extension to ground floor along with changes to fenestration and landscaping works.

Have your say

Your comment matters. Councils must consider every representation that raises material planning considerations.

Write a comment