← Guildford Borough Council

Status

Registered House extension
Received
14 Jan 2026
New homes
0

Full proposal

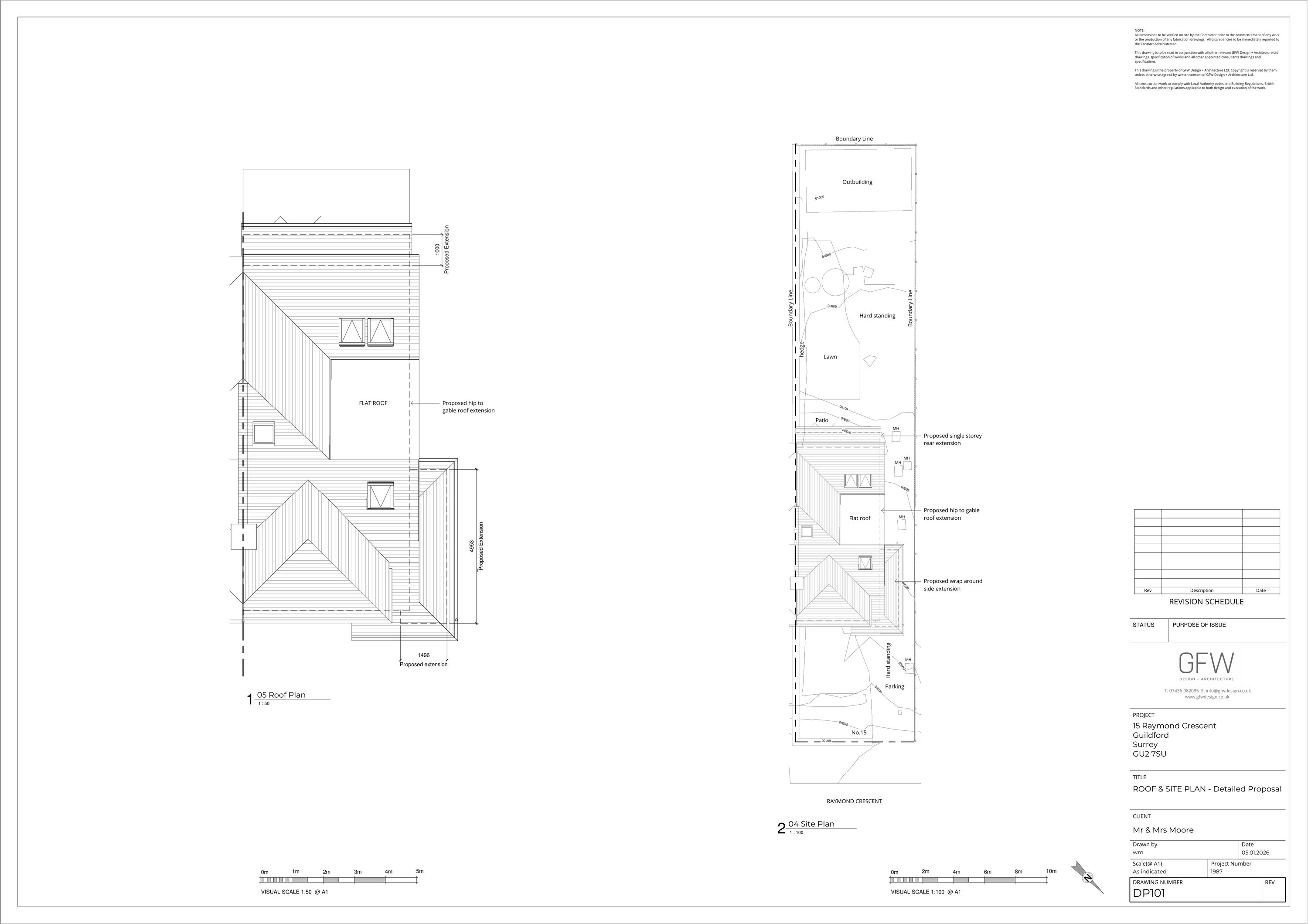
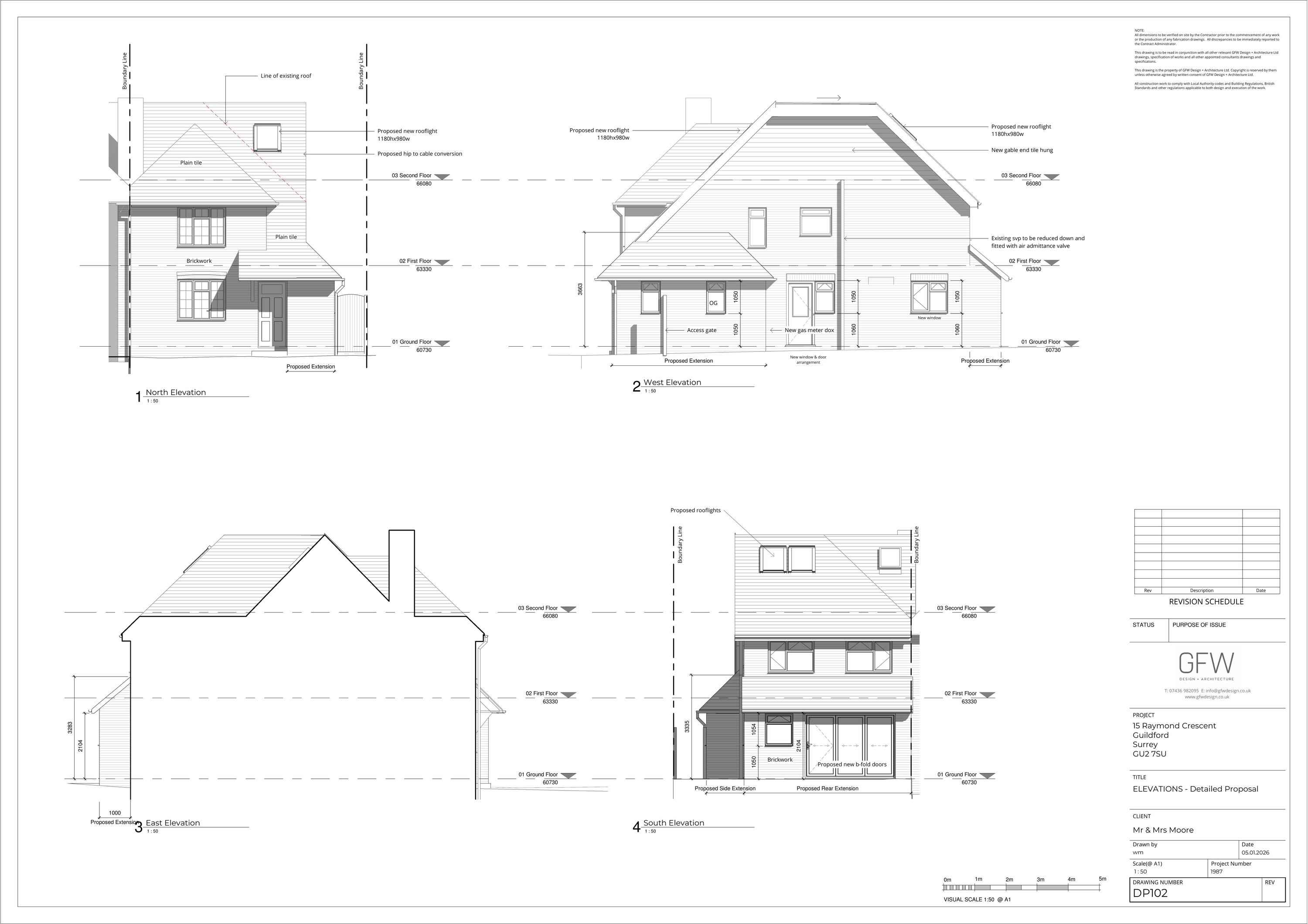
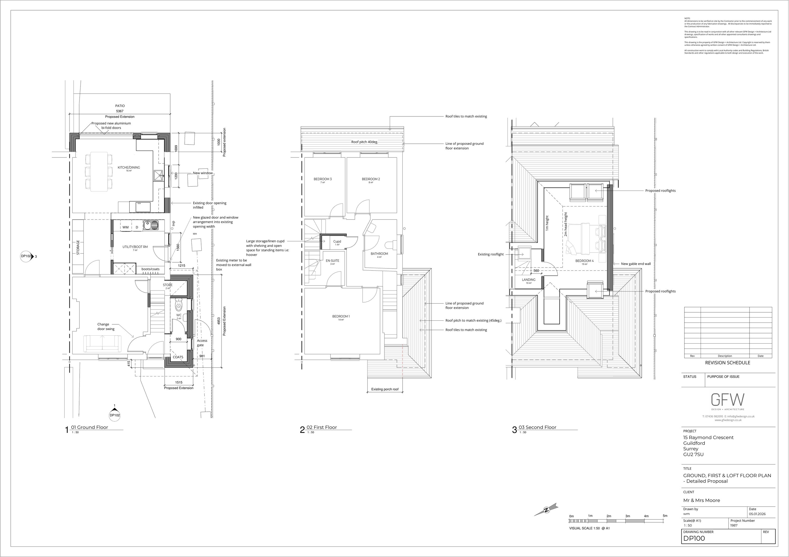
Erection of single storey wrap-around side extension, single storey rear extension, hip-to-gable conversion of loft space to habitable accommodation with rooflights and changes to fenestration

Documents

Drawing
Archived · Original link
Drawing
Archived · Original link
Drawing
Archived · Original link
Drawing
Archived · Original link
Drawing
Archived · Original link
Drawing
Archived · Original link

Have your say

Your comment matters. Councils must consider every representation that raises material planning considerations.

Write a comment