← Guildford Borough Council

Status

Registered House extension
Received
19 Jan 2026
New homes
0

Full proposal

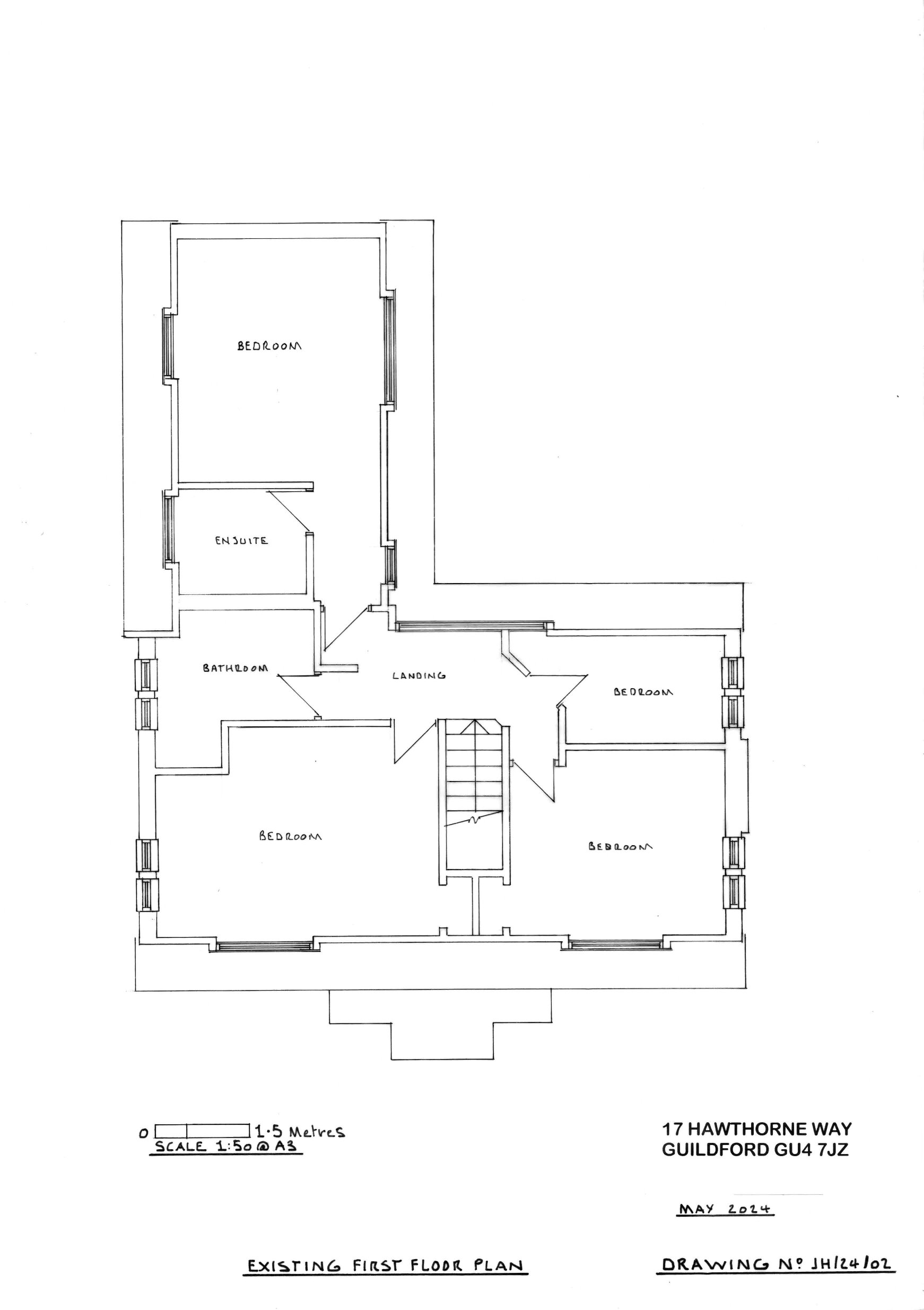
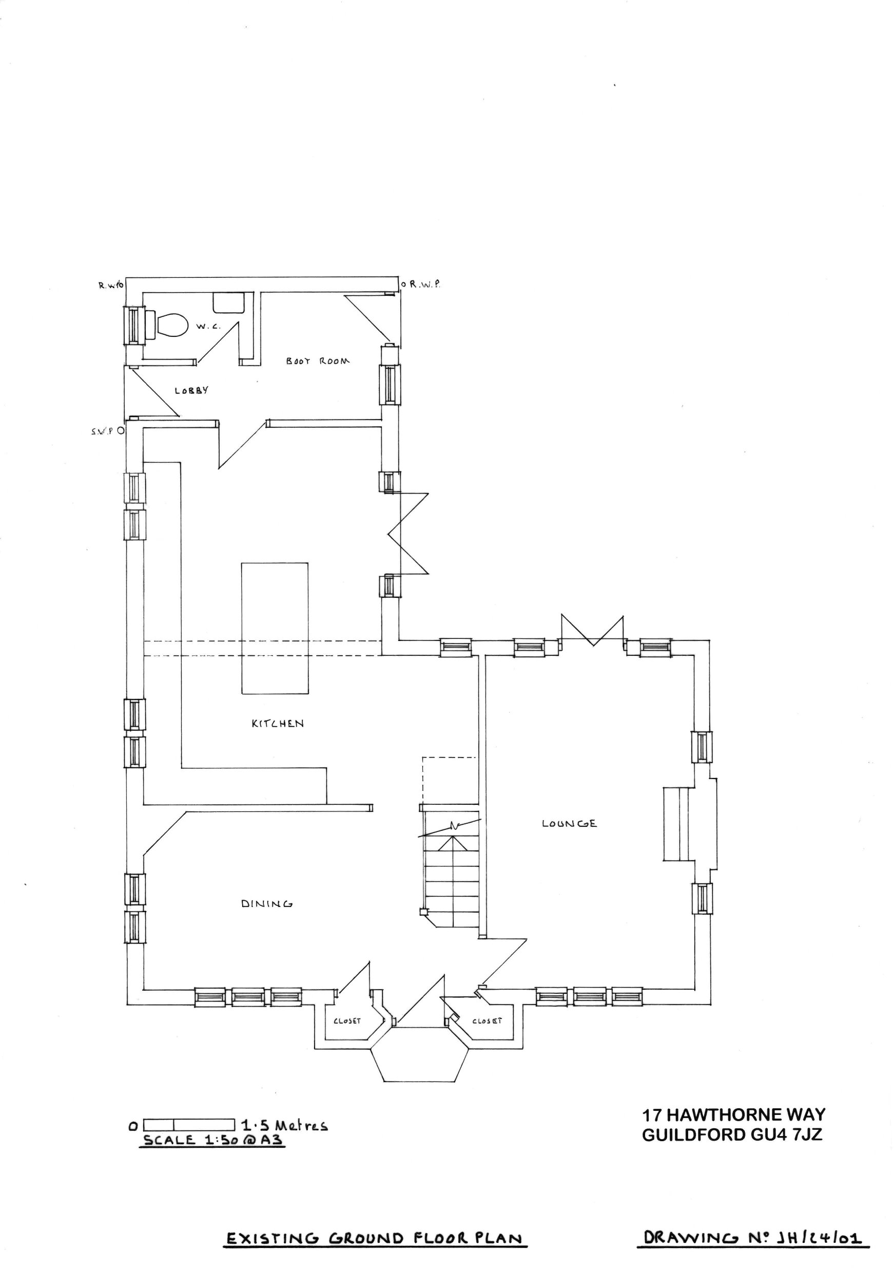
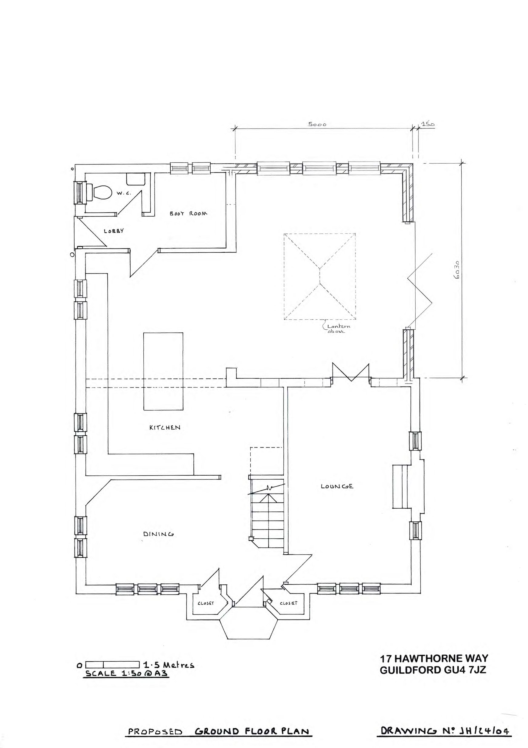
Erection of a single storey rear/side extension.

Have your say

Your comment matters. Councils must consider every representation that raises material planning considerations.

Write a comment