← Guildford Borough Council

Status

Registered House extension
Received
Last month
New homes
0

Full proposal

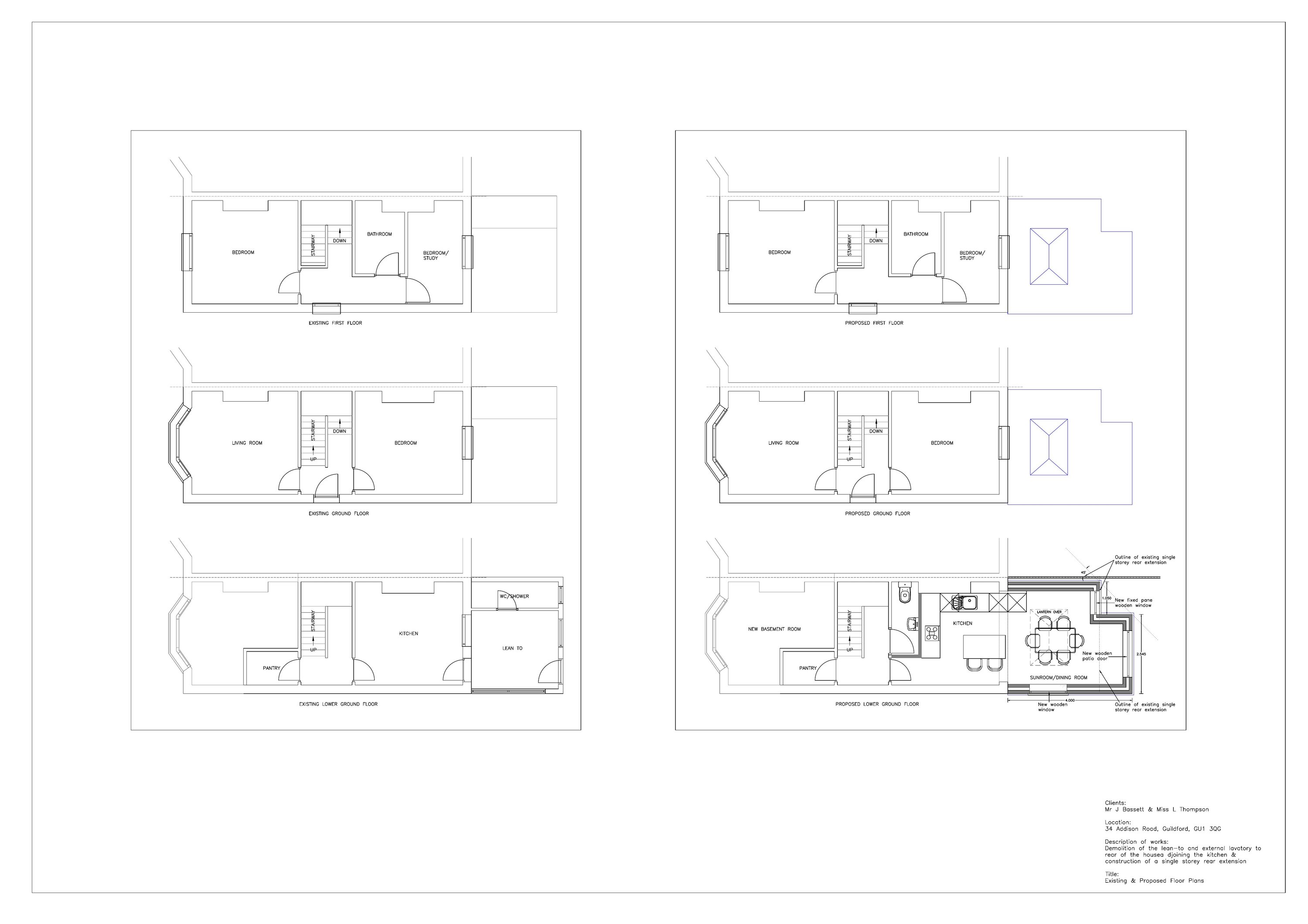
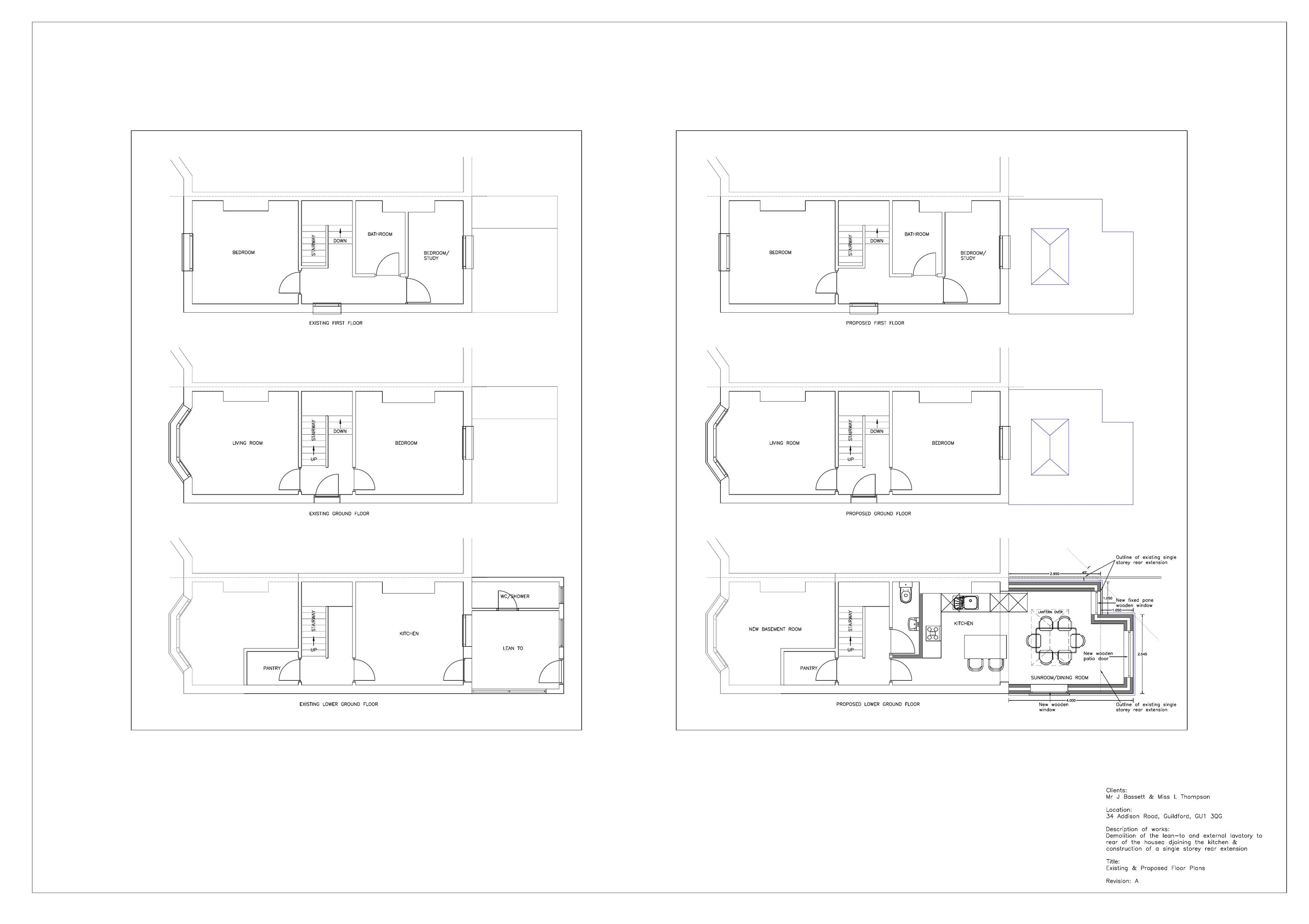
Erection of a single storey rear extension, replacement of windows, new path and replacement of brick and rail wall and installation of new front boundary gate following the demolition of existing lean-to and lavatory.

Have your say

Your comment matters. Councils must consider every representation that raises material planning considerations.

Write a comment