← Guildford Borough Council

Status

Registered Other
Received
Last month
New homes
0

Full proposal

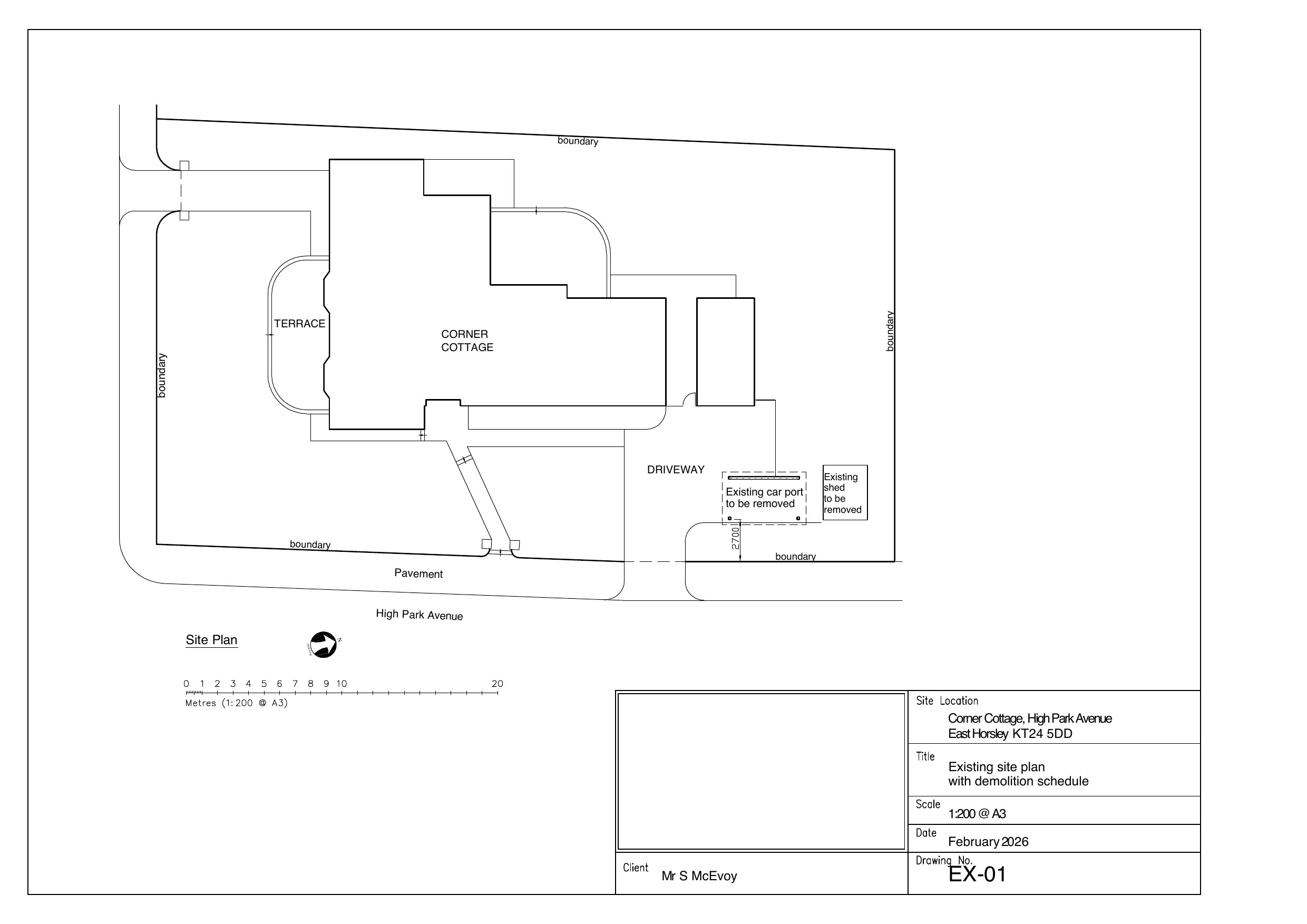
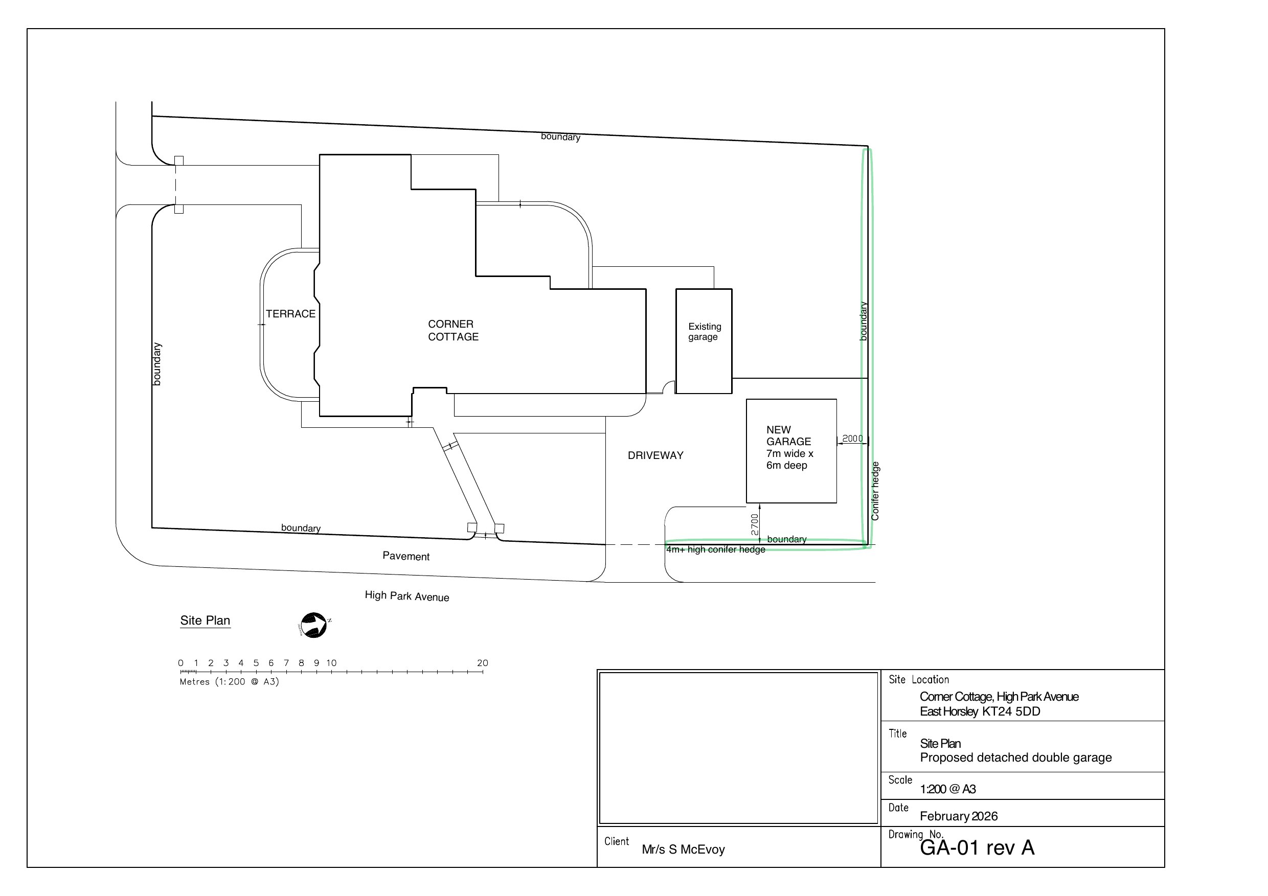
Erection of a detached double garage following demolition of the existing detached carport and an adjacent timber shed.

Have your say

Your comment matters. Councils must consider every representation that raises material planning considerations.

Write a comment