← Guildford Borough Council

Status

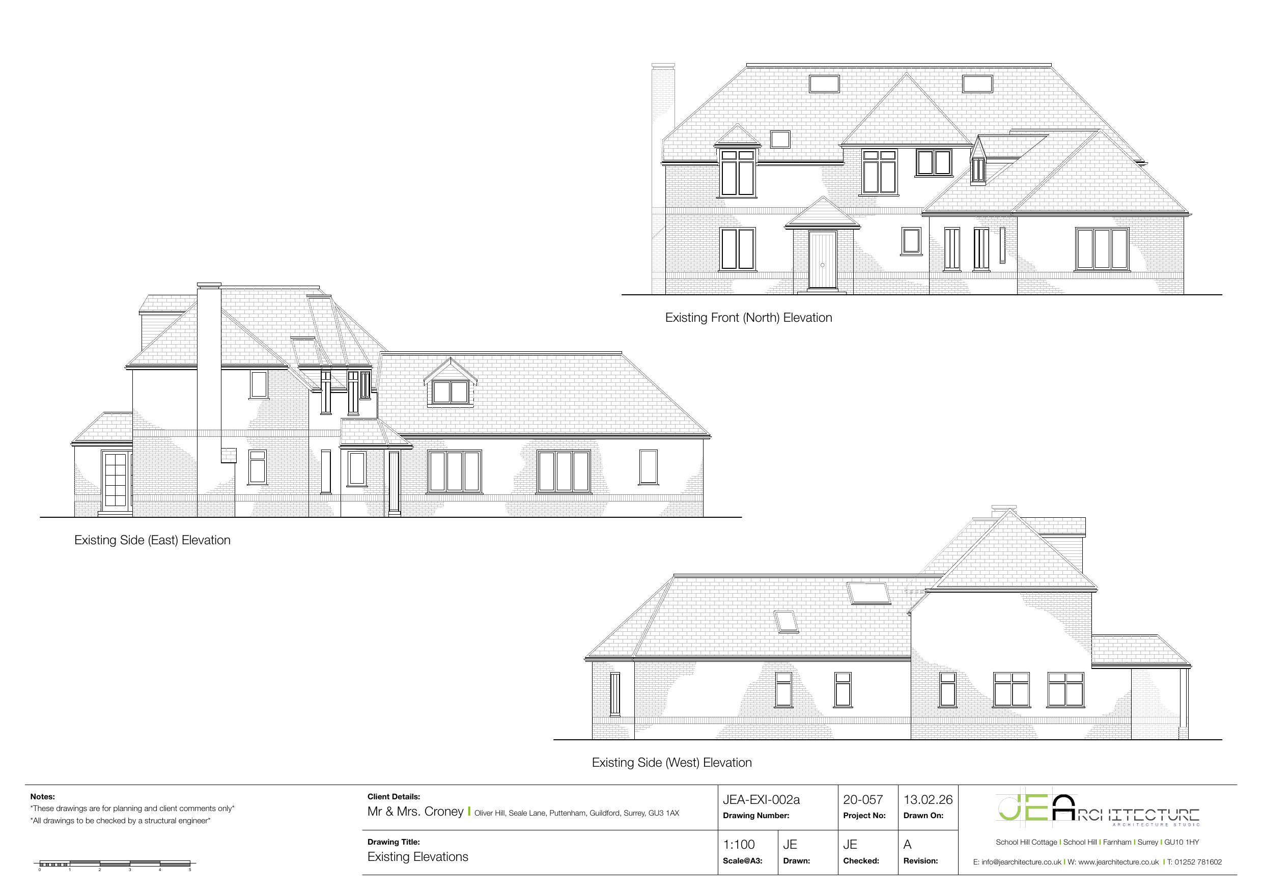
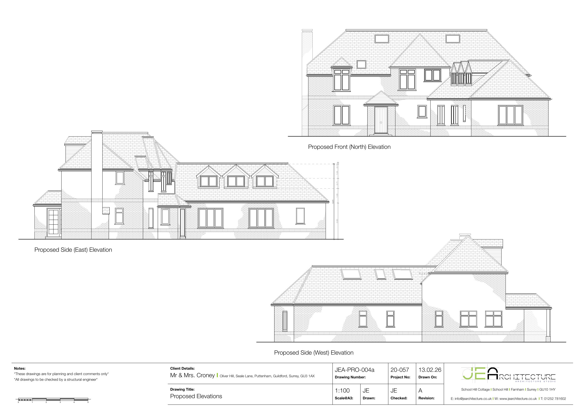
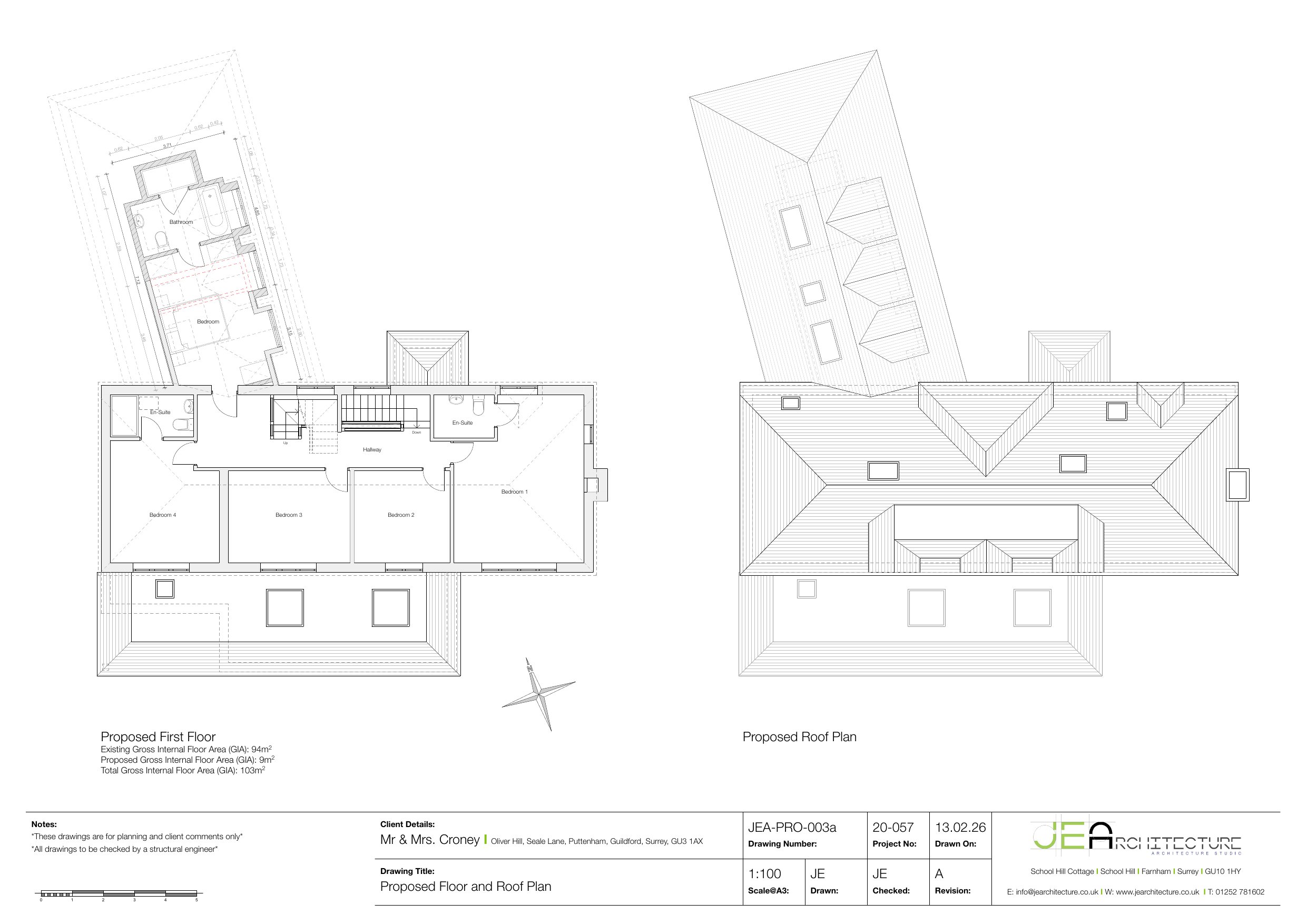
Registered House extension
Received
Last month
New homes
0

Full proposal

Conversion of loft space to habitable accomodation with roof windows and additional dormer windows

Have your say

Your comment matters. Councils must consider every representation that raises material planning considerations.

Write a comment