← Guildford Borough Council

Status

Registered House extension
Received
Last month
New homes
0

Full proposal

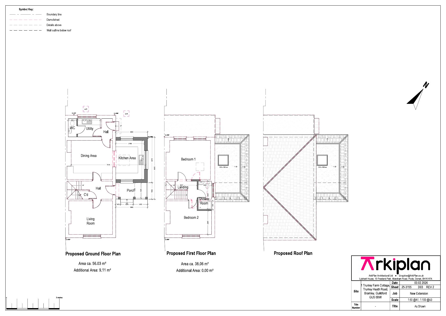
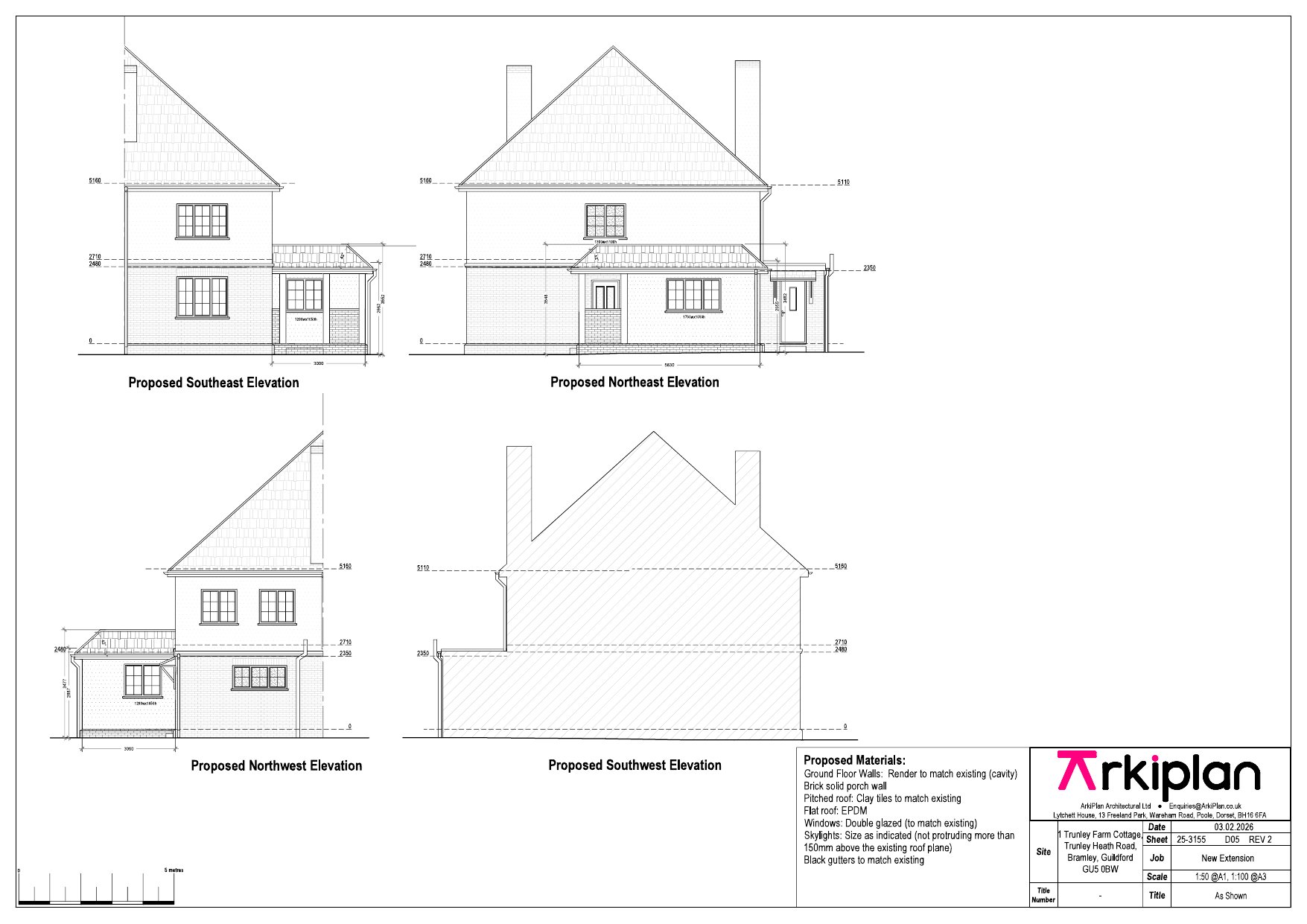
Erection of single storey side extension with rooflight

Documents

Application Form
Archived · Original link
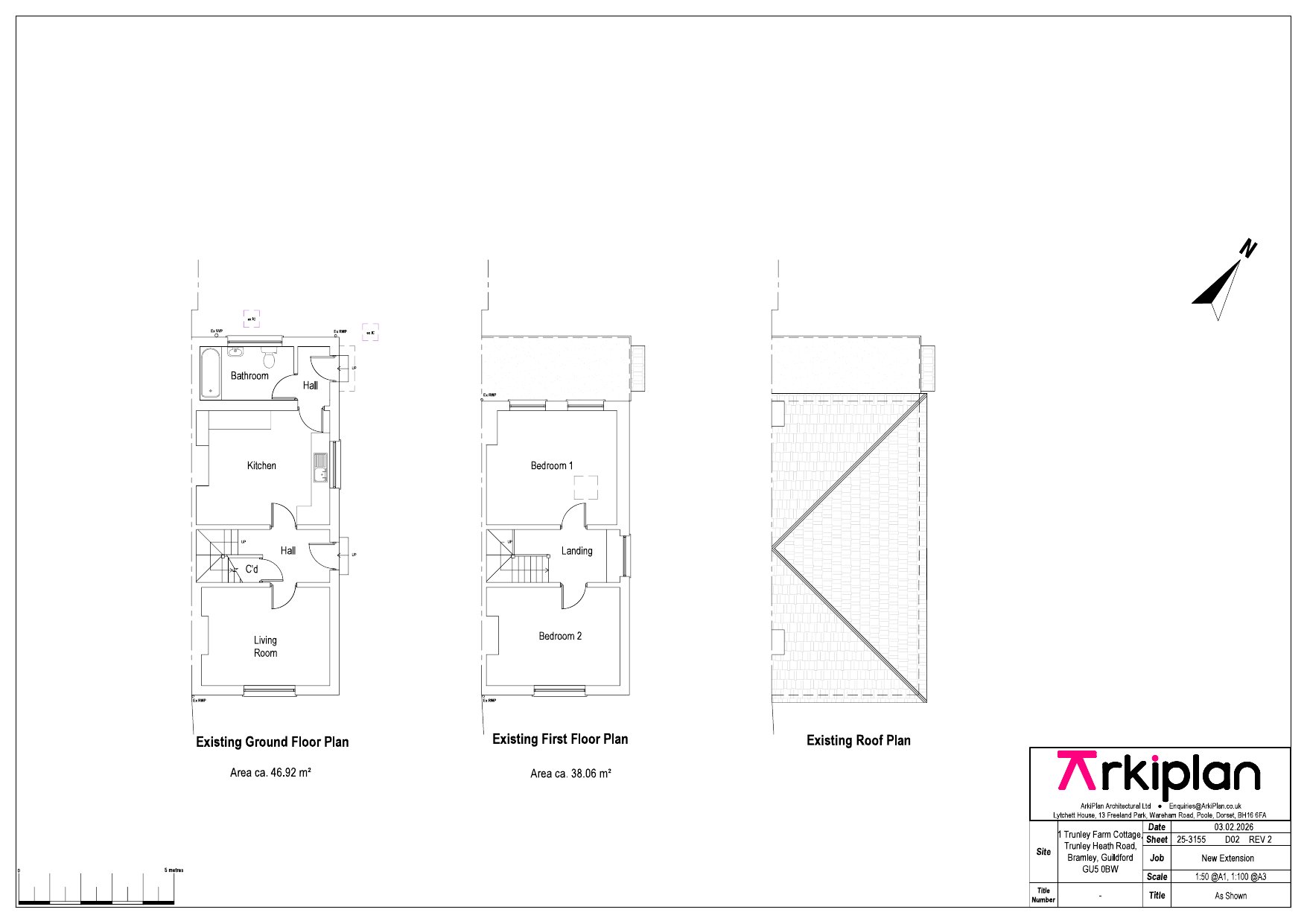
Existing elevations
Drawing
Not yet archived · Original link
Application Document
Archived · Original link
Application Document
Archived · Original link
Drawing
Archived · Original link

Have your say

Your comment matters. Councils must consider every representation that raises material planning considerations.

Write a comment