26/P/00215
Guildford Borough Council
Status
Registered
New housing
Received
Last month
New homes
1
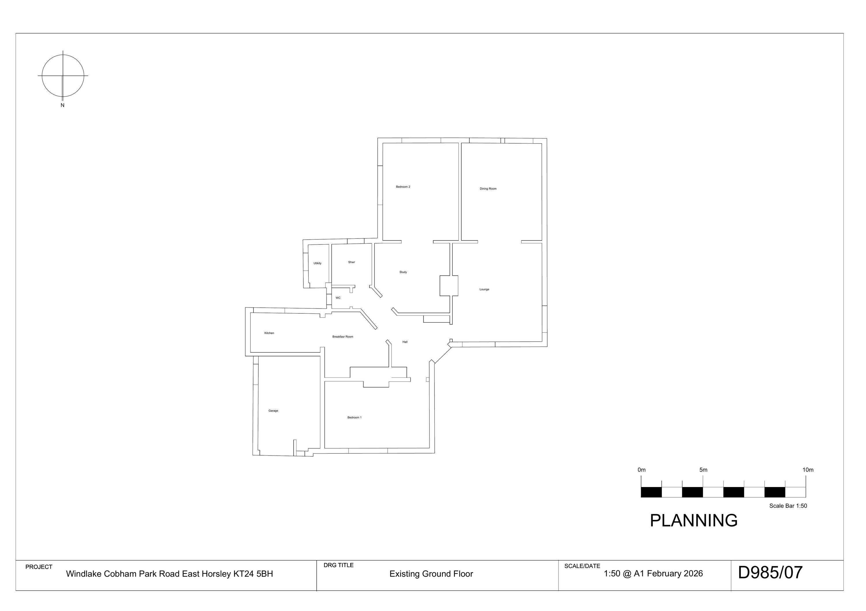
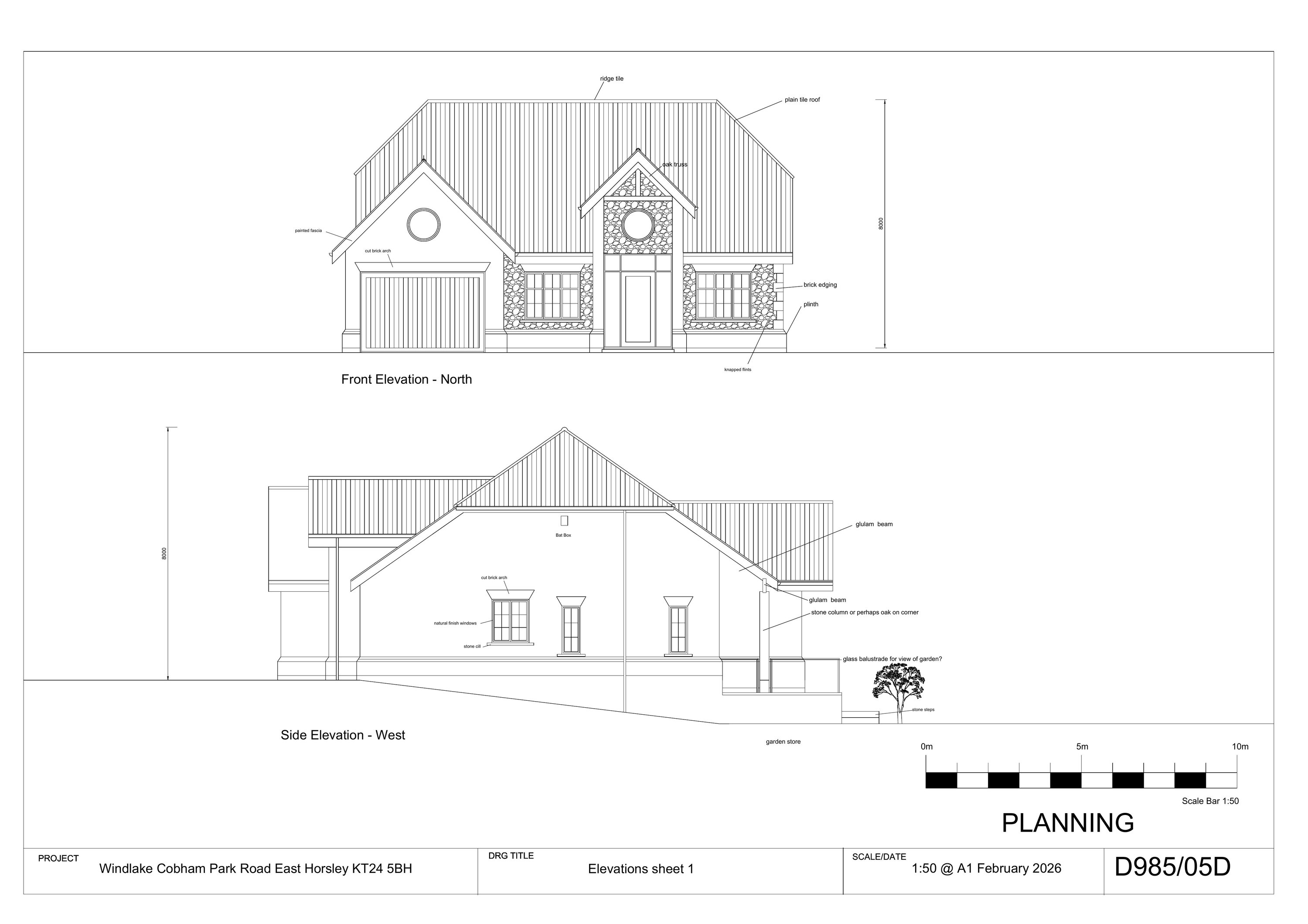
Full proposal
Erection of a detached single storey 3 bedroom self-build dwelling with integral garage, roof windows and solar panels, ASHP and bin/cycle store following demolition of existing bungalow and single garage.
Documents
Have your say
Your comment matters. Councils must consider every representation that raises material planning considerations.