← Guildford Borough Council

Status

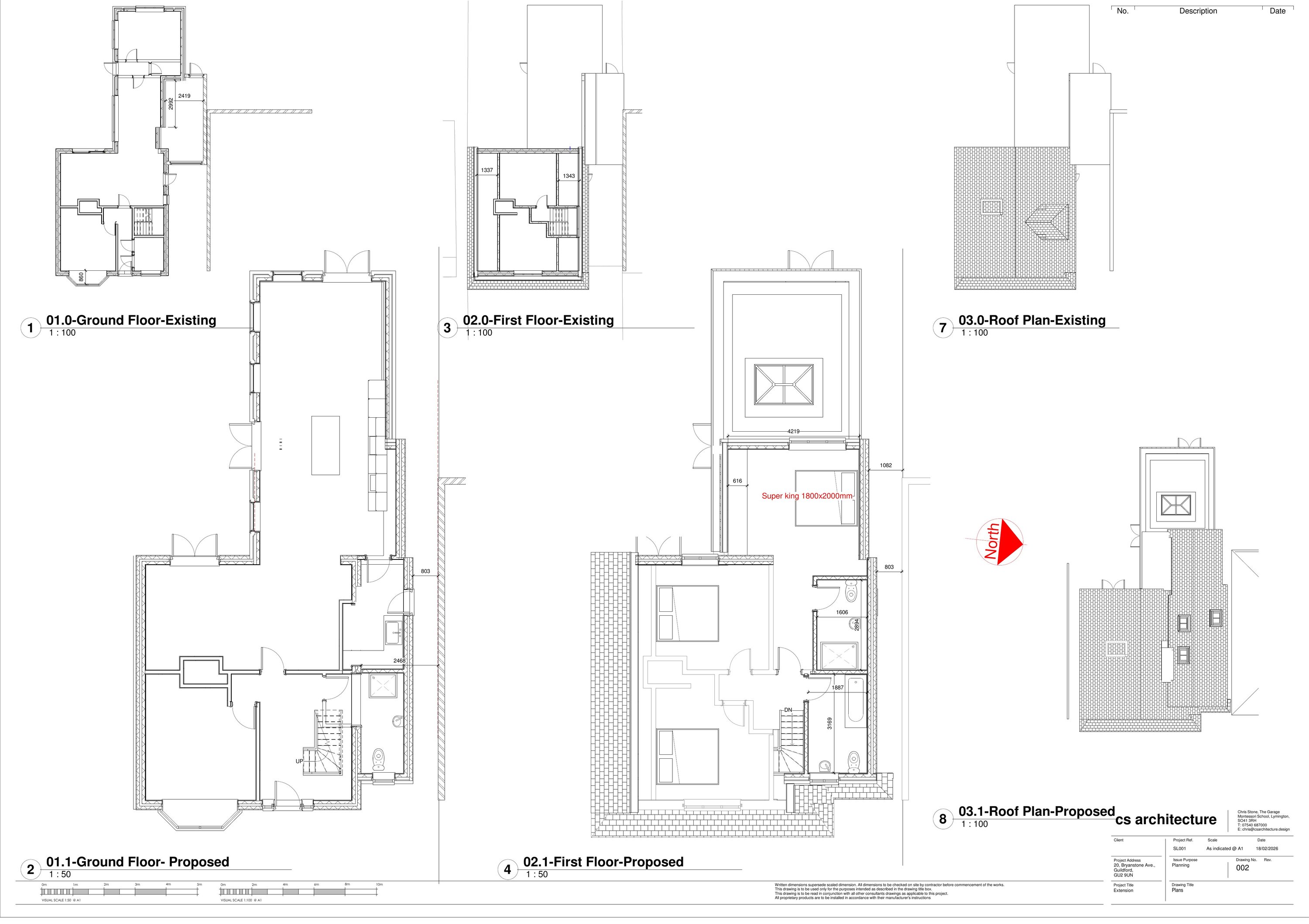
Registered House extension
Received
Last month
New homes
0

Full proposal

Erection of a two-storey side extension and first storey rear extension above existing single storey extension with a parapet wall, green roof, roof windows, roof lantern and changes in fenestration

Have your say

Your comment matters. Councils must consider every representation that raises material planning considerations.

Write a comment