← Guildford Borough Council

Status

Registered House extension
Received
Last month
New homes
0

Full proposal

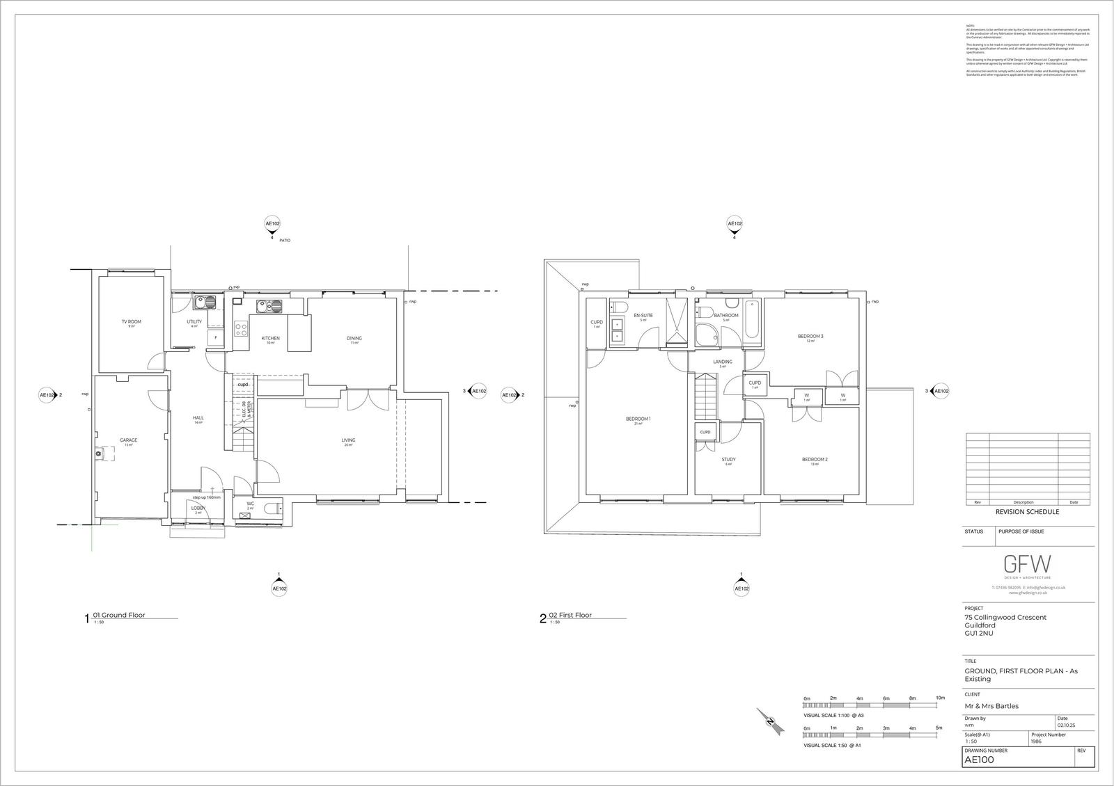
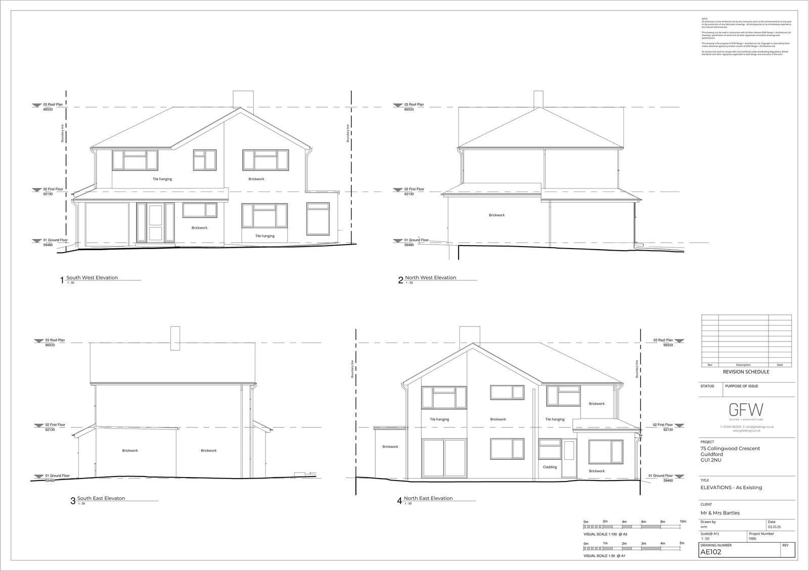
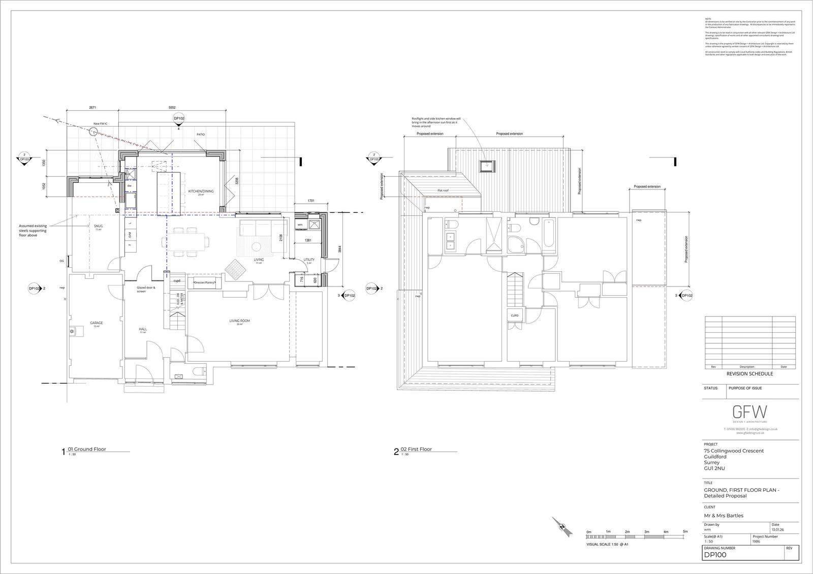
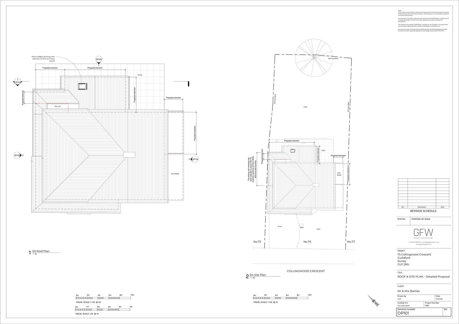
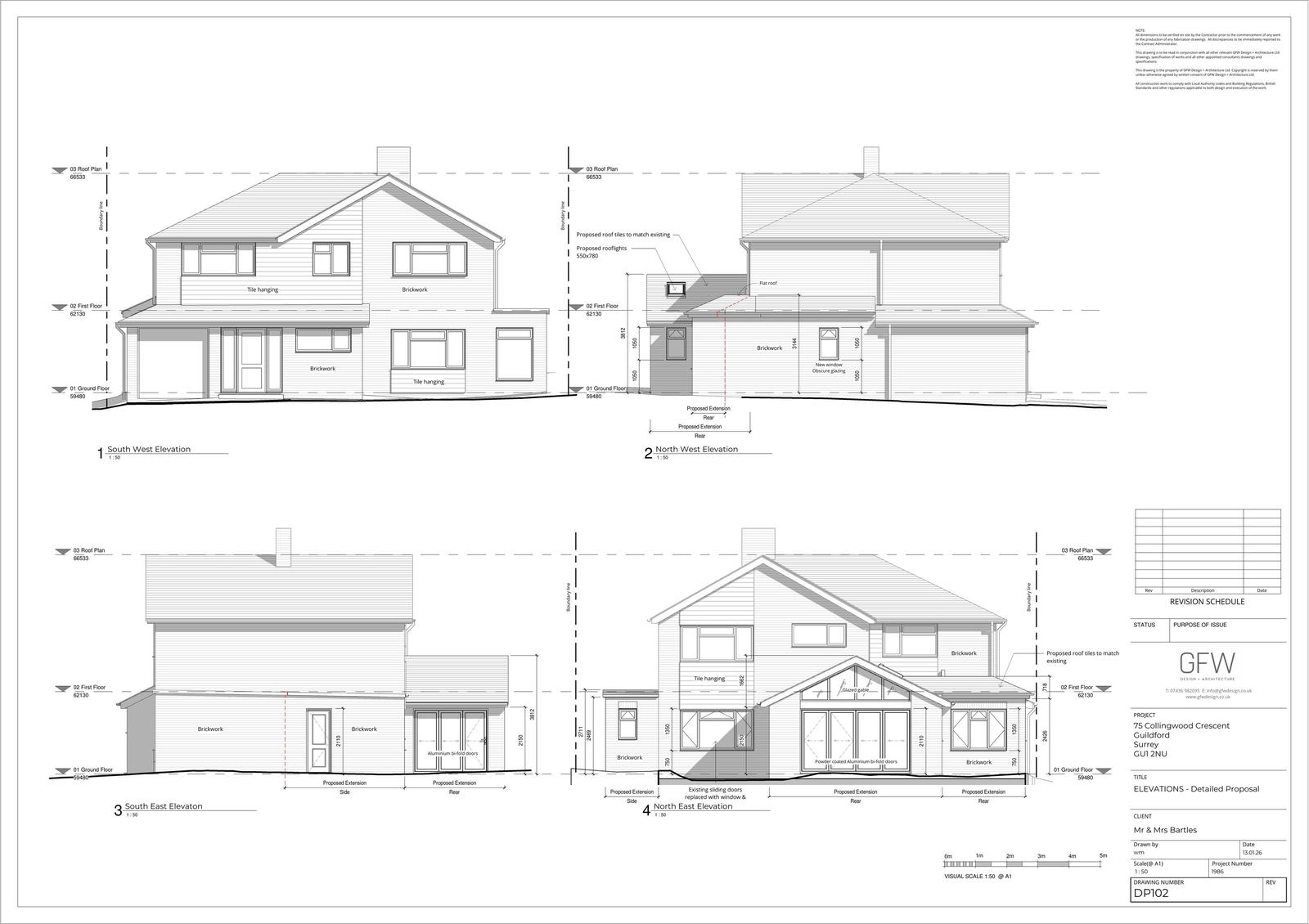
Erection of a single-storey rear extension and a single-storey side infill extension with fenestration alterations.

Have your say

Your comment matters. Councils must consider every representation that raises material planning considerations.

Write a comment