← Guildford Borough Council

Status

Registered House extension
Received
Last month
New homes
0

Full proposal

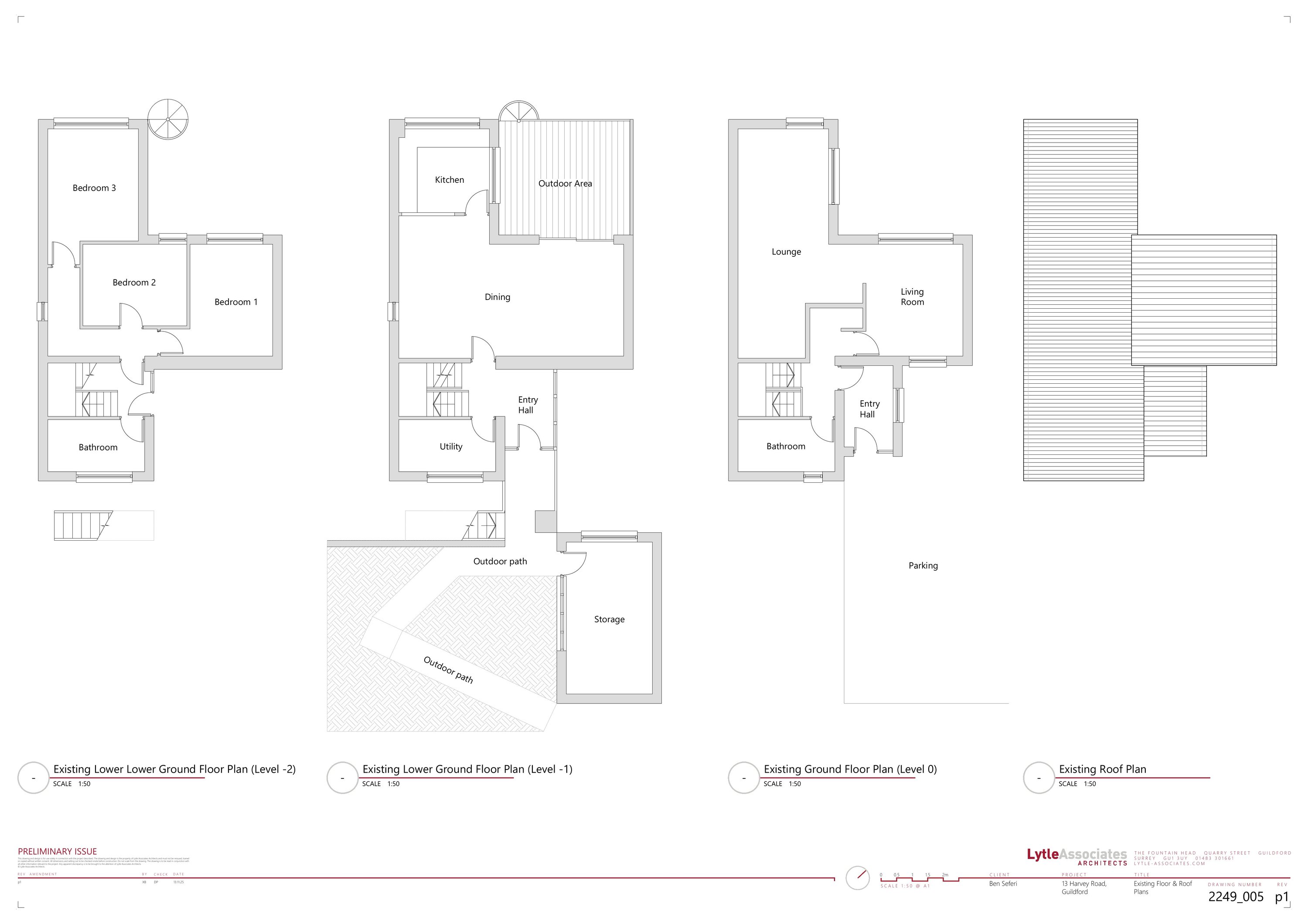
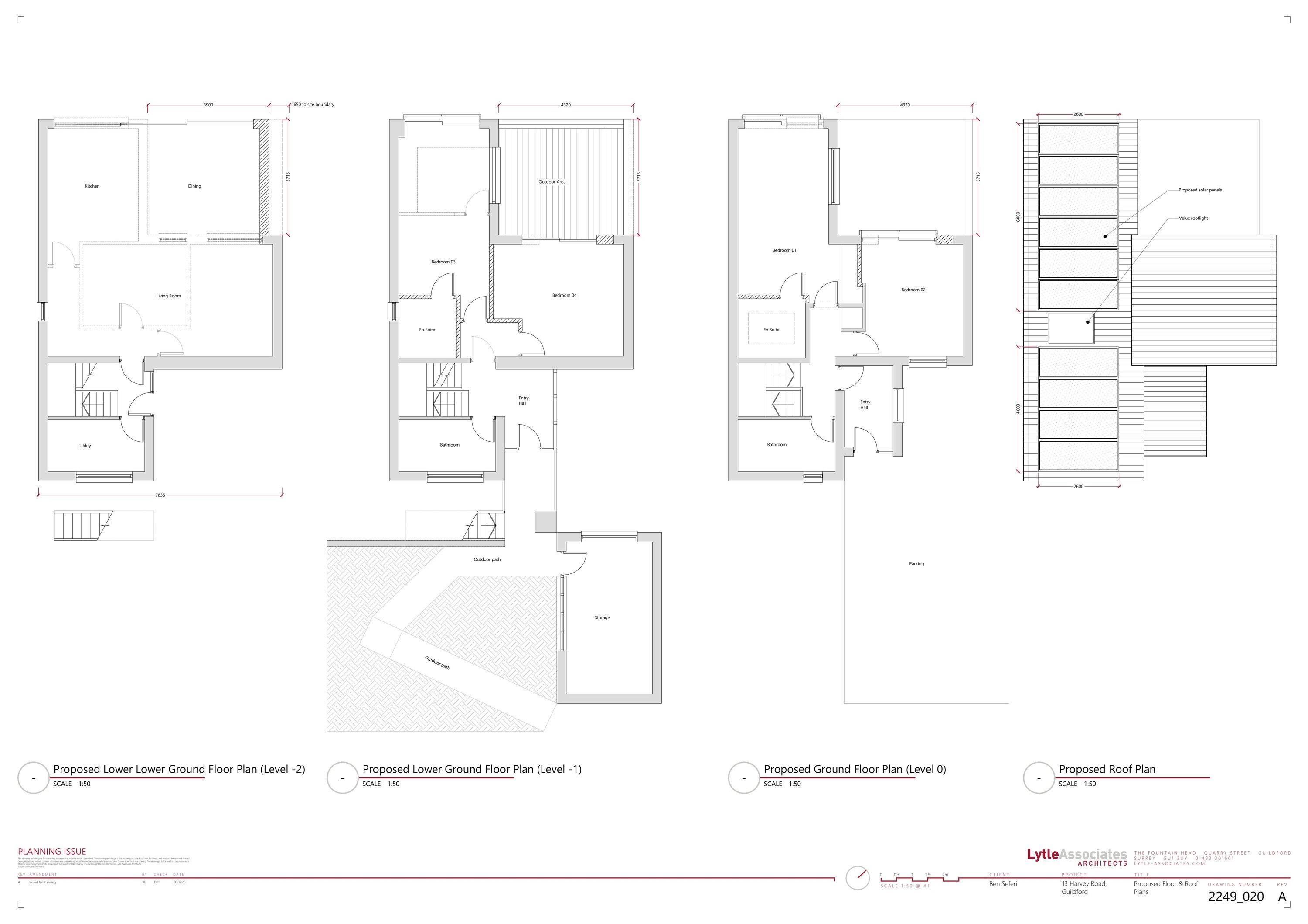
Erection of a single storey rear extension, consolidation of existing flank wall to balcony, addition of 1no. rooflight and 10 solar panels to side facing roof and alterations to rear fenestration including construction of Juliet balconies to first and second floor, following removal of spiral staircase.

Documents

Application Form
Archived · Original link
Drawing
Archived · Original link
Drawing
Archived · Original link
Drawing
Archived · Original link
Drawing
Archived · Original link
Drawing
Archived · Original link

Have your say

Your comment matters. Councils must consider every representation that raises material planning considerations.

Write a comment