← Guildford Borough Council

Status

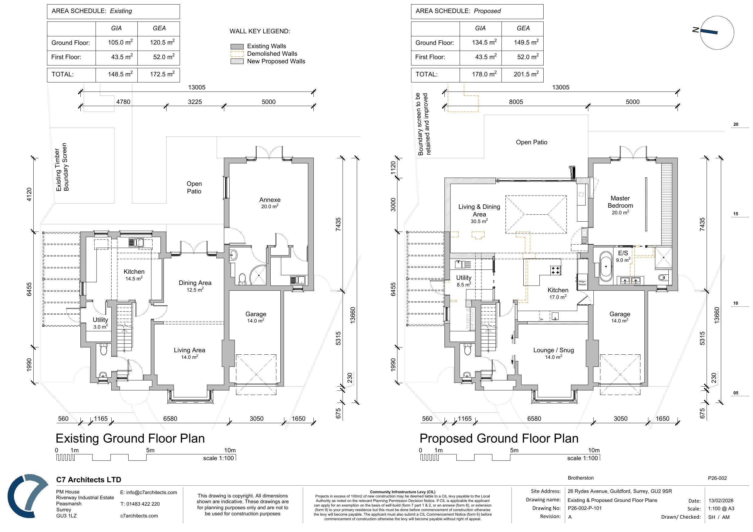
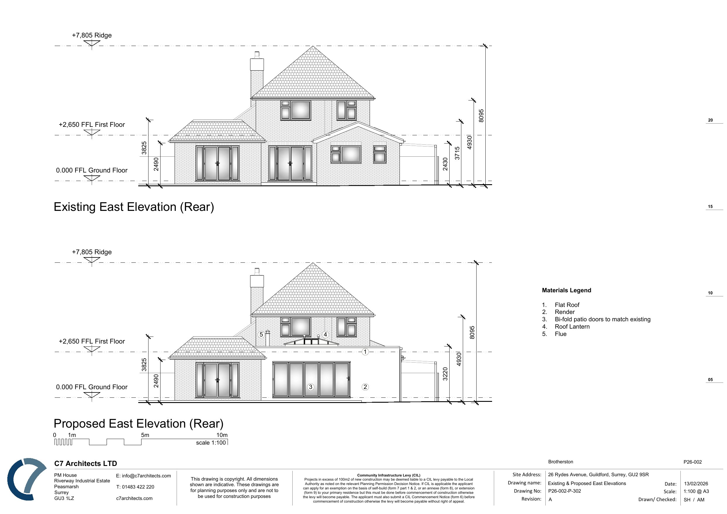
Registered House extension
Received
Last month
New homes
0

Full proposal

Erection of a single storey rear extension

Have your say

Your comment matters. Councils must consider every representation that raises material planning considerations.

Write a comment