← Guildford Borough Council

Status

Registered House extension
Received
Last month
New homes
0

Full proposal

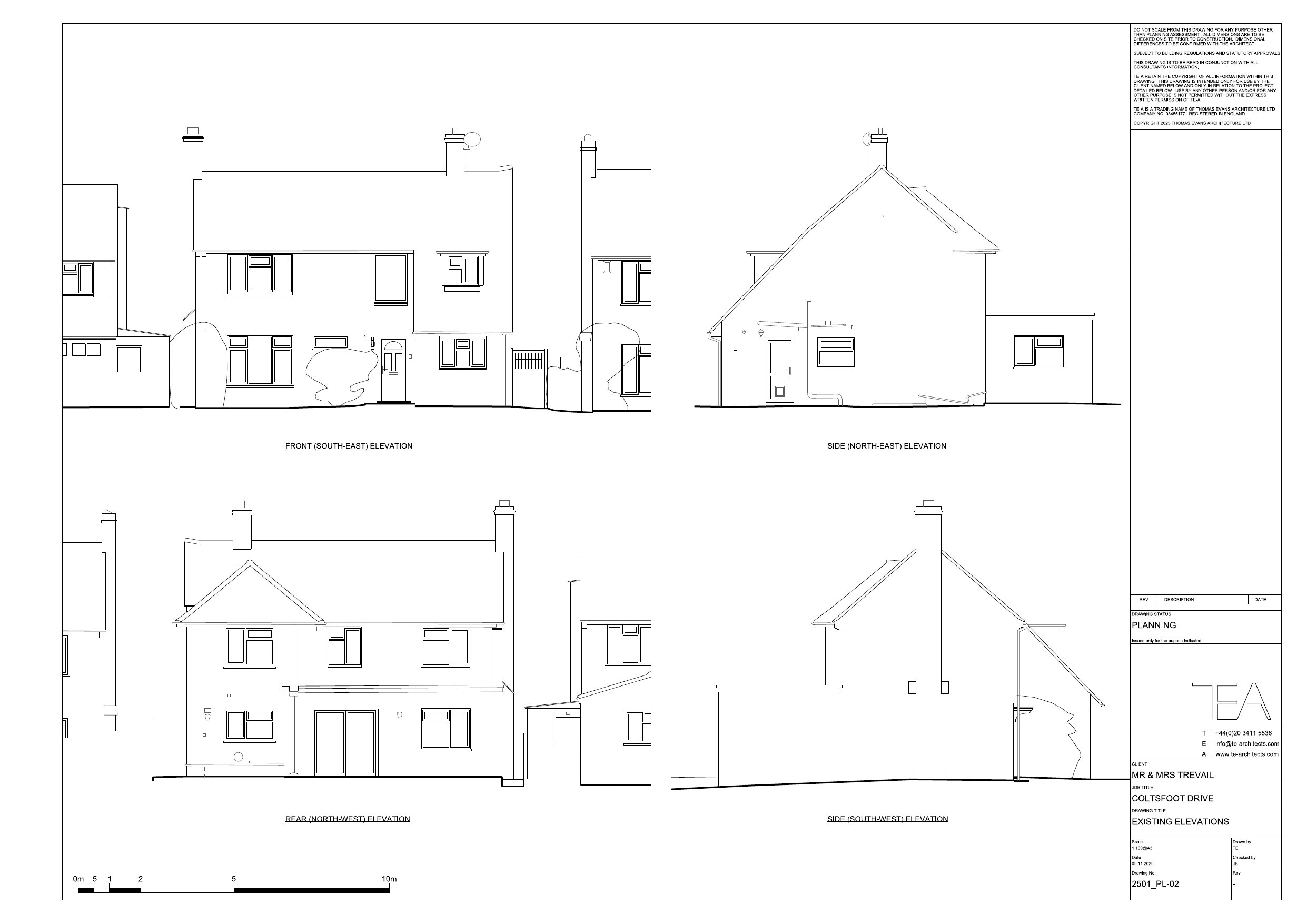
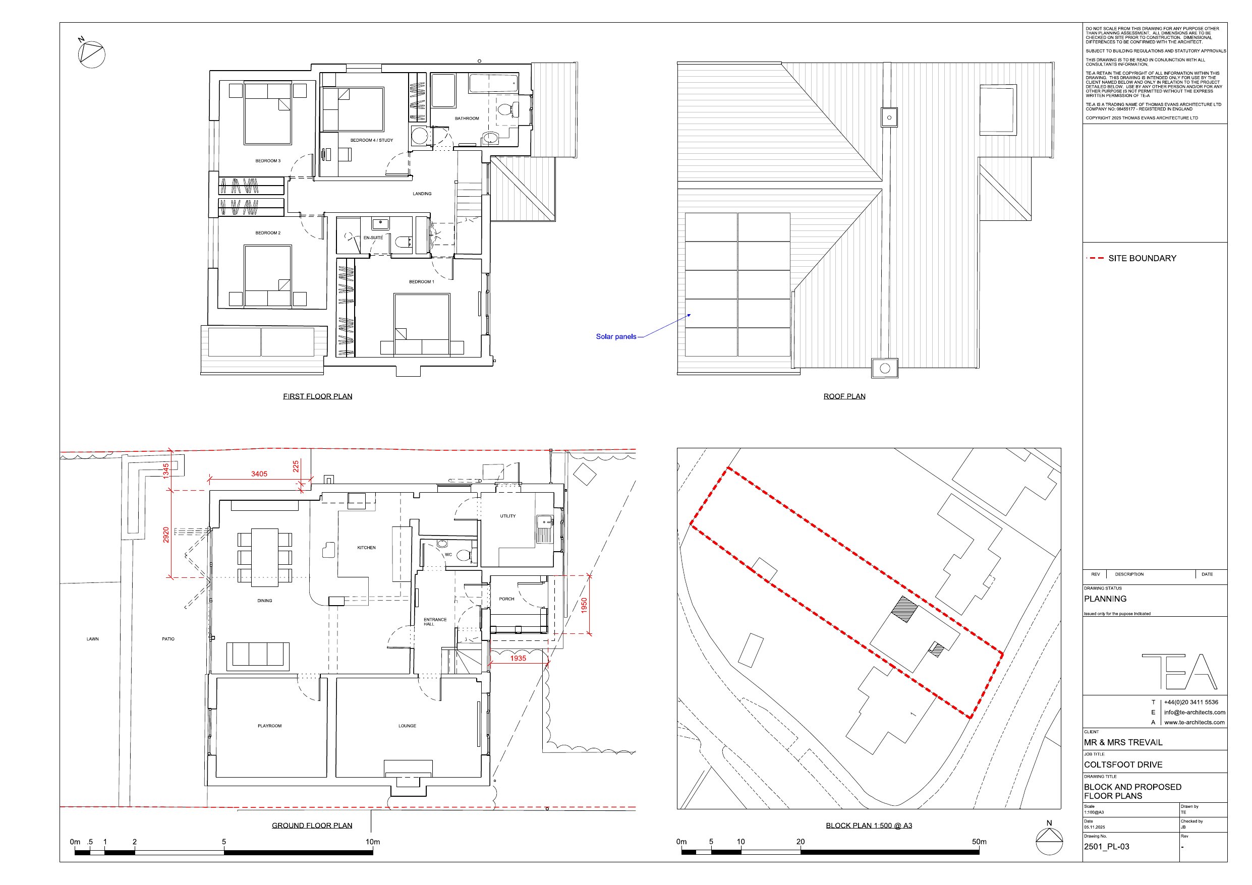
Erection of a front porch, part single / part two storey rear extension including south facing solar panels

Have your say

Your comment matters. Councils must consider every representation that raises material planning considerations.

Write a comment