← Guildford Borough Council

Status

Registered House extension
Received
Last month
New homes
0

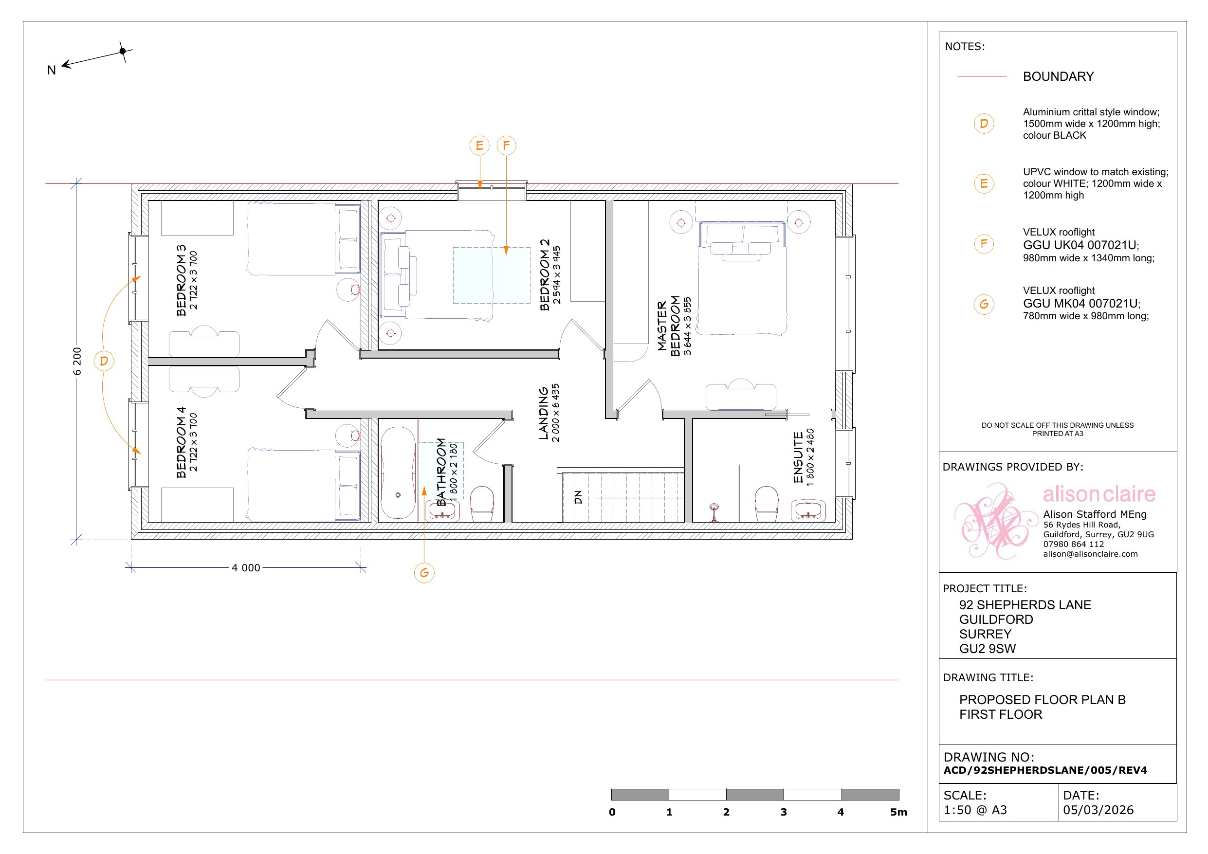
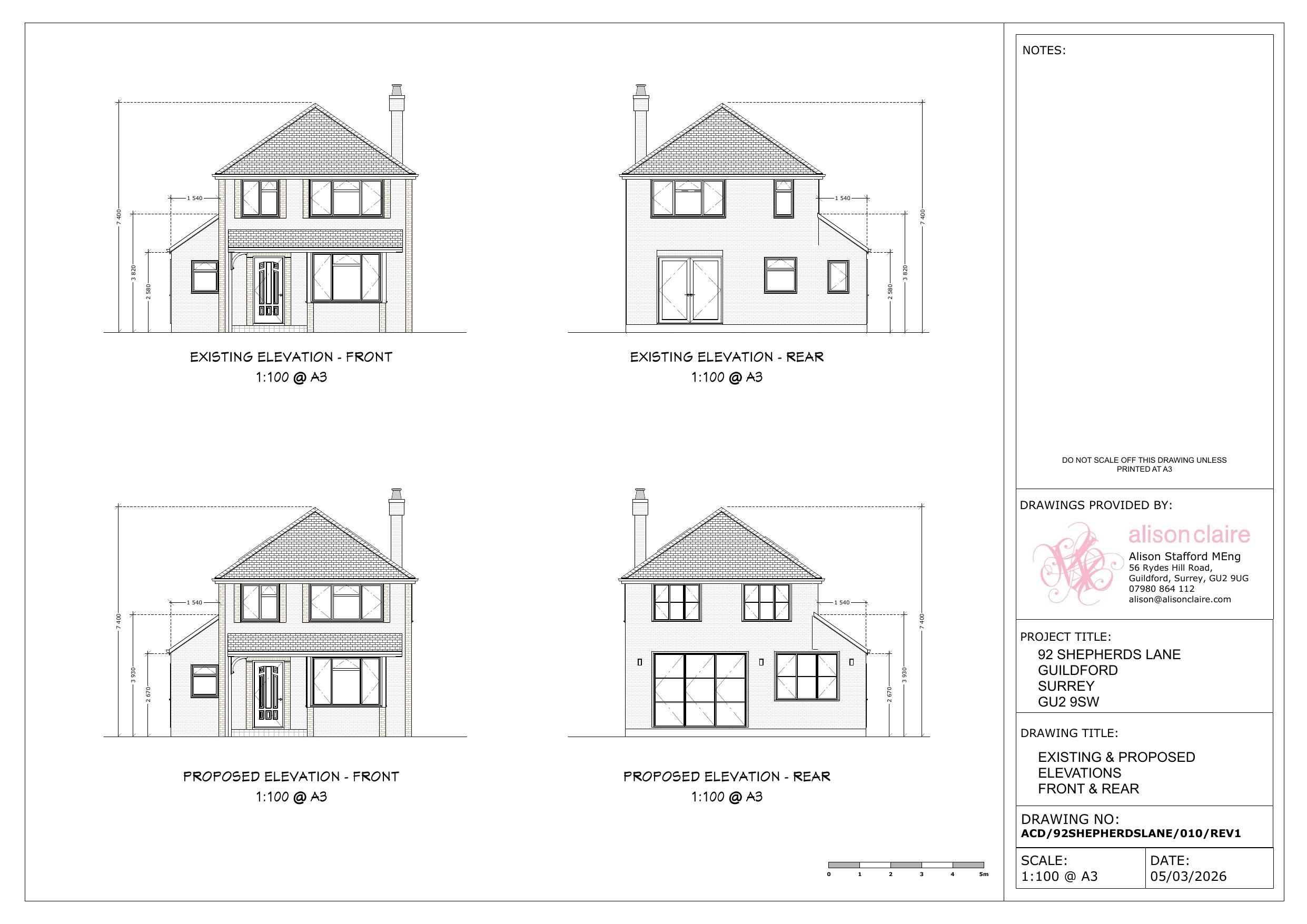
Full proposal

Erection of a single storey side extension and two storey rear extension.

Have your say

Your comment matters. Councils must consider every representation that raises material planning considerations.

Write a comment