← Guildford Borough Council

Status

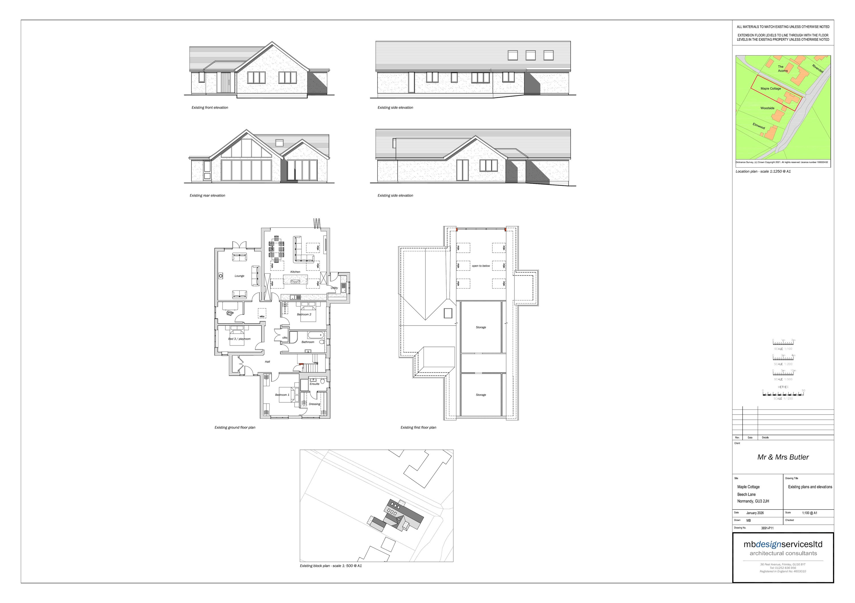
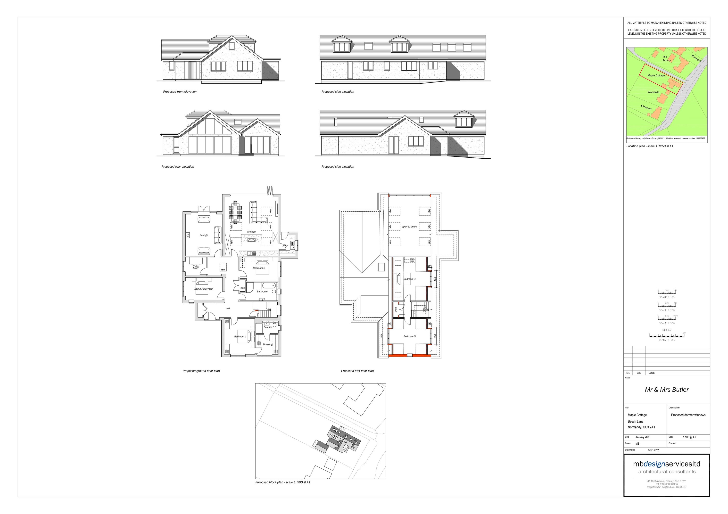
Registered House extension
Received
Last month
New homes
0

Full proposal

Conversion of storage loft space to habitable accommodation with addition of dormer windows and roof windows.

Have your say

Your comment matters. Councils must consider every representation that raises material planning considerations.

Write a comment