← Guildford Borough Council

Status

Registered Demolition
Received
28 days ago
New homes
0

Full proposal

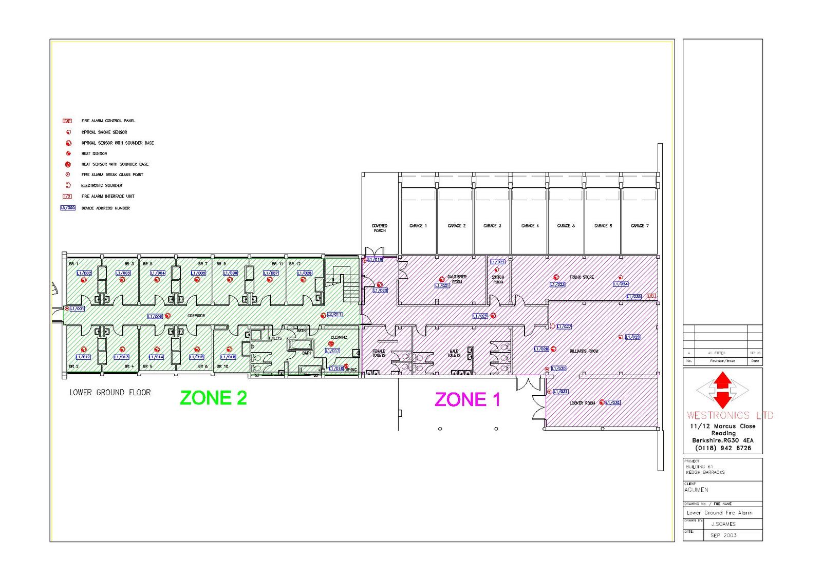
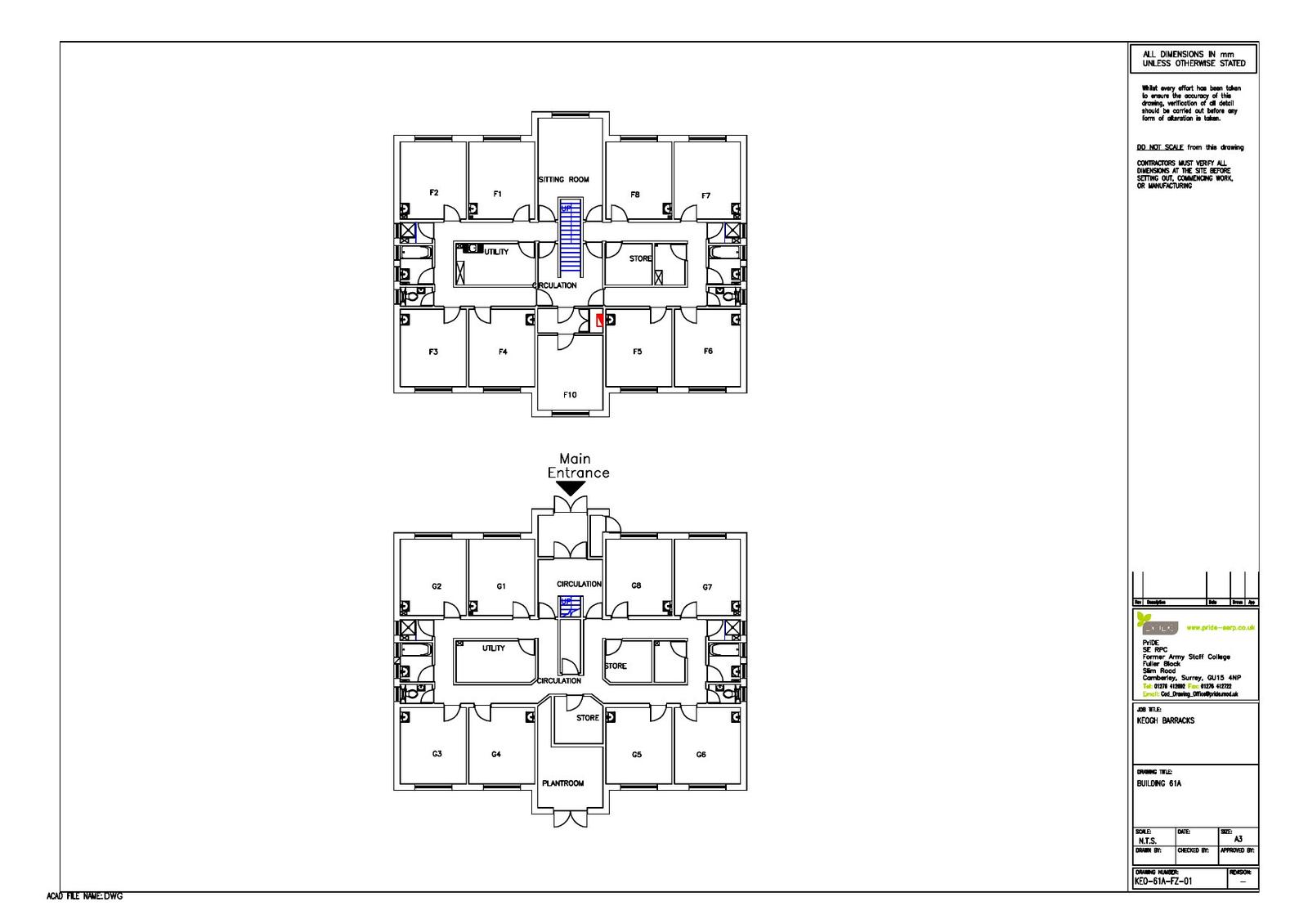
Prior approval under Schedule 2, Part 11, Class B of the Town and Country Planning (General Permitted Development) (England) Order 2015 (as amended) for the demolition of superstructure and removal of foundation slab for the following buildings: Building 3 - Training Classroom of brick and timber construction with a slate roof and concrete. Built in 1979, approximate gross internal floor area: 398m2. Building 60 - Disused single storey pre-World War 2 timber clad barracks hut, previously used as a consecrated catholic church and café. Approximate gross internal floor area: 123.5m2. Building 61 ? Disused Warrant Officers and Sergeants Mess of brick, timber and concrete construction with a flat BUR roof and concrete floor. Constructed in 1980 and extended in 1994, approximate gross internal floor area: 2,028m2. Building 61A ? Disused Single Living Accommodation of brick and timber with a slate tile roof and concrete floor. Constructed 1980, approximate gross internal floor area: 517m2.

Have your say

Your comment matters. Councils must consider every representation that raises material planning considerations.

Write a comment