← Gwynedd County Council

Status

Pending New housing
Received
Not recorded
New homes
4

Summary

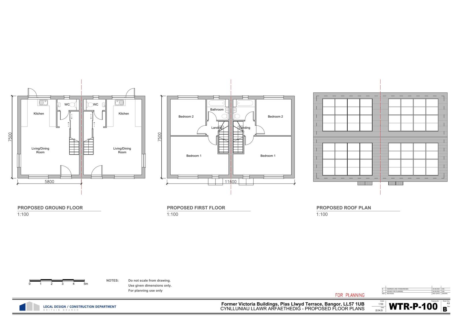
Erection of four semi-detached dwellings with parking and landscaping.

Full proposal

Codi 4 annedd pâr gyda pharcio a thirlunio cysylltiedig. Erection of 4 semi-detached dwellings with associated parking and landscaping.

Documents

03_11_25-Gwybodaeth-Ychwanegol-Additional-Inofrmation-Former-Victoria-Buildings-SuDS-Statement-Addendum.pdf
Supporting Documents
Not yet archived · Original link
25_02_26-Gwybodaeth-ychwanegol-Additional-Information-260225-Letter-RE-Infiltration-Testing.pdf
Supporting Documents
Not yet archived · Original link
25_02_26-Gwybodaeth-ychwanegol-Additional-Information-WTR-NC-Soakaway-Test-V2.pdf
Supporting Documents
Not yet archived · Original link
25_02_26-Gwybodaeth-ychwanegol-Additional-Information-WTR-P-600-C-Levels-and-Drainage-Layout.pdf
Plans
Not yet archived · Original link
25_02_26-Gwybodaeth-ychwanegol-Additional-Information-WTR-Soakaway-photos-16_12_25.pdf
Photographs
Not yet archived · Original link
ApplicationFormRedacted.pdf
Application Form
Not yet archived · Original link
WTR - Design Access and Language Statement.pdf
Supporting Documents
Not yet archived · Original link
WTR - Green Infrastructure Statement.pdf
Supporting Documents
Not yet archived · Original link
WTR - Pre-App Correspondence.pdf
Supporting Documents
Not yet archived · Original link
WTR - Site Photographs.pdf
Photographs
Not yet archived · Original link
WTR - Sustainable Drainage System Report.pdf
Supporting Documents
Not yet archived · Original link
WTR-P-010 - Site Location and Block Plan.pdf
Plans
Not yet archived · Original link
WTR-P-200 - Proposed Elevations.pdf
Plans
Not yet archived · Original link
WTR-P-210 - Maintenance Shed Details.pdf
Plans
Not yet archived · Original link
WTR-P-300 - Proposed Sections.pdf
Plans
Not yet archived · Original link
WTR-P-400 - Proposed Site Section.pdf
Plans
Not yet archived · Original link
WTR-P-600 - Levels and Drainage Layout.pdf
Plans
Not yet archived · Original link
WTR-P-700 - Soft Landscaping Plan.pdf
Plans
Not yet archived · Original link
WTR-P-710 - Soft Landscaping Details.pdf
Plans
Not yet archived · Original link

Have your say

Your comment matters. Councils must consider every representation that raises material planning considerations.

Write a comment