← Halton Borough Council

Status

Registered House extension
Received
05 Jan 2026
New homes
0

Full proposal

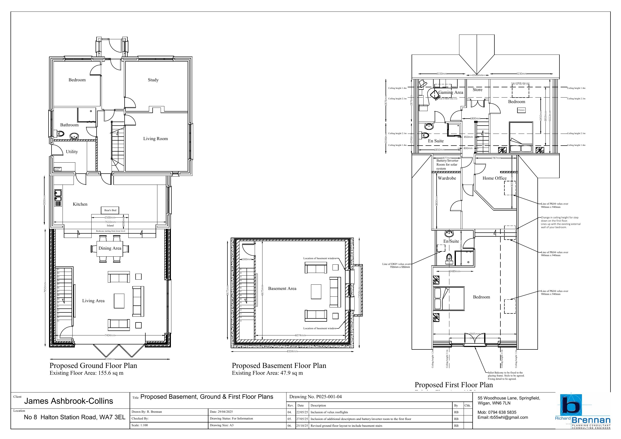
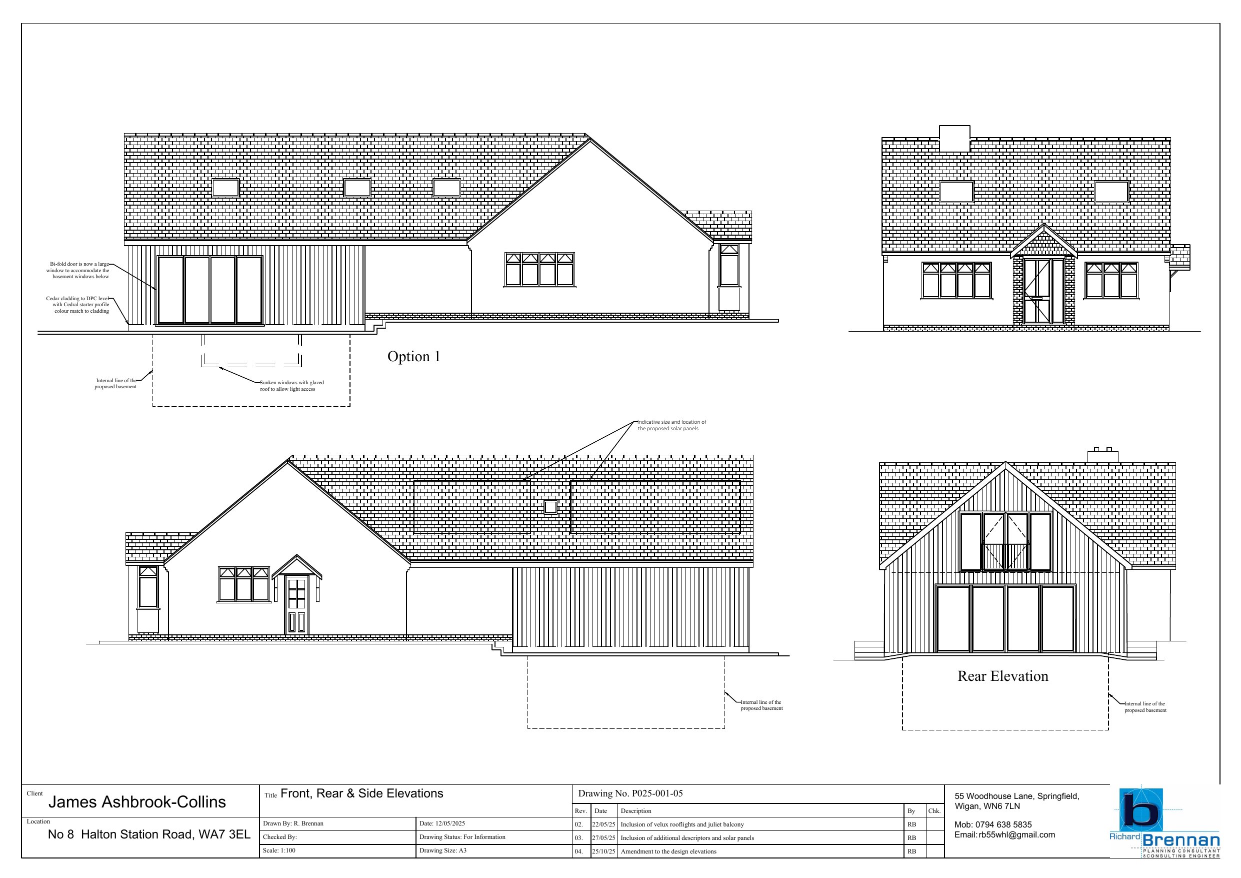
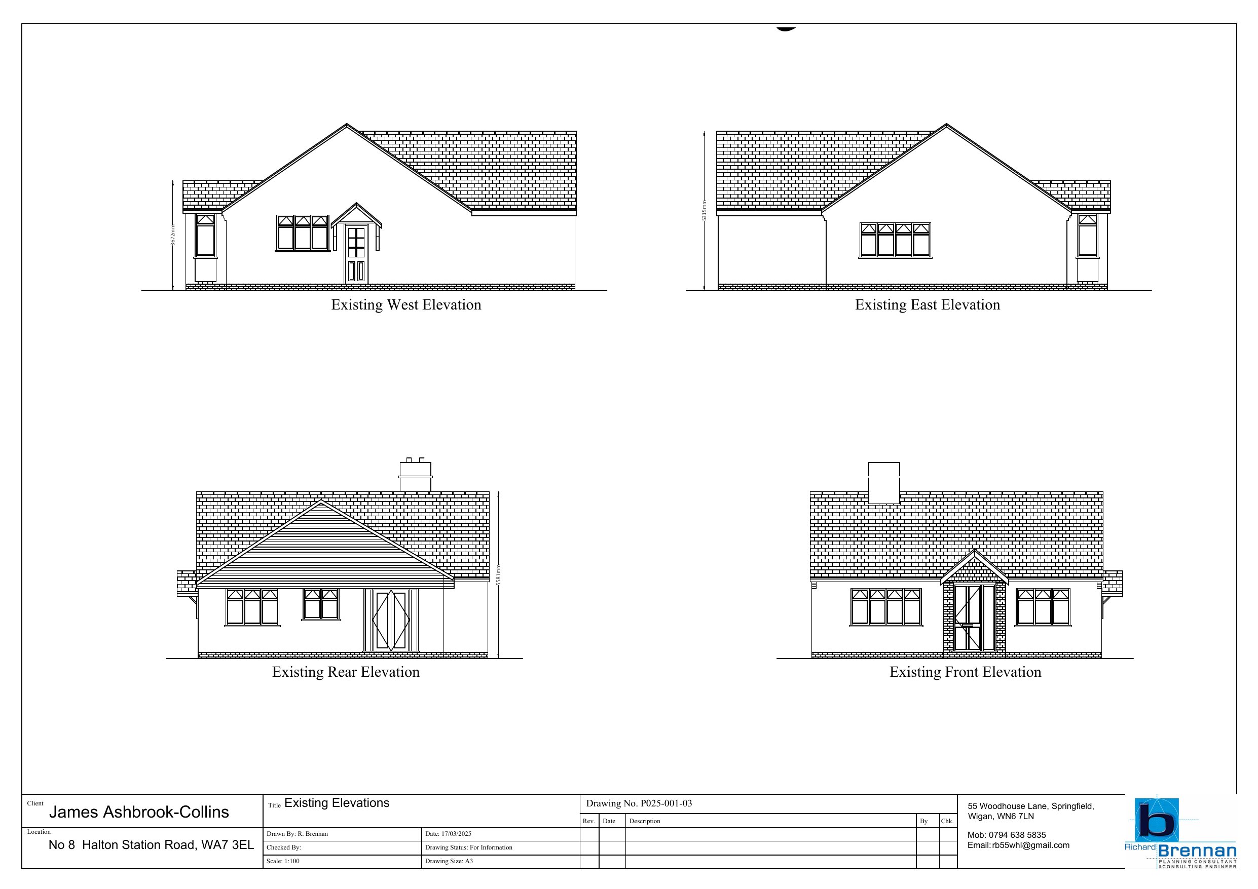
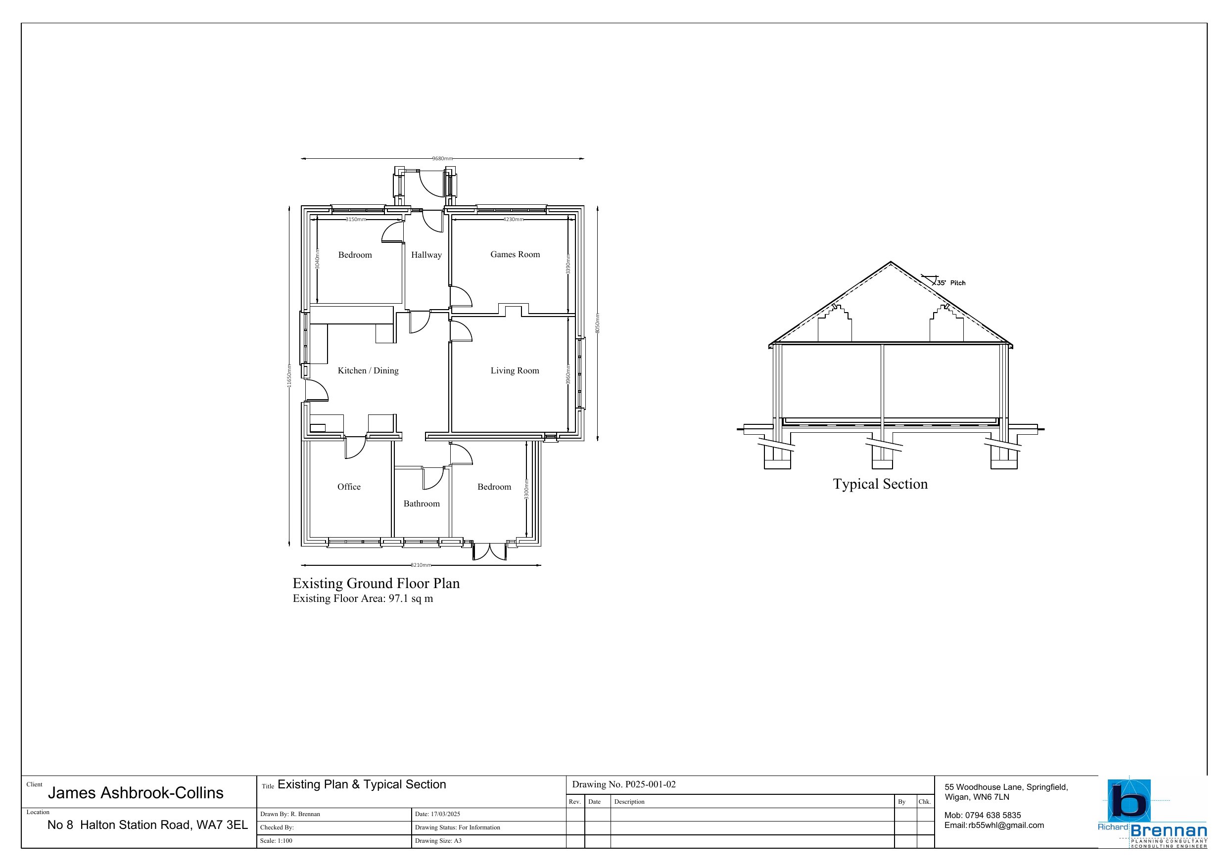
Proposed rear extension with basement, ground floor and rooms in roofspace following demolition of existing detached double garage at

Have your say

Your comment matters. Councils must consider every representation that raises material planning considerations.

Write a comment