26/00066/COU
Halton Borough Council
Status
Registered
Change of use
Received
13 Jan 2026
New homes
0
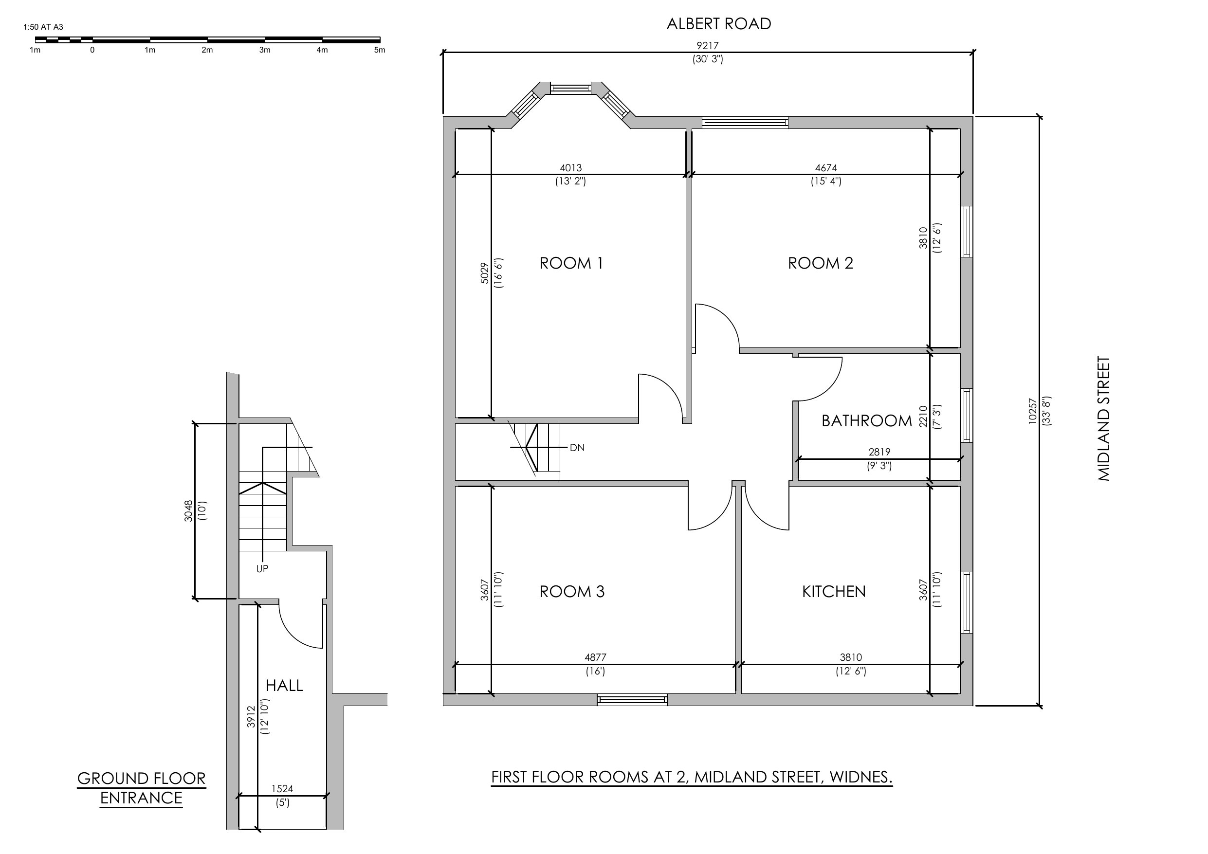
Full proposal
Retrospective application to confirm change of use of the first floor from commercial / business use (Use Class E3) to one single dwellinghouse (Use Class C3) at
Documents
Have your say
Your comment matters. Councils must consider every representation that raises material planning considerations.