← Hambleton District Council (Legacy)

Status

Awaiting decision New housing
Received
17 Dec 2024
New homes
1

Summary

Demolition of agricultural building and construction of new self-build private dwelling.

Full proposal

Proposed demolition of agricultural building and construction of a new self-build private residential dwelling.

Documents

Elevations Proposed
Archived · Original link
Planning Application (public viewing)
Archived · Original link
Design & Access Statement
Archived · Original link
Photograph (incoming)
Archived · Original link
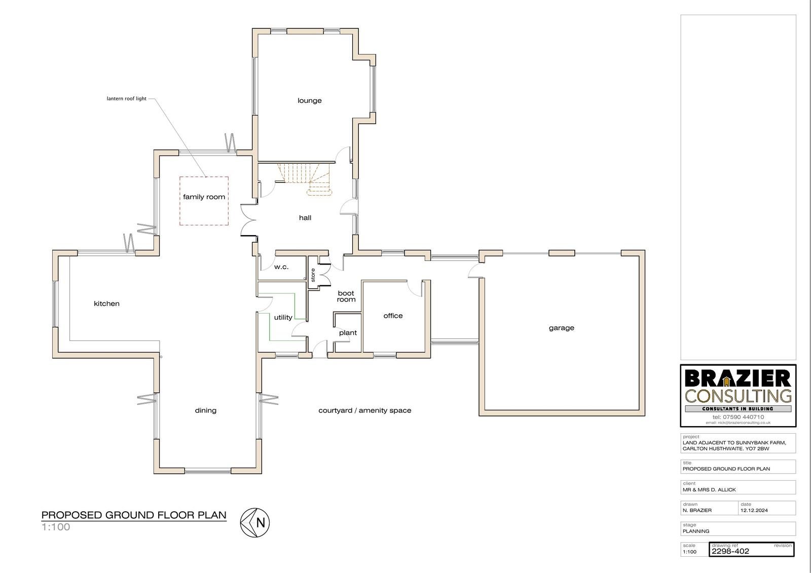
Proposed floor plan
Archived · Original link
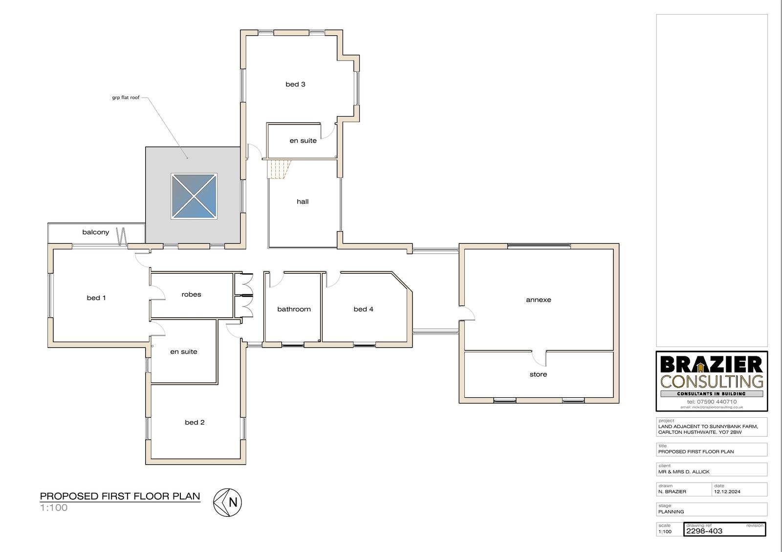
Proposed floor plan
Archived · Original link
Location Plan
Archived · Original link
Statutory Consultation Reply
Archived · Original link
Statutory Consultation Reply
Archived · Original link
Statutory Consultation Reply
Archived · Original link
Observations (incoming)
Archived · Original link
Observations (incoming)
Archived · Original link
Site Layout Plan
Archived · Original link
Supercedded Documents
Archived · Original link
Elevations Proposed
Archived · Original link
Elevations Proposed
Archived · Original link
Elevations Proposed
Archived · Original link
Statutory Consultation Reply
Archived · Original link
Statutory Consultation Reply
Archived · Original link
Statutory Consultation Reply
Archived · Original link

Have your say

Your comment matters. Councils must consider every representation that raises material planning considerations.

Write a comment